69 130 939 Р 897 200 $ или 759 300

Информация об помещении

1
Этаж

Состояние и оснащение

Количество этажей
17
Развернуть
Агент
+7 (985) 515-74-74
Начать чат с агентом

Торговая площадь в Москва ул. 1-я Бухвостова, 2к3 (102 м)

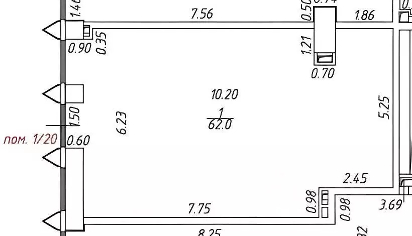
Лот 158738.Предлагается к продаже помещение г .Москва, 1-я ул. Бухвостова, ЖК Преображенская площадь, 102.5 м. Инвестиционно привлекательный объект. Прекрасная локация. ЖК премиум-класса. Этажность от 10-17 этажей, верхние этажи открывают прекрасные виды на панораму города. Внутренняя инфраструктура ЖК представлена коммерческими помещениями на первых этажах: продуктовыми магазинами, кафе, ресторанами и прочее. ЖК Преображенская площадь находится в старейшем, уютном, с развитой инфраструктурой районе, в окружении 4-х парков: Сокольники. ВДНХ, Измайловский парк, Лосиный остров. Рядом набережная р. Яуза.Ближайшая станции: м. Преображенская площадь - 3 минуты пешком. До Садового кольца можно доехать за 8 минут, до ТТК - за 7 минут. До центра - 25 минут езды на авто.Торговое окружение:Озон, Строймаркет.Технические характеристики:Технические характеристики:-Общая площадь - 102 м., 1-й этаж , -высота потолков - 4,18 м., -электрическая мощность - 20 кВт.- Витринное остекление, -открытая планировка, -возможность размещения вывески;- нагрузка на пол - 400 кг/м2;- Вентиляция - общедомовая.Коммерческие условия:Стоимость продажи -.Стоимость за м2 -.Продажа по ДДУ.Цена указана при 100 оплате.

Читать полностью
    Позвонить Написать
    69 130 939 Р897 200 $ или 759 300
    Агент
    +7 (985) 515-74-74
    Начать чат с агентом
    Похожие предложения
    Торговая площадь в Москва Краснобогатырская ул., 90С2 (137 м) - Фото 1
    Торговая площадь в Москва Краснобогатырская ул., 90С2 (137 м) - Фото 2
    Предложение на продажу 62415.Продается помещение свободного назначения, в данный момент сдано в аренду под ресторан. Помещение оборудовано отдельной вытяжной вентиляцией, что позволяет размещать объекты общественного питания и производство. Электричество...
    • 1/20 эт.
    68 000 000 Р
    Агент
    +7 (989) Показать номер
    Посмотреть контакты
    Торговая площадь в Москва Краснобогатырская ул., 90С2 (137 м) - Фото 1
    Торговая площадь в Москва Краснобогатырская ул., 90С2 (137 м) - Фото 2
    Арт.Продажа помещения свободного назначения 107 м2 в пол + 30 м2 антрисольАдрес: Москва, ВАО, р-н Преображенское, Краснобогатырская ул., 90С2Локация:Постоянный пешеходный и автомобильный трафик;Первая линия дороги;В ЖК сдано 1 072 квартиры;В ЖК 3 корпуса;Помещение:137...
    • 1/22 эт.
    68 000 000 Р
    Агент
    +7 (985) Показать номер
    Посмотреть контакты
    Торговая площадь в Москва Бумажный проезд, 19С3 (62 м) - Фото 1
    Торговая площадь в Москва Бумажный проезд, 19С3 (62 м) - Фото 2
    Продается просторное коммерческое помещение площадью 62.00 кв.м. расположенное на 1 этаже. Помещение находится в новом здании и имеет отличную проходимость. Сейчас помещение находится в стадии черновой отделки, что дает вам уникальную возможность самостоятельно...
    • 1/15 эт.
    68 200 000 Р
    Агент
    +7 (916) Показать номер
    Посмотреть контакты
    Торговая площадь в Москва Большой Сухаревский пер., 25С1 (23 м) - Фото 1
    Торговая площадь в Москва Большой Сухаревский пер., 25С1 (23 м) - Фото 2
    Предлагается продажа торговых помещений формата street-retail на улице Сретенка, одной из самых известных исторических торговых линий Москвы. Здание расположено во втором доме от метро Сухаревская , фактически в 150 метрах от станции, что обеспечивает...
    • 1/4 эт.
    70 000 000 Р
    Агент
    +7 (985) Показать номер
    Посмотреть контакты
    Торговая площадь в Москва 4-я оч., Шагал жилой комплекс (82 м) - Фото 1
    Торговая площадь в Москва 4-я оч., Шагал жилой комплекс (82 м) - Фото 2
    1110481 . Предлагаем помещение свободного назначения формата street-retail в ЖК Shagal , площадью 82.3 кв. м, расположенное на первом этаже стилобата. 4 очередь, 1 этап, корпус 2. Так как корректный адрес отсутствует на Яндекс.Картах, введен ближайший....
    • 1/6 эт.
    68 725 431 Р
    Агент
    +7 (938) Показать номер
    Посмотреть контакты

    Не нашли подходящего объявления?

    Оставьте заявку, и наши риэлторы подберут торговое помещение в районе Москвы

    (0)