Россия, Москва, округ Новомосковский
69 476 080 Р 858 100 $ или 739 700

Информация об помещении

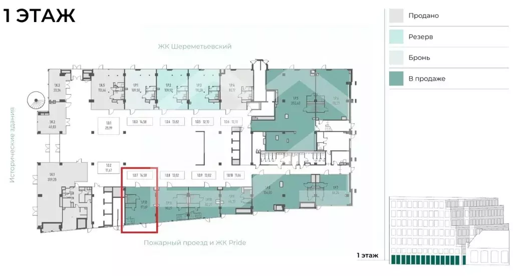
1
Этаж

Состояние и оснащение

Количество этажей
14
Развернуть
Агент
+7 (986) 555-07-36
Начать чат с агентом

Торговая площадь (131.3 м)

Продажа от застройщика А101 Продается торговое помещение площадью 131.30. на 1-м этаже ЖК «Прокшино . Технические характеристики помещения: - Помещение свободного назначения с отдельным входом и окнами с видом во двор; - С отделкой; - Высокий потолок 2.95 м; - Свободная планировка; - Помещение обеспечено коммуникациями: электричество, отопление, водоснабжение, канализация; ПРЕДЛОЖЕНИЯ ОТ ЗАСТРОЙЩИКА В МАРТЕ 2026: Скидки до 15 на готовые коммерческие помещения до 31 марта *при 100 оплате Акция «50 оттенков рассрочек . Всё как вы любите. А101 возвращает ипотеку 1,01 на коммерческие помещения ПВ от 30 . Жилой район «Прокшино строится на юго-западе Москвы в 500 м от ст. метро «Прокшино , рядом с автотрассой Солнцево – Бутово – Варшавское шоссе (СБВ), вдоль благоустроенного берега большого пруда. До Киевского и Калужского шоссе отсюда всего 3,2 км, до МКАД — 8 км. Вывески и витрины помещений будут хорошо видны со стороны СБВ и из окон вагонов метро. Жилой район, часть которого уже заселена, возводится по концепции «15-минутный город . Работают 2 детских сада, построено новое здание школы под руководством Е. А. Ямбурга (входит в топ-20 лучших школ Москвы). Здесь активная молодая аудитория: в перспективе численность населения в радиусе 5 км превысит 200 тыс. человек. Быстрый цикл заселения за счёт большого количества квартир с отделкой. Возможна покупка и объединение нескольких лотов на 1-й линии. Рядом строится крупный бизнес-квартал «Прокшино на 16 тыс. сотрудников — 5 офисных башен со своей инфраструктурой. 1-я очередь уже введена в эксплуатацию. Через дорогу (трассу СБВ) построят спортивно-событийный кластер с горнолыжным курортом и аквакурортом, концертным залом и другими объектами, привлекающими локальный и внешний трафик. Предполагаемая посещаемость составит около человек в год. В локации высокая рыночная арендная плата за счёт сбалансированного процента коммерческой недвижимости. Полную конкурентную аналитику по вашему бизнесу при покупке помещения можно запросить у менеджера ГК «А101 . Всю конкурентную аналитику относительно вашего бизнеса, при приобретении помещения, можно запросить у менеджера А101.

Читать полностью
    Позвонить Написать
    69 476 080 Р858 100 $ или 739 700
    Агент
    +7 (986) 555-07-36
    Начать чат с агентом
    Похожие предложения
    Торговая площадь (188.7 м) - Фото 1
    Торговая площадь (188.7 м) - Фото 2
    Продажа от застройщика А101 Продается торговое помещение площадью 188.70. на 1-м этаже ЖК «Прокшино . Технические характеристики помещения: - Помещение свободного назначения с отдельным входом и окнами с видом во двор; - С отделкой; - Высокий потолок...
    • 1/18 эт.
    69 050 256 Р
    Агент
    +7 (986) Показать номер
    Посмотреть контакты
    Торговая площадь (162.9 м) - Фото 1
    Торговая площадь (162.9 м) - Фото 2
    Продажа от застройщика А101 Продается торговое помещение площадью 162.90. на 1-м этаже ЖК «Прокшино . Технические характеристики помещения: - Помещение свободного назначения с отдельным входом и окнами с видом во двор; - С отделкой; - Высокий потолок...
    • 1/18 эт.
    69 059 352 Р
    Агент
    +7 (986) Показать номер
    Посмотреть контакты
    Торговая площадь в Москва Складочная ул., 6С36 (98 м) - Фото 1
    Торговая площадь в Москва Складочная ул., 6С36 (98 м) - Фото 2
    1003963. Предлагаем к приобретению торговое помещение в бизнес-квартале Gustav , площадью 97.69 кв. м., расположенное на первом этаже 7-этажного здания. Помещение 1.Р.12. Без комиссии для покупателя.Преимущества объекта:-первая линия ул. Складочная;-10...
    • 1/7 эт.
    68 695 608 Р
    Агент
    +7 (938) Показать номер
    Посмотреть контакты
    Продажа торгового помещения, м. Алексеевская, Мира пр-кт. - Фото 1
    Продажа торгового помещения, м. Алексеевская, Мира пр-кт. - Фото 2
    Продажа торгового помещения, м. Алексеевская, Мира пр-кт. - Фото 3
    Продажа торгового помещения, м. Алексеевская, Мира пр-кт. - Фото 4
    Продажа торгового помещения, м. Алексеевская, Мира пр-кт. - Фото 5
    Продажа торгового помещения, м. Алексеевская, Мира пр-кт. - Фото 6
    общая площадь 20.1м², реализуемая площадь 20.1м²

    Продажа торгового помещения на 1-й линии проспекта Мира. Street-retail, от метро Алексеевская 1 минута пешком. Помещение площадью 20,1 кв.м (блок №4 на плане) расположено на 1-м этаже жилого 9-ти этажного дома. Планировка — открытая, все городские инженерные...
    • 20.1 м²
    • 1/9 эт.
    69 000 000 Р
    Агент
    +7 (903) Показать номер
    Посмотреть контакты
    Продажа торгового помещения, м. Люблино, ул. Краснодарская - Фото 1
    Продажа торгового помещения, м. Люблино, ул. Краснодарская - Фото 2
    Продажа торгового помещения, м. Люблино, ул. Краснодарская - Фото 3
    Продажа торгового помещения, м. Люблино, ул. Краснодарская - Фото 4
    Продажа торгового помещения, м. Люблино, ул. Краснодарская - Фото 5
    общая площадь 100.4м², реализуемая площадь 100.4м²

    От Собственника! Арендный бизнес. Помещение находится в 300 м от метро Люблино. Густонаселенный спальный массив. Сверхинтенсивный пешеходный трафик. Помещение общей площадью 100,4 кв.м, расположено на 1-м этаже капитального здания 1977 года постройки....
    • 100.4 м²
    • 1/12 эт.
    68 000 000 Р
    Агент
    +7 (903) Показать номер
    Посмотреть контакты

    Не нашли подходящего объявления?

    Оставьте заявку, и наши риэлторы подберут торговое помещение в районе Москвы

    (0)