100 000 000 Р 1 284 000 $ или 1 088 300

Информация об помещении

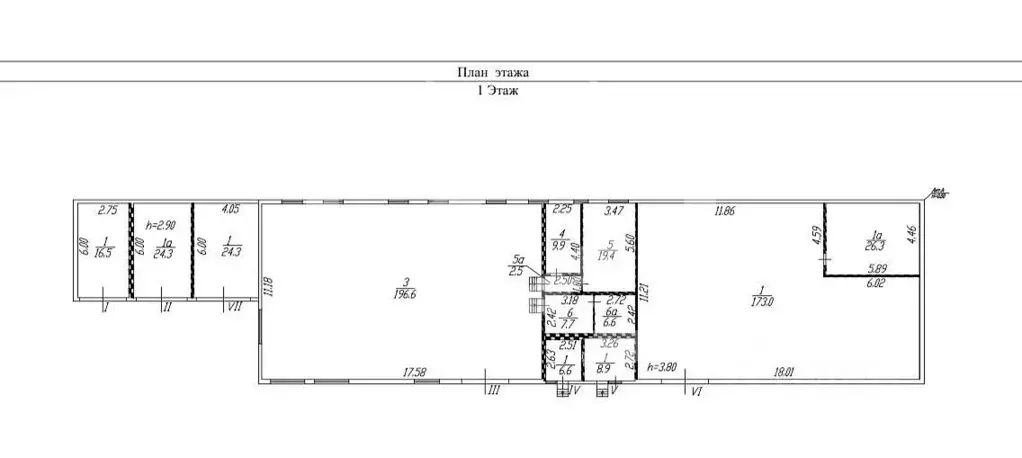
522 м2
Площадь
1
Этаж

Состояние и оснащение

Общая площадь складского комплекса, м2
522
Развернуть
Агент
Елена
+7 (903) 170-66-70
Начать чат с агентом

Продажа ПСН, м. Текстильщики, ул. Шоссейная

Продажа одноэтажного отдельно стоящего здания. 540 метров от станции метро Текстильщики.
ЮВАО, район Печатники.
Площадь - 522 кв. м, назначение - свободное. Мощность 150 кВт с возможностью увеличения. Высота потолков 4 м.
Земельный участок под зданием - 580 м2, в аренде у города до 2071 г. Виды разрешенного использования ЗУ:
Склады (6.9) (земельные участки, предназначенные для размещения производственных и административных зданий, строений (1.2.9)); Обслуживание автотранспорта (4.9) (земельные участки, предназначенные для размещения объектов торговли, общественного питания и бытового обслуживания (1.2.5)). Также есть прилегающая территория для парковки автотранспорта на 10-12 м/м.
Сдано в аренду по ДДА на 5 лет, арендатор - Сервисный центр обслуживания самокатов WHOOSH, МАП - 900.. Окупаемость 9,3 лет!Объект № 549784Номер объекта: 5/549784/310

Читать полностью

    Для того, чтобы купить ПСН площадью 522 кв. метра по адресу: ЮВАО, Печатники, м. Текстильщики, ул. Шоссейная, 1 с.1г, позвоните по телефону +7 (903) 170-66-70. Торопитесь! Объявление №901095920 о продаже ПСН площадью 522 кв. метра опубликовано Сегодня.

    Позвонить Написать
    100 000 000 Р1 284 000 $ или 1 088 300
    Агент
    Елена
    +7 (903) 170-66-70
    Начать чат с агентом
    Похожие предложения
    Помещение свободного назначения в Москва Южнопортовая ул., 42С5 (152 ... - Фото 1
    Помещение свободного назначения в Москва Южнопортовая ул., 42С5 (152 ... - Фото 2
    БЕЗ КОМИССИИ Жилой дом. Продаётся помещение свободной планировки с санузлом на первом этаже площадью 152 кв.м с отдельным входом с улицы. Новое помещение под чистовую отделку (Shell Core).УСН. Южнопортовая улица, 42с5, метро Печатники. ЛОТ 243553
    • 1/29 эт.
    91 260 800 Р
    Агент
    +7 (915) Показать номер
    Посмотреть контакты
    Помещение свободного назначения в Москва Шоссейная ул., 1ГС1 (522 м) - Фото 1
    Помещение свободного назначения в Москва Шоссейная ул., 1ГС1 (522 м) - Фото 2
    Показ в удобное время. С АГЕНТАМИ РАБОТАЕМ И ПЛАТИМ.Готовый арендный бизнес (ГАБ). Доходность 11 , окупаемость до 9.26 лет.Отдельно стоящее здание расположено в шаговой доступности от метро, на первой линии Шоссейной улицы. Удобная транспортная доступность....
    • 1/1 эт.
    100 000 000 Р
    Агент
    +7 (933) Показать номер
    Посмотреть контакты
    Помещение свободного назначения в Москва ул. Вертолетчиков, 21к5 (321 ... - Фото 1
    Помещение свободного назначения в Москва ул. Вертолетчиков, 21к5 (321 ... - Фото 2
    707179 . Предлагаем помещение свободного назначения формата Street Retail с якорным арендатором супермаркет Дикси , площадью 321 кв. м., расположенное на первом этаже жилого дома в ЖК Мой адрес на Вертолётчиков . Стилобат. Без комиссии для покупателя....
    • 1/18 эт.
    90 000 000 Р
    Агент
    +7 (938) Показать номер
    Посмотреть контакты
    Помещение свободного назначения в Москва Краснодонская ул., 16А (510 ... - Фото 1
    Помещение свободного назначения в Москва Краснодонская ул., 16А (510 ... - Фото 2
    Продается помещение свободного назначения на 1-3 этажах в административном здании Краснодонская, 16А, В класса, которое находится по адресу: ул. Краснодонская, д.16А.Шаговая доступность от ст. м. Люблино, Депо. Удобный выезд на Люблинскую улицу и МКАД.Помещение...
    • 1/3 эт.
    95 000 000 Р
    Агент
    +7 (989) Показать номер
    Посмотреть контакты
    Помещение свободного назначения в Москва Краснодонская ул., 39С2 (678 ... - Фото 1
    Помещение свободного назначения в Москва Краснодонская ул., 39С2 (678 ... - Фото 2
    903749 . Предлагаем помещение свободного назначения формата Street Retail под общепит-ресторан с арендатором Ресто-Кафе MoskWa , площадью 678 кв. м., расположенное в отдельно стоящем здании. Часть 1 и 2 этажа. Без комиссии для покупателя.Преимущества...
    • 1/2 эт.
    90 000 000 Р
    Агент
    +7 (938) Показать номер
    Посмотреть контакты

    Не нашли подходящего объявления?

    Оставьте заявку, и наши риэлторы подберут псн в районе Москвы

    (0)