Россия, Москва, 3-я Хорошёвская улица, 18/2
103 836 122 Р 1 323 800 $ или 1 122 900

Информация о помещении и здании

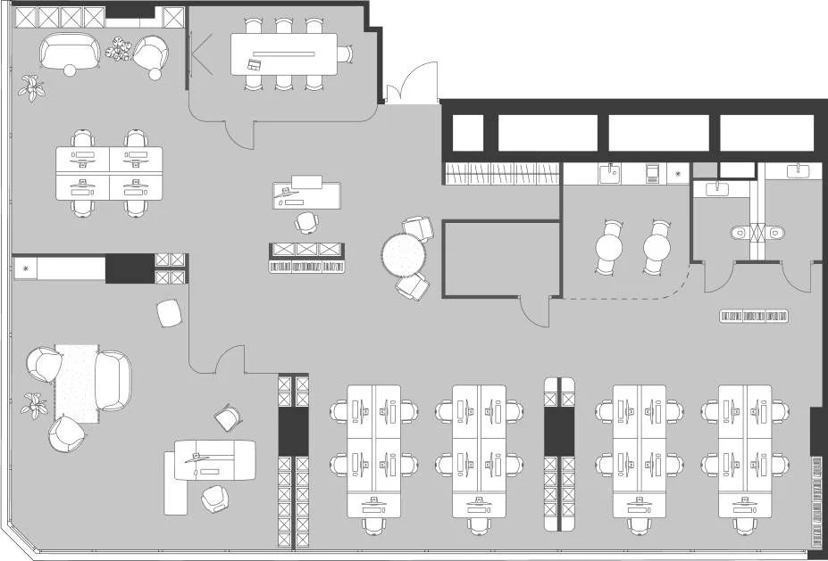
255.5 м2
Площадь
21
Этаж
33
Этажность
a
Класс здания

Состояние и оснащение

Планировка
открытая
Парковка
есть
Развернуть
Агент
Отдел продаж
+7 (495) 023-49-60
Начать чат с агентом

Продажа офиса 255.5 м2

Гибкие условия оплаты (рассрочка, отсрочка, ипотека) .
Продажа премиальных офисов в бизнес центре AVIUM. Две 34-этажные башни, объединённые галереей и дочерним корпусом.
Здание класса А, этаж 5 из 33, просторный современный офис под чистовую отделку, открытая планировка, витринные окна, высота потолков 3,6 м.
Сдача 2028 г, прямая продажа от застройщика Capital Alliance.
Расположение и транспортная доступность:
- Метро в шаговой доступности: МЦК Зорге - менее 1 минуты пешком, метро «Октябрьское поле» - 7 минут, ММДЦ «Москва-Сити» - 12 минут.
- Удобный выезд на Ленинградский проспект и Звенигородское шоссе.
Благоустройство:
- Высококлассный бизнес-центр с авторской архитектурой и панорамными видами.
- В каждой башне - эффектные лобби, современные переговорные и лаундж-зоны. Скоростные лифты с интеллектуальной системой, ожидание до 45 секунд.
- Приточно-вытяжная вентиляция, индивидуальные санузлы, отдельные фуд-зоны.
- Ландшафтный парк 1,2 Га и главный пешеходный бульвар для резидентов. Концепция «сухие ноги» - прямой доступ к торговым зонам без выхода на улицу.
- Безопасность на высоте: видеонаблюдение и контроль доступа, система электронных пропусков, комплекс пожарной автоматики.
- Чистый воздух, энергоэффективные технологии, уникальная концепция озеленения и биофильного дизайна.
Инфраструктура комплекса:
- Форматы на любой вкус - от кофе с собой до изысканных ресторанов с видом на бульвар.
- Фитнес-студия, расположенная на втором этаже делового центра, позволяет легко сочетать рабочие задачи с заботой о себе.
- Площадь современного ритейла на 7000 м.
- Подземный паркинг для резидентов делового центра сочетает функциональность и футуристичный дизайн.
Почему AVIUM:
- Престиж, приватность, отличная транспортная доступность, новая доминанта района, признанная архитектура.
- Пространства без колонн в углах, идеально подходят для руководителей и современных команд.
- Форматы офисов для любого масштаба бизнеса: от 95 до 1345 м.

Читать полностью

    Для того, чтобы купить офис площадью 255 кв. метров по адресу: СЗАО, м. Зорге, 3-я Хорошёвская улица, 18/2, позвоните по телефону +7 (495) 023-49-60. Торопитесь! Объявление №601863362 о продаже офиса площадью 255 кв. метров опубликовано Сегодня.

    Позвонить Написать
    103 836 122 Р1 323 800 $ или 1 122 900
    Агент
    Отдел продаж
    +7 (495) 023-49-60
    Начать чат с агентом
    Похожие предложения в Москве
    Продажа офиса 255.28 м2 - Фото 1
    Продажа офиса 255.28 м2 - Фото 2
    Продажа офиса 255.28 м2 - Фото 3
    Продажа офиса 255.28 м2 - Фото 4
    Продажа офиса 255.28 м2 - Фото 5
    Продажа офиса 255.28 м2 - Фото 6
    Продажа офиса 255.28 м2 - Фото 7
    Продажа офиса 255.28 м2 - Фото 8
    Продажа офиса 255.28 м2 - Фото 9
    Продажа офиса 255.28 м2 - Фото 10
    Продажа офиса 255.28 м2 - Фото 11
    Продажа офиса 255.28 м2 - Фото 12
    Продажа офиса 255.28 м2 - Фото 13
    Продажа офиса 255.28 м2 - Фото 14
    Продажа офиса 255.28 м2 - Фото 15
    Продажа офиса 255.28 м2 - Фото 16
    Продажа офиса 255.28 м2 - Фото 17
    Продажа офиса 255.28 м2 - Фото 18
    Продажа офиса 255.28 м2 - Фото 19
    реализуемая площадь 255.3м², 22-й этаж, всего 33 этажа, открытая планировка

    Гибкие условия оплаты (рассрочка, отсрочка, ипотека) . Продажа премиальных офисов в бизнес центре AVIUM. Две 34-этажные башни, объединённые галереей и дочерним корпусом. Здание класса А, этаж 5 из 33, просторный современный офис под чистовую отделку,...
    • 255.3 м²
    • A
    • 22/33 эт.
    • парковка
    104 601 265 Р
    Агент
    +7 (495) Показать номер
    Посмотреть контакты
    Продажа офиса 259.65 м2 - Фото 1
    Продажа офиса 259.65 м2 - Фото 2
    Продажа офиса 259.65 м2 - Фото 3
    Продажа офиса 259.65 м2 - Фото 4
    Продажа офиса 259.65 м2 - Фото 5
    Продажа офиса 259.65 м2 - Фото 6
    Продажа офиса 259.65 м2 - Фото 7
    Продажа офиса 259.65 м2 - Фото 8
    Продажа офиса 259.65 м2 - Фото 9
    Продажа офиса 259.65 м2 - Фото 10
    Продажа офиса 259.65 м2 - Фото 11
    Продажа офиса 259.65 м2 - Фото 12
    Продажа офиса 259.65 м2 - Фото 13
    Продажа офиса 259.65 м2 - Фото 14
    Продажа офиса 259.65 м2 - Фото 15
    Продажа офиса 259.65 м2 - Фото 16
    Продажа офиса 259.65 м2 - Фото 17
    Продажа офиса 259.65 м2 - Фото 18
    Продажа офиса 259.65 м2 - Фото 19
    реализуемая площадь 259.6м², 22-й этаж, всего 33 этажа, открытая планировка

    Гибкие условия оплаты (рассрочка, отсрочка, ипотека) . Продажа премиальных офисов в бизнес центре AVIUM. Две 34-этажные башни, объединённые галереей и дочерним корпусом. Здание класса А, этаж 5 из 33, просторный современный офис под чистовую отделку,...
    • 259.6 м²
    • A
    • 22/33 эт.
    • парковка
    107 561 456 Р
    Агент
    +7 (495) Показать номер
    Посмотреть контакты
    Продажа офиса 253.59 м2 - Фото 1
    Продажа офиса 253.59 м2 - Фото 2
    Продажа офиса 253.59 м2 - Фото 3
    Продажа офиса 253.59 м2 - Фото 4
    Продажа офиса 253.59 м2 - Фото 5
    Продажа офиса 253.59 м2 - Фото 6
    Продажа офиса 253.59 м2 - Фото 7
    Продажа офиса 253.59 м2 - Фото 8
    Продажа офиса 253.59 м2 - Фото 9
    Продажа офиса 253.59 м2 - Фото 10
    Продажа офиса 253.59 м2 - Фото 11
    Продажа офиса 253.59 м2 - Фото 12
    Продажа офиса 253.59 м2 - Фото 13
    Продажа офиса 253.59 м2 - Фото 14
    Продажа офиса 253.59 м2 - Фото 15
    Продажа офиса 253.59 м2 - Фото 16
    Продажа офиса 253.59 м2 - Фото 17
    Продажа офиса 253.59 м2 - Фото 18
    Продажа офиса 253.59 м2 - Фото 19
    реализуемая площадь 253.6м², 27-й этаж, всего 33 этажа, открытая планировка

    Гибкие условия оплаты (рассрочка, отсрочка, ипотека) . Продажа премиальных офисов в бизнес центре AVIUM. Две 34-этажные башни, объединённые галереей и дочерним корпусом. Здание класса А, этаж 5 из 33, просторный современный офис под чистовую отделку,...
    • 253.6 м²
    • A
    • 27/33 эт.
    • парковка
    109 419 571 Р
    Агент
    +7 (495) Показать номер
    Посмотреть контакты
    Продажа офиса 252.4 м2 - Фото 1
    Продажа офиса 252.4 м2 - Фото 2
    Продажа офиса 252.4 м2 - Фото 3
    Продажа офиса 252.4 м2 - Фото 4
    Продажа офиса 252.4 м2 - Фото 5
    Продажа офиса 252.4 м2 - Фото 6
    Продажа офиса 252.4 м2 - Фото 7
    Продажа офиса 252.4 м2 - Фото 8
    Продажа офиса 252.4 м2 - Фото 9
    Продажа офиса 252.4 м2 - Фото 10
    Продажа офиса 252.4 м2 - Фото 11
    Продажа офиса 252.4 м2 - Фото 12
    Продажа офиса 252.4 м2 - Фото 13
    Продажа офиса 252.4 м2 - Фото 14
    Продажа офиса 252.4 м2 - Фото 15
    Продажа офиса 252.4 м2 - Фото 16
    Продажа офиса 252.4 м2 - Фото 17
    Продажа офиса 252.4 м2 - Фото 18
    Продажа офиса 252.4 м2 - Фото 19
    реализуемая площадь 252.4м², 27-й этаж, всего 33 этажа, открытая планировка

    Гибкие условия оплаты (рассрочка, отсрочка, ипотека) . Продажа премиальных офисов в бизнес центре AVIUM. Две 34-этажные башни, объединённые галереей и дочерним корпусом. Здание класса А, этаж 5 из 33, просторный современный офис под чистовую отделку,...
    • 252.4 м²
    • A
    • 27/33 эт.
    • парковка
    107 774 032 Р
    Агент
    +7 (495) Показать номер
    Посмотреть контакты
    Продажа офиса 244.73 м2 - Фото 1
    Продажа офиса 244.73 м2 - Фото 2
    Продажа офиса 244.73 м2 - Фото 3
    Продажа офиса 244.73 м2 - Фото 4
    Продажа офиса 244.73 м2 - Фото 5
    Продажа офиса 244.73 м2 - Фото 6
    Продажа офиса 244.73 м2 - Фото 7
    Продажа офиса 244.73 м2 - Фото 8
    Продажа офиса 244.73 м2 - Фото 9
    Продажа офиса 244.73 м2 - Фото 10
    Продажа офиса 244.73 м2 - Фото 11
    Продажа офиса 244.73 м2 - Фото 12
    Продажа офиса 244.73 м2 - Фото 13
    Продажа офиса 244.73 м2 - Фото 14
    Продажа офиса 244.73 м2 - Фото 15
    Продажа офиса 244.73 м2 - Фото 16
    Продажа офиса 244.73 м2 - Фото 17
    Продажа офиса 244.73 м2 - Фото 18
    Продажа офиса 244.73 м2 - Фото 19
    реализуемая площадь 244.7м², 25-й этаж, всего 33 этажа, открытая планировка

    Гибкие условия оплаты (рассрочка, отсрочка, ипотека) . Продажа премиальных офисов в бизнес центре AVIUM. Две 34-этажные башни, объединённые галереей и дочерним корпусом. Здание класса А, этаж 5 из 33, просторный современный офис под чистовую отделку,...
    • 244.7 м²
    • A
    • 25/33 эт.
    • парковка
    109 025 685 Р
    Агент
    +7 (495) Показать номер
    Посмотреть контакты

    Не нашли подходящего объявления?

    Оставьте заявку, и наши риэлторы подберут офис в районе Москвы

    (0)