9 400 000 Р 114 800 $ или 100 900

Информация о коттедже

138 м2
Площадь
1
Этажность
10 cоток
Участок

Дополнительная информация

Дом продаётся вместе с участком
есть
Развернуть
Агент
+7 (916) 975-38-24
Начать чат с агентом

Коттедж в Московская область, Ступино городской округ, Грин форест ...

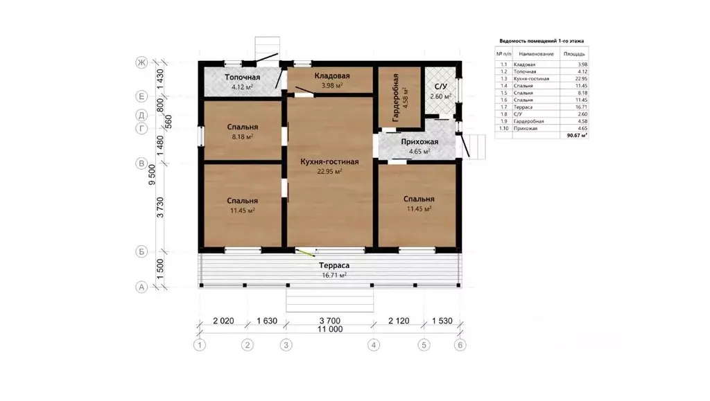
В продаже одноэтажный кирпичный дом S 138 м в комплектации White-Box, расположенный на участке 10 соток в коттеджном посёлке Green Forest Premium. Особенности вашего будущего дома: просторная кухня-гостиная с панорамными окнами, выходом на террасу и потолками 4,5 метра; дымоход для камина, создающий уютную атмосферу и возможность установить камин; 3 спальни, включая мастер-спальню со своим санузлом, гардеробом и выходом на террасу; 2 санузла — удобно для всей семьи; котельная-постирочная, соответствующая требованиям для подключения газа. Коммуникации заведены в дом. Технические характеристики: фасад — утепление 150 мм, декоративная штукатурка и планкен из хвойных пород; крыша — кликфальц (RAL 7024); окна — ПВХ, графитовые, энергосберегающие; фундамент — свайно-ростверковый железобетон. Green Forest Premium привлекает зелёным окружением и приватной атмосферой загородной жизни, сохраняя удобство ежедневных маршрутов. Рядом есть базовая социальная инфраструктура, магазины, пункты выдачи и всё необходимое для комфортного проживания. Цена дома в комплектации White-Box —. Звоните прямо сейчас и записывайтесь на просмотр — ваш идеальный дом уже готов

Читать полностью

    Для того, чтобы купить 1-этажный коттедж по адресу: , позвоните по телефону +7 (916) 975-38-24. Торопитесь! Объявление №50016865811 о продаже одноэтажного коттеджа опубликовано Сегодня.

    Позвонить Написать
    9 400 000 Р114 800 $ или 100 900
    Агент
    +7 (916) 975-38-24
    Начать чат с агентом
    Похожие предложения
    Дом в Московская область, Ступино городской округ, Михнево пгт  (104 ... - Фото 1
    Дом в Московская область, Ступино городской округ, Михнево пгт  (104 ... - Фото 2
    1 этаж, общая площадь 104м², участок 7 соток

    Продается готовый дом для круглогодичного проживания, построенный для собственных нужд.Объект расположен в развитой инфраструктуре деревни Барыбино в 38 км от Москвы.О доме:Планировка: Общая площадь: 104 м2Размер дома: 11х8Тип Фундамента: Сваи Количество...
    • 1 эт.
    • 104 м²
    • 7 сот.
    9 500 000 Р
    Агент
    +7 (910) Показать номер
    Посмотреть контакты
    Продается дом в г. Ногинск - Фото 1
    Продается дом в г. Ногинск - Фото 2
    общая площадь 70м², участок 10 соток

    Код объекта: 1752503.Продается двухэтажный дом общей площадью 70.7 кв.м. Дом из бревна (1-ый этаж был построен в 1951 году). В 2020 году была построена пристройка из пеноблоков, второй этаж (каркасный). Крыша утеплена мин. ватой, материал металлочерепица....
    • 70 м²
    • 10 сот.
    9 300 000 Р
    Агент
    +7 (499) Показать номер
    Посмотреть контакты
    Продается дом в КП Никоново - Фото 1
    Продается дом в КП Никоново - Фото 2
    общая площадь 119м², участок 10 соток

    Код объекта: 1689378.Продается очень тёплый, уютный современный жилой дом 119 кв.м в КП Никоново. Дом полностью готов для постоянного проживания. Планировка: 1 этажПрихожая, просторный холл с лестницей на 2 этаж, единое пространство кухни-гостиной, большой...
    • 119 м²
    • 10 сот.
    9 500 000 Р
    Агент
    +7 (499) Показать номер
    Посмотреть контакты
    Продается дом в с. Марфино - Фото 1
    Продается дом в с. Марфино - Фото 2
    общая площадь 99м², участок 5 соток

    Код объекта: 1811532.Продается новый дом для круглогодичного проживания.Просторная кухня-гостиная с панорамными окнами, сан. узел, бойлерная с дополнительным сан. узлом и зоной для стирки. Все коммуникации: электричество 15 кВт, септик биоразлагаемый,...
    • 99 м²
    • 5 сот.
    9 500 000 Р
    Агент
    +7 (495) Показать номер
    Посмотреть контакты
    Продается дом в КП Дергаево-3 - Фото 1
    Продается дом в КП Дергаево-3 - Фото 2
    общая площадь 144м², участок 6 соток

    Арт.Новый двухэтажный каменный (пенобетон, облицован кирпичом) дом подарит покупателю ощущение надежности и уверенности в будущем, недоступные каркасникам Дом без внутренней отделки, полностью готов к установке окон, дверей и проведению внутриотделочных...
    • 144 м²
    • 6 сот.
    9 500 000 Р
    Агент
    +7 (499) Показать номер
    Посмотреть контакты

    Не нашли подходящего объявления?

    Оставьте заявку, и наши риэлторы подберут купить дом в районе Ступинского района

    (0)