9 500 000 Р 125 400 $ или 105 000

Информация о коттедже

144 м2
Площадь
6 cоток
Участок

Дополнительная информация

Дом продаётся вместе с участком
есть
Развернуть
Агент
+7 (499) 213-37-67
Начать чат с агентом

Продается дом в КП Дергаево-3

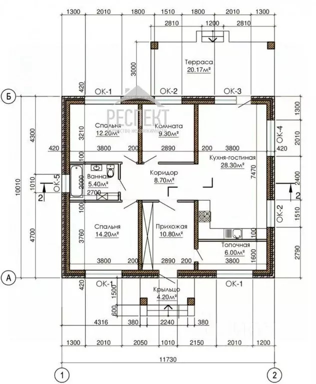
Арт.Новый двухэтажный каменный (пенобетон, облицован кирпичом) дом подарит покупателю ощущение надежности и уверенности в будущем, недоступные каркасникам Дом без внутренней отделки, полностью готов к установке окон, дверей и проведению внутриотделочных работ по вкусу покупателя. Фундамент - бетонная монолитная плита толщиной 45 см, сделана гидроизоляция, утеплена пеноплексом. Арматура для фундамента использовалась 12 мм, с ячейкой 20 х 20 см в 2 яруса. Стены пенобетон, облицованы кирпичом. Коммуникации: в дом заведена вода от колодца, канализация септик, улица электрифицирована, столбы установлены. Оптимальная планировка: Первый этаж - просторный холл, кухня, гостиная, санузел, кладовая. Второй этаж: 3 изолированные комнаты, санузел. Участок ровный, 6 соток, 20 х 30 метров, не угловой, поднят на 20 см, сухой, вид разрешенного использования: ИЖС (индивидуальное жилищное строительство), кадастровый номер 50:23:0020275:6288. По периметру участка установлены столбы. Успейте купить достойное жилье за доступные деньги

Читать полностью

    Для того, чтобы купить коттедж по адресу: Дергаево, позвоните по телефону +7 (499) 213-37-67. Торопитесь! Объявление №50016590514 о продаже коттеджа опубликовано Сегодня.

    Позвонить Написать
    9 500 000 Р125 400 $ или 105 000
    Агент
    +7 (499) 213-37-67
    Начать чат с агентом
    Похожие предложения
    Продается дом в д. Бахтеево - Фото 1
    Продается дом в д. Бахтеево - Фото 2
    общая площадь 354м², участок 18 соток

    Код объекта: 1985516.Уникальное предложение в Раменском муниципальном округе:продаётся просторный и комфортабельный дом в деревне Бахтеево, по адресу 39. Этот двухэтажный дом (плюс мансарда), построенный в 2018 году, отличается высоким качеством постройки...
    • 354 м²
    • 18 сот.
    9 600 000 Р
    Агент
    +7 (499) Показать номер
    Посмотреть контакты
    Дом в Московская область, Раменский муниципальный округ, пос. Трошково ... - Фото 1
    Дом в Московская область, Раменский муниципальный округ, пос. Трошково ... - Фото 2
    1 этаж, общая площадь 138м², участок 7 соток

    ПОДХОДИТ ПОД СЕМЕЙНУЮ ИПОТЕКУ ПОЛНЫЙ ЕВРО-РЕМОНТ ВКЛЮЧЕН В СТОИМОСТЬ ЛЮБОЙ ВИД КИРПИЧ ГОТОВЫ ПРЕДЛОЖИТЬ ВАМ Вашему вниманию предлагается прекрасный дом из блока с внешней отделкой кирпичом (варианты кирпича на выбор) в развитом Коттеджном поселке Трошково...
    • 1 эт.
    • 138 м²
    • 7 сот.
    9 600 000 Р
    Агент
    +7 (923) Показать номер
    Посмотреть контакты
    Дом в Московская область, Раменский муниципальный округ, Лисичкино кп  ... - Фото 1
    Дом в Московская область, Раменский муниципальный округ, Лисичкино кп  ... - Фото 2
    1 этаж, общая площадь 121м², участок 6 соток

    Продается дом со всеми коммуникациями. Для круглогодичного проживания.
    • 1 эт.
    • 121 м²
    • 6 сот.
    9 500 000 Р
    Агент
    +7 (934) Показать номер
    Посмотреть контакты
    Дом в Московская область, Раменский муниципальный округ, д. Володино  ... - Фото 1
    Дом в Московская область, Раменский муниципальный округ, д. Володино  ... - Фото 2
    2 этажа, общая площадь 125м², участок 5 соток

    Новый современный коттедж площадью 125 кв.м. с отделкой под ключ в деревне Володино. ИЖС.Построен в двух уровнях из газосиликатных блоков на ленточном фунадменте, утеплен, снаружи оштукатурен.Окна - стеклопакеты Рехау. На полу ламинат, плитка. Натяжные...
    • 2 эт.
    • 125 м²
    • 5 сот.
    9 500 000 Р
    Агент
    +7 (923) Показать номер
    Посмотреть контакты
    Дом в Московская область, Раменский муниципальный округ, Ольховка ... - Фото 1
    Дом в Московская область, Раменский муниципальный округ, Ольховка ... - Фото 2
    2 этажа, общая площадь 110м², участок 7 соток

    В продаже двухэтажный дом 110 квадратных метров в коттеджном поселке Березовый Парк Ольховка .ПОДХОДИТ ПОД СЕМЕЙНУЮ ИПОТЕКУ Дом построен по каркасной технологии, выполнена внутренняя отделка, заведены все коммуникации. Клубный поселок Ольховка —...
    • 2 эт.
    • 110 м²
    • 7 сот.
    9 450 000 Р
    Агент
    +7 (986) Показать номер
    Посмотреть контакты

    Не нашли подходящего объявления?

    Оставьте заявку, и наши риэлторы подберут купить дом в районе Дергаево

    (0)