Солнечногорский район
Выбрать Отмена
1 586 562 Р 20 000 $ или 17 070

Информация об помещении

1
Этаж

Состояние и оснащение

Количество этажей
2
Развернуть
Агент
+7 (986) 314-39-02
Начать чат с агентом

Склад в Московская область, Солнечногорск городской округ, ...

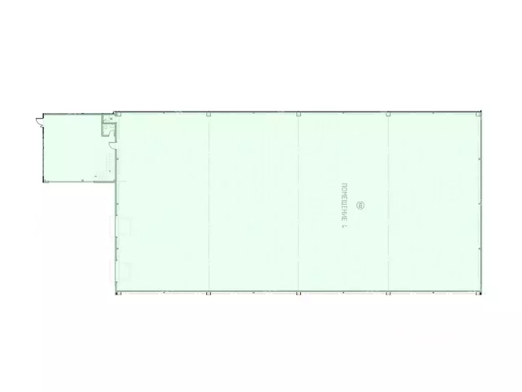
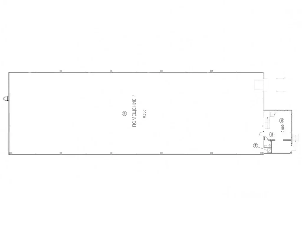
Сдается в аренду новое производственно-складское помещение вблизи ЦКАД в промышленном парке INDUSTRIAL CITY Есипово-4. Планировочное решение включает в себя пространство для производства, склад или логистику 997,03 кв.м, а также офисную часть 109,93 кв.м Аренда напрямую от собственника INDUSTRIAL CITY, что гарантирует отсутствие каких-либо комиссий и скрытых платежей Формат Base. Блок E, Бокс 4.Срок аренды от 3 лет.Включено в ставку: эксплуатационные расходы (OPEX) Объект расположен в северо-западном направлении с выездом на Ленинградское шоссе. Расстояние от ЦКАД - 5 км, от МКАД - 34 км.Координаты: 56.083262, 37.095898 ОСНОВНЫЕ ХАРАКТЕРИСТИКИ:- Класс: A- Температура: Сухой склад- Автоматическая спринклерная система пожаротушения- Высота: 8 м- Нагрузка на пол: 5 т/кв.м- Высококачественные бетонные полы с антипылевым покрытием и упрочняющим слоем- Сетка колонн: 12x24- Ворота: докового типаКОММУНИКАЦИИ:- Электричество: 25 кВт (возможно увеличение мощности)- Вентиляция: приточно-вытяжная- Водоснабжение, канализация- Индивидуальные приборы учетаИНФРАСТРУКТУРА:- Парковки для транспорта: для грузовых авто — 1 место, для легкового авто — 3 места- Доступ к производственно-складским помещениям 24/7- Охраняемая территория- Видеонаблюдение- Скоростной интернет и телефонияДОПОЛНИТЕЛЬНО:- Собственная профессиональная управляющая компания- Клининг- Консьерж-сервис- Мобильное приложение- Маркетплейс услуг- Кафе на территории- Зоны отдыха и спортивные площадкиЗвоните и узнайте условия аренды прямо сейчас

Читать полностью
    Позвонить Написать
    1 586 562 Р20 000 $ или 17 070
    Агент
    +7 (986) 314-39-02
    Начать чат с агентом
    Похожие предложения в Солнечногорском районе
    Склад в Московская область, Солнечногорск городской округ, ... - Фото 1
    Склад в Московская область, Солнечногорск городской округ, ... - Фото 2
    Складское помещение 1 335.0 кв. м в ICPARK Есипово от собственника.Направление: Северо-Запад. Шоссе: Ленинградское. Округ: Московская область. Расстояние от МКАД: 32 км. Характеристики:- Класс: A; - Ворота: Доки; - Тип склада: Light Industrial; - Высота...
    • 1/1 эт.
    1 668 763 Р
    Агент
    +7 (915) Показать номер
    Посмотреть контакты
    Склад в Московская область, Солнечногорск городской округ, ... - Фото 1
    Склад в Московская область, Солнечногорск городской округ, ... - Фото 2
    Складское помещение 1 112.5 кв. м в ICPARK Есипово от собственника. Объект на стадии активного строительства, готовность ко въезду уточняется по запросу. Направление: Северо-Запад. Шоссе: Ленинградское. Округ: Московская область. Расстояние от МКАД:...
    • 1/1 эт.
    1 576 456 Р
    Агент
    +7 (915) Показать номер
    Посмотреть контакты
    Склад в Московская область, Солнечногорск городской округ, ... - Фото 1
    Склад в Московская область, Солнечногорск городской округ, ... - Фото 2
    Складское помещение 1 107.0 кв. м в ICPARK Есипово от собственника. Объект на стадии активного строительства, готовность ко въезду уточняется по запросу. Направление: Северо-Запад. Шоссе: Ленинградское. Округ: Московская область. Расстояние от МКАД:...
    • 1/1 эт.
    1 660 440 Р
    Агент
    +7 (915) Показать номер
    Посмотреть контакты
    Склад в Московская область, Солнечногорск городской округ, ... - Фото 1
    Склад в Московская область, Солнечногорск городской округ, ... - Фото 2
    Складское помещение 1 122.2 кв. м в ICPARK Есипово от собственника. Объект на стадии активного строительства, готовность ко въезду уточняется по запросу. Направление: Северо-Запад. Шоссе: Ленинградское. Округ: Московская область. Расстояние от МКАД:...
    • 1/1 эт.
    1 683 285 Р
    Агент
    +7 (915) Показать номер
    Посмотреть контакты
    Склад в Московская область, Солнечногорск городской округ, ... - Фото 1
    Склад в Московская область, Солнечногорск городской округ, ... - Фото 2
    Складское помещение 1 107.0 кв. м в ICPARK Есипово от собственника. Объект на стадии активного строительства, готовность ко въезду уточняется по запросу. Направление: Северо-Запад. Шоссе: Ленинградское. Округ: Московская область. Расстояние от МКАД:...
    • 1/1 эт.
    1 568 563 Р
    Агент
    +7 (915) Показать номер
    Посмотреть контакты

    Не нашли подходящего объявления?

    Оставьте заявку, и наши риэлторы подберут склад в районе Солнечногорского района

    (0)