Солнечногорский район
Выбрать Отмена
1 683 285 Р 21 110 $ или 17 990

Информация об помещении

1
Этаж

Состояние и оснащение

Количество этажей
1
Развернуть
Агент
+7 (915) 266-41-29
Начать чат с агентом

Склад в Московская область, Солнечногорск городской округ, ...

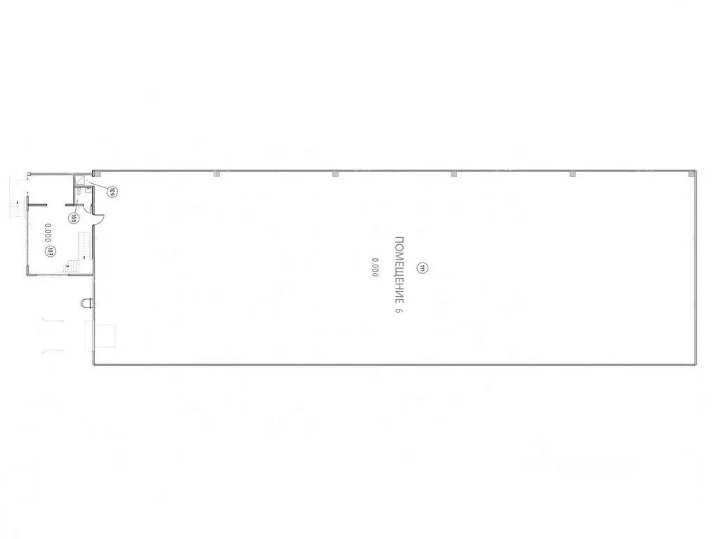
Складское помещение 1 122.2 кв. м в ICPARK Есипово . Объект на стадии активного строительства, готовность ко въезду уточняется по запросу. Направление: Северо-Запад. Шоссе: Ленинградское. Округ: Московская область. Расстояние от МКАД: 32 км. Характеристики:- Класс: A; - Ворота: Доки; - Тип склада: Light Industrial; - Высота потолков: 8 м; - Нагрузка на пол: 4 т/ кв.м; - Система пожаротушения: Внешние гидранты и внутренние пожарные краны; - Тип пола: С антипылевым покрытием; - Уровень пола: 1.2 м. Арендная ставка:/кв. м в год. Финансовые условия: - В стоимость включено: OPEX, НДС; - Оплачивается отдельно: Коммунальные услуги, Электроэнергия; - Налог: Включая НДС. Без комиссии и скрытых платежей для арендатора.Готовы оперативно организовать просмотр в удобное время, предоставить PDF-презентацию и план. Точное местоположение объекта можно найти по данным координатам: 56.081709,37.104696 ID = c_1783419

Читать полностью
    Позвонить Написать
    1 683 285 Р21 110 $ или 17 990
    Агент
    +7 (915) 266-41-29
    Начать чат с агентом
    Похожие предложения
    Склад в Московская область, Солнечногорск городской округ, ... - Фото 1
    Склад в Московская область, Солнечногорск городской округ, ... - Фото 2
    Складское помещение 1 335.0 кв. м в ICPARK Есипово .Направление: Северо-Запад. Шоссе: Ленинградское. Округ: Московская область. Расстояние от МКАД: 32 км. Характеристики:- Класс: A; - Ворота: Доки; - Тип склада: Light Industrial; - Высота потолков:...
    • 1/1 эт.
    1 668 763 Р
    Агент
    +7 (915) Показать номер
    Посмотреть контакты
    Склад в Московская область, Солнечногорск городской округ, ... - Фото 1
    Склад в Московская область, Солнечногорск городской округ, ... - Фото 2
    Складское помещение 1 107.0 кв. м в ICPARK Есипово . Объект на стадии активного строительства, готовность ко въезду уточняется по запросу. Направление: Северо-Запад. Шоссе: Ленинградское. Округ: Московская область. Расстояние от МКАД: 32 км. Характеристики:-...
    • 1/1 эт.
    1 660 440 Р
    Агент
    +7 (915) Показать номер
    Посмотреть контакты
    Склад в Московская область, Солнечногорск городской округ, ... - Фото 1
    Склад в Московская область, Солнечногорск городской округ, ... - Фото 2
    Складское помещение 1 107.0 кв. м в ICPARK Есипово . Объект на стадии активного строительства, готовность ко въезду уточняется по запросу. Направление: Северо-Запад. Шоссе: Ленинградское. Округ: Московская область. Расстояние от МКАД: 32 км. Характеристики:-...
    • 1/1 эт.
    1 660 440 Р
    Агент
    +7 (915) Показать номер
    Посмотреть контакты
    Склад в Московская область, Реутов Транспортная ул., 1/2 (1000 м) - Фото 1
    Склад в Московская область, Реутов Транспортная ул., 1/2 (1000 м) - Фото 2
    Уникальный номер помещения.Аренда помещения от собственника (без комиссии);Арендные каникулы, скидки и индивидуальные улучшения - все обсуждается;Помещение находится на огороженной и охраняемой территории;Производственно-складской комплекс класса ВУдобное...
    • 1/1 эт.
    1 800 000 Р
    Агент
    +7 (980) Показать номер
    Посмотреть контакты
    Склад в Московская область, Реутов Транспортная ул., 1/2 (1000 м) - Фото 1
    Склад в Московская область, Реутов Транспортная ул., 1/2 (1000 м) - Фото 2
    Уникальный номер помещения.Аренда помещения от собственника (без комиссии);Арендные каникулы, скидки и индивидуальные улучшения - все обсуждается;Помещение находится на огороженной и охраняемой территории;Производственно-складской комплекс класса ВУдобное...
    • 1/1 эт.
    1 800 000 Р
    Агент
    +7 (980) Показать номер
    Посмотреть контакты

    Не нашли подходящего объявления?

    Оставьте заявку, и наши риэлторы подберут склад в районе Солнечногорского района

    (0)