Солнечногорский район
Выбрать Отмена
146 300 000 Р 1 900 700 $ или 1 625 300

Информация об помещении

1
Этаж

Состояние и оснащение

Количество этажей
2
Развернуть
Агент
+7 (938) 656-74-88
Начать чат с агентом

Помещение свободного назначения в Московская область, Солнечногорск ...

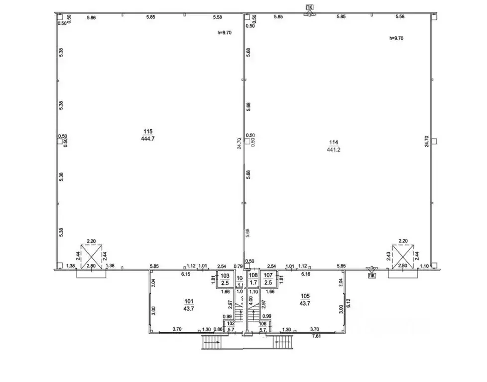
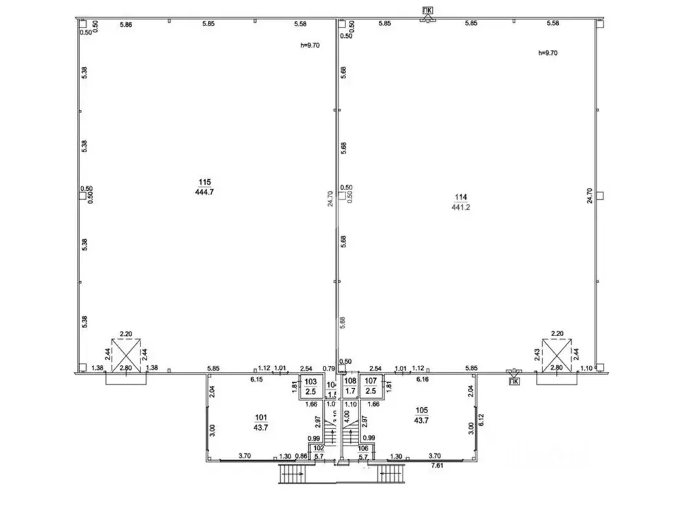
1133465. Складское помещение общей площадью 1100 кв. м. в индустриальном парке Есипово-2. Корпус В.Преимущества:Комплекс складских помещений категории Лайт Индастриал.32 км от МКАД по Ленинградскому шоссе, вблизи трассы А-107 и ЦКАД.Развитая транспортная инфраструктура.Зона погрузки / разгрузки - 2 дока с высотой 1,2 м.Половина склада оборудована стеллажами и климатической системой.Вторая половина - открытая планировка. Данный склад прошел лицензирование в Росалкогольтабакконтроль с данным оборудованием. Стоимость улучшений входит в стоимость продажи. Готовая инженерная инфраструктура.Парковка на территории комплекса.Доступ к производственно-складским помещениям 24/7.Комплексная эксплуатация объектов.Охраняемая территория.В блоке оборудованы кухня и офис.Цифровой промышленный коворкинг Индастриал Сити в формате Лайт Индастриал прошел сертификацию ассоциации по уровню готовности зданий к облачным подключениям и соответствию стандартам цифровой экономики.Парки Индастриал Сити подключены к мощным центрам обработки данных, имеют высокий уровень надежности и безопасности. Технические характеристики:Общая площадь - 1100 кв. м, из них:Производственная площадь - 880 кв. м, офисы - 220 кв. м.Доковые ворота на уровне 1,2 м - 2 шт.Электричество: 50 кВт, возможно увеличение.Количество грузовых парковочных мест - 2 + 2.Количество легковых парковочных мест - 6.Нагрузка на пол: 5 т/м2.Высота потолков: 8 м.Так как корректный адрес отсутствует на Яндекс.Картах, введен ближайший.

Читать полностью
    Позвонить Написать
    146 300 000 Р1 900 700 $ или 1 625 300
    Агент
    +7 (938) 656-74-88
    Начать чат с агентом
    Похожие предложения
    Помещение свободного назначения в Московская область, Солнечногорск ... - Фото 1
    Помещение свободного назначения в Московская область, Солнечногорск ... - Фото 2
    Продажа производственно-складского помещения 986 кв.м в ЕсиповоНагрузка на пол: 4 т/кв.мРабочая высота 8мСрок готовности объекта: 4 квартал 2025 гВАЖНОПрямая продажа от собственникаОСНОВНЫЕ ХАРАКТЕРИСТИКИ- Площадь 986 м- Температура: Сухой- Тип пола:...
    • 1/3 эт.
    142 970 000 Р
    Агент
    +7 (923) Показать номер
    Посмотреть контакты
    Помещение свободного назначения в Московская область, Солнечногорск ... - Фото 1
    Помещение свободного назначения в Московская область, Солнечногорск ... - Фото 2
    1133465. Складское помещение общей площадью 1100 кв. м. в индустриальном парке Есипово-2. Корпус В.Преимущества:Комплекс складских помещений категории Лайт Индастриал.32 км от МКАД по Ленинградскому шоссе, вблизи трассы А-107 и ЦКАД.Развитая транспортная...
    • 1/2 эт.
    146 300 000 Р
    Агент
    +7 (938) Показать номер
    Посмотреть контакты
    Помещение свободного назначения в Московская область, Солнечногорск ... - Фото 1
    Помещение свободного назначения в Московская область, Солнечногорск ... - Фото 2
    1133465. Складское помещение общей площадью 1100 кв. м. в индустриальном парке Есипово-2. Корпус В.Преимущества:Комплекс складских помещений категории Лайт Индастриал.32 км от МКАД по Ленинградскому шоссе, вблизи трассы А-107 и ЦКАД.Развитая транспортная...
    • 1/2 эт.
    154 000 000 Р
    Агент
    +7 (938) Показать номер
    Посмотреть контакты
    Помещение свободного назначения в Московская область, Солнечногорск ... - Фото 1
    Помещение свободного назначения в Московская область, Солнечногорск ... - Фото 2
    1091467. Предлагается готовое складское помещение общей площадью 1 212.8 кв. м, формата Лайт Индастриал в индустриальном парке Есипово-2. Блоки 9 + 10.Преимущества:32 км от МКАД по Ленинградскому шоссе, вблизи трассы А-107 и ЦКАД.Развитая транспортная...
    • 1/2 эт.
    144 323 200 Р
    Агент
    +7 (938) Показать номер
    Посмотреть контакты
    Помещение свободного назначения в Московская область, Ленинский ... - Фото 1
    Помещение свободного назначения в Московская область, Ленинский ... - Фото 2
    ЛотПредложение от Собственника Продажа здания в ЖК Римский на первой линии жилого комплекса, который состоит из 7 корпусов переменной этажности (от 4 до 17 этажей), рассчитанных на 5 097 квартир.Создан плотный жилой массив, что формирует интенсивный...
    • 1/3 эт.
    158 000 000 Р
    Агент
    +7 (986) Показать номер
    Посмотреть контакты

    Не нашли подходящего объявления?

    Оставьте заявку, и наши риэлторы подберут псн в районе Солнечногорского района

    (0)