Солнечногорский район
Выбрать Отмена
144 323 200 Р 1 875 000 $ или 1 603 400

Информация об помещении

1
Этаж

Состояние и оснащение

Количество этажей
2
Развернуть
Агент
+7 (938) 656-74-88
Начать чат с агентом

Помещение свободного назначения в Московская область, Солнечногорск ...

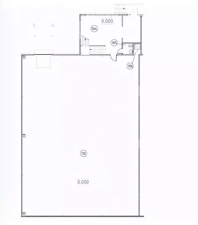
1091467. Предлагается готовое складское помещение общей площадью 1 212.8 кв. м, формата Лайт Индастриал в индустриальном парке Есипово-2. Блоки 9 + 10.Преимущества:32 км от МКАД по Ленинградскому шоссе, вблизи трассы А-107 и ЦКАД.Развитая транспортная инфраструктура.Зона погрузки / разгрузки.Цифровой промышленный коворкинг Индастриал Сити в формате Лайт Индастриал прошел сертификацию ассоциации по уровню готовности зданий к облачным подключениям и соответствию стандартам цифровой экономики.Парки Индастриал Сити подключены к мощным центрам обработки данных, имеют высокий уровень надежности и безопасности.Готовая инженерная инфраструктура.Парковка на территории комплекса.Доступ к производственно-складским помещениям 24/7.Комплексная эксплуатация объектов.Охраняемая территория.Технические характеристики:Площадь блока: 1 212,8 кв. м.Производственная площадь - 992,8 кв. м, офис - 220 кв. м.Ворота - 2 шт. на уровне 0.Электричество: 100 кВт.Количество грузовых парковочных мест - 4.Количество легковых парковочных мест - 6.Объект сдан в 2023 г.Так как корректный адрес отсутствует на Яндекс.Картах, введен ближайший.

Читать полностью
    Позвонить Написать
    144 323 200 Р1 875 000 $ или 1 603 400
    Агент
    +7 (938) 656-74-88
    Начать чат с агентом
    Похожие предложения
    Помещение свободного назначения в Московская область, Солнечногорск ... - Фото 1
    Помещение свободного назначения в Московская область, Солнечногорск ... - Фото 2
    Продажа производственно-складского помещения 986 кв.м в ЕсиповоНагрузка на пол: 4 т/кв.мРабочая высота 8мСрок готовности объекта: 4 квартал 2025 гВАЖНОПрямая продажа от собственникаОСНОВНЫЕ ХАРАКТЕРИСТИКИ- Площадь 986 м- Температура: Сухой- Тип пола:...
    • 1/3 эт.
    142 970 000 Р
    Агент
    +7 (923) Показать номер
    Посмотреть контакты
    Помещение свободного назначения в Московская область, Солнечногорск ... - Фото 1
    Помещение свободного назначения в Московская область, Солнечногорск ... - Фото 2
    1133465. Складское помещение общей площадью 1100 кв. м. в индустриальном парке Есипово-2. Корпус В.Преимущества:Комплекс складских помещений категории Лайт Индастриал.32 км от МКАД по Ленинградскому шоссе, вблизи трассы А-107 и ЦКАД.Развитая транспортная...
    • 1/2 эт.
    146 300 000 Р
    Агент
    +7 (938) Показать номер
    Посмотреть контакты
    Помещение свободного назначения в Московская область, Солнечногорск ... - Фото 1
    Помещение свободного назначения в Московская область, Солнечногорск ... - Фото 2
    1133465. Складское помещение общей площадью 1100 кв. м. в индустриальном парке Есипово-2. Корпус В.Преимущества:Комплекс складских помещений категории Лайт Индастриал.32 км от МКАД по Ленинградскому шоссе, вблизи трассы А-107 и ЦКАД.Развитая транспортная...
    • 1/2 эт.
    146 300 000 Р
    Агент
    +7 (938) Показать номер
    Посмотреть контакты
    Помещение свободного назначения в Московская область, Солнечногорск ... - Фото 1
    Помещение свободного назначения в Московская область, Солнечногорск ... - Фото 2
    1065397. Предлагаем складское помещение общей площадью 911 м2 в индустриальном парке Есипово-5.Преимущества:32 км. от МКАД по Ленинградскому шоссе, вблизи трассы А-107 и ЦКАД.Комплекс складских помещений.Развитая транспортная инфраструктура.Открытая планировка:...
    • 1/2 эт.
    132 174 240 Р
    Агент
    +7 (938) Показать номер
    Посмотреть контакты
    Помещение свободного назначения в Московская область, Солнечногорск ... - Фото 1
    Помещение свободного назначения в Московская область, Солнечногорск ... - Фото 2
    1065397. Предлагаем складское помещение общей площадью 911 м2 в индустриальном парке Есипово-5.Преимущества:32 км. от МКАД по Ленинградскому шоссе, вблизи трассы А-107 и ЦКАД.Комплекс складских помещений.Развитая транспортная инфраструктура.Открытая планировка:...
    • 1/2 эт.
    132 174 240 Р
    Агент
    +7 (938) Показать номер
    Посмотреть контакты

    Не нашли подходящего объявления?

    Оставьте заявку, и наши риэлторы подберут псн в районе Солнечногорского района

    (0)