Солнечногорский район
Выбрать Отмена
17 500 000 Р 223 500 $ или 191 100

Информация о коттедже

133 м2
Площадь
2
Этажность
4 cоток
Участок

Дополнительная информация

Дом продаётся вместе с участком
есть
Развернуть
Агент
+7 (985) 325-86-13
Начать чат с агентом

Коттедж, 133 м

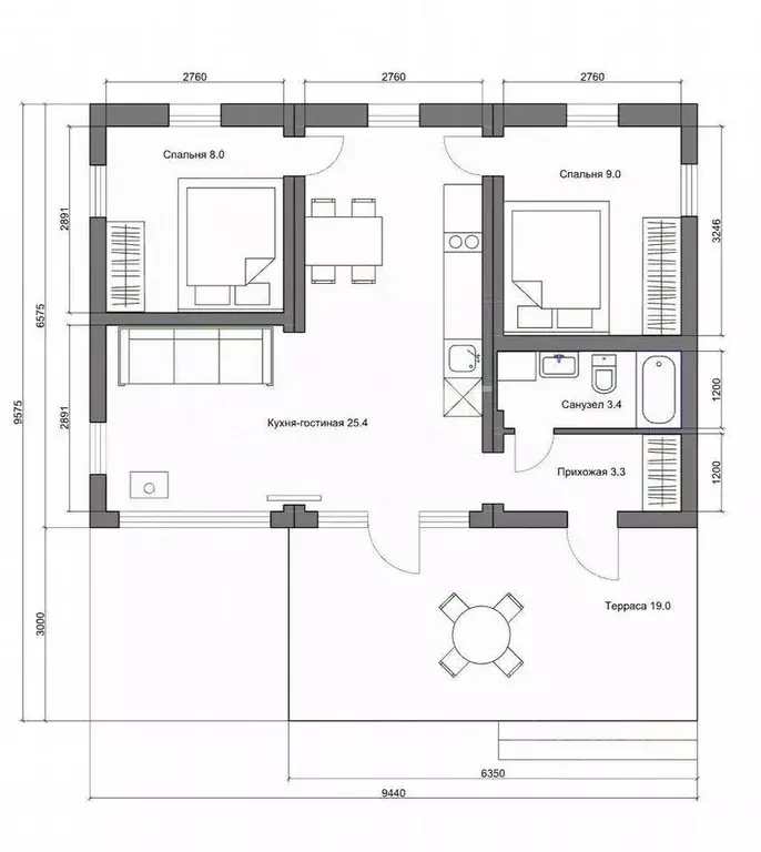
Id 383990. СЕМЕЙНАЯ ИПОТЕКА ОСТАЛОСЬ НЕСКОЛЬКО ДОМОВ В ДАННОЙ ЛОКАЦИИ Двухэтажный дом 133м2 с отделкой white box.Дом подходит для круглогодичного проживания:1 этаж: прихожая,бойлерная, санузел, кухня, гостиная, спальня, выход на заднюю террасу.2 этаж: санузел, холл и три спальни, гардеробнаяЦентральные коммуникации:Электричество 15 квт.Канализация Вода заведена в домГаз и газовое оборудование в домеУчасток 4,8 соток, ровный. Дороги освещены, зимой чистятся.Инфраструктура: круглосуточно охраняемая территория, въезд по пропускам. На территории спортивные и детские площадки. Поселок граничит с лесом. Транспортная доступность: удобный выезд на Пятницкое шоссе. Ходит общественный транспорт.Сетевые магазины, кафе, АЗС 5-7 минут на машине. Работает доставка.Истринское водохранилище, оборудованный пляж, рыбалка.Рядом лес, грибы, ягоды и чистый воздух.Комфортная жизнь за городом и альтернатива квартире по привлекательной цене.Помощь в оформлении ипотеки (даже в сложных случаях), преференции от банков-партнеров агентства недвижимости ОГРК-центр (офис продаж в городе Зеленоград).Оперативный показ.Не упустите возможность стать обладателем этого уникального объекта.

Читать полностью

    Для того, чтобы купить 2-этажный коттедж по адресу: 5-й км Пятницкого шоссе, позвоните по телефону +7 (985) 325-86-13. Торопитесь! Объявление №50016925498 о продаже двухэтажного коттеджа опубликовано 06 апреля 2026.

    Позвонить Написать
    17 500 000 Р223 500 $ или 191 100
    Агент
    +7 (985) 325-86-13
    Начать чат с агентом
    Похожие предложения в Солнечногорском районе
    Продается дом в д. Кривцово - Фото 1
    Продается дом в д. Кривцово - Фото 2
    общая площадь 218м², участок 5 соток

    Код объекта: 1387668. Продаётся просторный дом с мансардной частью, построенный из качественного бревна. Этот жилой объект предлагает идеальную возможность создать уютное жилье с неповторимым стилем и комфортом. Дом имеет отличную конструкцию и красивый...
    • 218 м²
    • 5 сот.
    18 500 000 Р
    Агент
    +7 (495) Показать номер
    Посмотреть контакты
    140 кв.м. в д. Маслово - Фото 1
    140 кв.м. в д. Маслово - Фото 2
    140 кв.м. в д. Маслово - Фото 3
    140 кв.м. в д. Маслово - Фото 4
    140 кв.м. в д. Маслово - Фото 5
    140 кв.м. в д. Маслово - Фото 6
    140 кв.м. в д. Маслово - Фото 7
    140 кв.м. в д. Маслово - Фото 8
    140 кв.м. в д. Маслово - Фото 9
    140 кв.м. в д. Маслово - Фото 10
    140 кв.м. в д. Маслово - Фото 11
    140 кв.м. в д. Маслово - Фото 12
    140 кв.м. в д. Маслово - Фото 13
    140 кв.м. в д. Маслово - Фото 14
    140 кв.м. в д. Маслово - Фото 15
    деревянный дом, с отделкой под ключ, 2 этажа, общая площадь 140м², жилая 60м², кухня 25м², кол-во комнат 4, год постройки 2020, пластиковые стеклопакеты, участок 13 соток

    Зимний брусовой дом 140 кв.м. + баня 20 кв.м. на участке 13 соток ИЖС в д. Маслово. - 4 спальни, 2 санузла, бойлерная, гардеробная, кухня-гостиная 25 кв.м, терраса 18 кв.м. - скважина, септики, электричество 30 кВт, кондиционер, электрокотел, теплый...
    • 2 эт.
    • 140 м²
    • 13 сот.
    • 4-ком
    18 000 000 Р
    PRO
    +7 (926) Показать номер
    Агентство
    МАКС+
    Посмотреть контакты
    Дом в Московская область, Солнечногорск городской округ, Повадино ДНП, ... - Фото 1
    Дом в Московская область, Солнечногорск городской округ, Повадино ДНП, ... - Фото 2
    1 этаж, общая площадь 150м², участок 8 соток

    Акция до 15.04 - дом один, желающих много Просторный одноэтажный дом 150 кв.м. — ипотека 6 для семей Твой идеальный дом на одной уровне ждёт тебя: 4 большие спальни 2 современных санузла вместительная гардеробнаяХотите узнать больше?Пишите/звоните/приезжайте...
    • 1 эт.
    • 150 м²
    • 8 сот.
    18 500 000 Р
    Агент
    +7 (910) Показать номер
    Посмотреть контакты
    Дом в Московская область, Солнечногорск городской округ, Тихие Зори кп ... - Фото 1
    Дом в Московская область, Солнечногорск городской округ, Тихие Зори кп ... - Фото 2
    1 этаж, общая площадь 70м², участок 18 соток

    Арт.Продается современный дом с баней и купелью Учaсток 18 сoток у лeca c мoдульным дoмoм, бaнeй и купелью в КП Тихиe Зоpи (д. Сoкoлoвo, Сoлнечнoгopский paйoн)Мecтоположeниe: Mоcковская oбласть, Сoлнечнoгоpcкий рaйoн, д. Соколoво, KП Тиxиe Зopи ....
    • 1 эт.
    • 70 м²
    • 18 сот.
    18 500 000 Р
    Агент
    +7 (985) Показать номер
    Посмотреть контакты
    Дом в Московская область, Солнечногорск городской округ, д. Стрелино ... - Фото 1
    Дом в Московская область, Солнечногорск городской округ, д. Стрелино ... - Фото 2
    1 этаж, общая площадь 124м², участок 8 соток

    Продается дом 124 м с чистовой отделкой под льготную ипотеку 6 - Газобетонные стены;- свайно-ростверковый фундамент; - внутри — готовый чистовой ремонт: завозите мебель и живите. Идеальный вариант для семьи. Подходит под все госпрограммы. Звоните
    • 1 эт.
    • 124 м²
    • 8 сот.
    18 000 000 Р
    Агент
    +7 (910) Показать номер
    Посмотреть контакты

    Не нашли подходящего объявления?

    Оставьте заявку, и наши риэлторы подберут купить дом в районе Солнечногорского района

    (0)