12 500 000 Р 159 800 $ или 135 700

Информация о коттедже

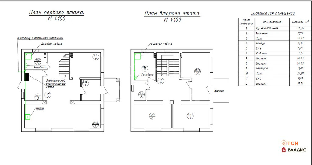
170 м2
Площадь
79 м2
Жилая
10 м2
Кухня
2025
Построен
2
Этажность
5
Количество комнат
10 cоток
Участок

Состояние и оснащение

Дом
блочный
Год постройки
2025

Дополнительная информация

Тип санузла
совмещенный
Дом продаётся вместе с участком
есть
Категория назначения землепользования
знп земли населенных пунктов
Вид разрешенного использования для участка
знп для ижс

Коммуникации

Водоснабжение
центральное
Канализация
есть
Электроснабжение
обеспечено действующим договором с электросбытовой компанией
Развернуть
Агент
Исматов Тимур Абдумаликович
+7 (925) 109-50-00
Начать чат с агентом

Продажа дома, Щелковский район

Код объекта: 1978282.ДОМ ОТ ЗАСТРОЙЩИКА ПОД СЕМЕЙНУЮ ИПОТЕКУ!!!Исключительное предложение для тех, кто мечтает о собственном уютном доме в живописном месте! Продаётся полноценный двухэтажный блочный дом площадью 170 кв. м на участке в 10 соток на территории Назимиха-Парк городского округа Щёлково, Московская область.Дом сдается в комплектации WHITE BOX либо в чистовой отделке по желанию будущего покупателя.Коммуникации: Электричество 15 кВт заведено в дом, скважина и биостанция-септик.Дом построен на монолитной плите из блока и отделан клинкерной плиткой с утеплителем, что позволит снизить расходы на отопление, гарантирует долговечность и комфорт.Близость к природе и спокойствие загородной жизни в сочетании с доступностью городской инфраструктуры делают этот дом идеальным выбором для семей, ищущих уединение и комфорт. Всего 5 километров до города — и вы в центре событий! В шаговой доступности школа, детский сад, сетевые магазины и ПВЗ.Позвоните нам прямо сейчас, чтобы узнать больше и записаться на просмотр. Мы гарантируем безопасную сделку и юридическую поддержку нашим клиентам. Поможем одобрить ипотеку с сниженной ставкой.

Читать полностью

    Для того, чтобы купить 2-этажный коттедж по адресу: , позвоните по телефону +7 (925) 109-50-00. Торопитесь! Объявление №506735469 о продаже двухэтажного коттеджа опубликовано Сегодня.

    Позвонить Написать
    12 500 000 Р159 800 $ или 135 700
    Агент
    Исматов Тимур Абдумаликович
    +7 (925) 109-50-00
    Начать чат с агентом
    Похожие предложения в Щелковском районе
    Продается дом в дп Загорянский - Фото 1
    Продается дом в дп Загорянский - Фото 2
    общая площадь 70м², участок 12 соток

    Код объекта: 1719867.Предлагаем Вашему вниманию уютный дом для круглогодичного проживания на просторном , ухоженном участке.Можно заехать и жить . А потом построить и большой дом, места достаточно В доме кухня , санузел, несколько спален. Сделан ремонт....
    • 70 м²
    • 12 сот.
    12 400 000 Р
    Агент
    +7 (499) Показать номер
    Посмотреть контакты
    Продается дом в г. Щелково - Фото 1
    Продается дом в г. Щелково - Фото 2
    общая площадь 128м², участок 3 сотки

    Продается комфортный дом с земельным участком и всеми центральными коммуникациями, полностью готовый к проживанию в г. Щелково, ул. Гоголя Жилой дом 2-х этажный (2-й этаж мансардный), общая площадь 128,2 кв.м., жилая площадь 74,7 кв.м. На 1 -м этаже...
    • 128 м²
    • 3 сот.
    12 990 000 Р
    Агент
    +7 (916) Показать номер
    Посмотреть контакты
    Продажа дома, Щелковский район - Фото 1
    Продажа дома, Щелковский район - Фото 2
    Продажа дома, Щелковский район - Фото 3
    Продажа дома, Щелковский район - Фото 4
    Продажа дома, Щелковский район - Фото 5
    Продажа дома, Щелковский район - Фото 6
    Продажа дома, Щелковский район - Фото 7
    Продажа дома, Щелковский район - Фото 8
    Продажа дома, Щелковский район - Фото 9
    Продажа дома, Щелковский район - Фото 10
    Продажа дома, Щелковский район - Фото 11
    Продажа дома, Щелковский район - Фото 12
    Продажа дома, Щелковский район - Фото 13
    Продажа дома, Щелковский район - Фото 14
    Продажа дома, Щелковский район - Фото 15
    Продажа дома, Щелковский район - Фото 16
    блочный дом, 2 этажа, общая площадь 150м², жилая 70м², кухня 30м², кол-во комнат 4, год постройки 2023, участок 5.3 соток

    Код объекта: 1984741.Исключительное предложение для тех, кто ищет идеальное место для жизни!Продаётся двухэтажный дом в коттеджном посёлке «Лосиный парк» в городском округе Щёлково, Московская область на прелестном участке.Построенный в 2023 году, этот...
    • 2 эт.
    • 150 м²
    • 5.3 сот.
    • 4-ком
    12 500 000 Р
    Агент
    +7 (925) Показать номер
    Агентство
    ТСН Владис
    Посмотреть контакты
    Продажа дома, Щелковский район - Фото 1
    Продажа дома, Щелковский район - Фото 2
    Продажа дома, Щелковский район - Фото 3
    Продажа дома, Щелковский район - Фото 4
    Продажа дома, Щелковский район - Фото 5
    Продажа дома, Щелковский район - Фото 6
    Продажа дома, Щелковский район - Фото 7
    Продажа дома, Щелковский район - Фото 8
    Продажа дома, Щелковский район - Фото 9
    Продажа дома, Щелковский район - Фото 10
    Продажа дома, Щелковский район - Фото 11
    Продажа дома, Щелковский район - Фото 12
    Продажа дома, Щелковский район - Фото 13
    Продажа дома, Щелковский район - Фото 14
    Продажа дома, Щелковский район - Фото 15
    Продажа дома, Щелковский район - Фото 16
    Продажа дома, Щелковский район - Фото 17
    Продажа дома, Щелковский район - Фото 18
    Продажа дома, Щелковский район - Фото 19
    Продажа дома, Щелковский район - Фото 20
    блочный дом, 1 этаж, общая площадь 109м², жилая 65м², кухня 15м², кол-во комнат 4, год постройки 2023, участок 14.5 соток

    Код объекта: 1973307.Продается новый одноэтажный дом на участке 14,5 соток в 10 км от МКАДВыезд через Щелковское и Горьковское шоссе.Адрес: Московская область, г.о.Щелково, территория Прекрасная, дом 1АДОМ ГОТОВ К ПРОЖИВАНИЮ.Капитальный жилой дом, общей...
    • 1 эт.
    • 109 м²
    • 14.5 сот.
    • 4-ком
    14 000 000 Р
    Агент
    +7 (925) Показать номер
    Агентство
    ТСН Владис
    Посмотреть контакты
    Продажа дома, Свердловский, Щелковский район - Фото 1
    Продажа дома, Свердловский, Щелковский район - Фото 2
    Продажа дома, Свердловский, Щелковский район - Фото 3
    Продажа дома, Свердловский, Щелковский район - Фото 4
    Продажа дома, Свердловский, Щелковский район - Фото 5
    Продажа дома, Свердловский, Щелковский район - Фото 6
    Продажа дома, Свердловский, Щелковский район - Фото 7
    Продажа дома, Свердловский, Щелковский район - Фото 8
    Продажа дома, Свердловский, Щелковский район - Фото 9
    Продажа дома, Свердловский, Щелковский район - Фото 10
    Продажа дома, Свердловский, Щелковский район - Фото 11
    Продажа дома, Свердловский, Щелковский район - Фото 12
    Продажа дома, Свердловский, Щелковский район - Фото 13
    Продажа дома, Свердловский, Щелковский район - Фото 14
    Продажа дома, Свердловский, Щелковский район - Фото 15
    Продажа дома, Свердловский, Щелковский район - Фото 16
    Продажа дома, Свердловский, Щелковский район - Фото 17
    Продажа дома, Свердловский, Щелковский район - Фото 18
    Продажа дома, Свердловский, Щелковский район - Фото 19
    блочный дом, 1 этаж, общая площадь 125м², жилая 50.1м², кухня 15м², кол-во комнат 4, год постройки 2025, участок 5.3 соток

    Код объекта: 1955277.Новогодняя акция Внести аванс и выйти на сделку в этом месяце и получитьВ ПОДАРОК - мoнтaж и покупка качественнoй сaнтexники, уcтaнoвкa умывaльника и тумбы, зеркaльнoго шкафа в ванную, скважина, бойлер на 80 литров, ванна, забор по...
    • 1 эт.
    • 125 м²
    • 5.3 сот.
    • 4-ком
    12 000 000 Р
    Агент
    +7 (925) Показать номер
    Агентство
    ТСН Владис
    Посмотреть контакты

    Не нашли подходящего объявления?

    Оставьте заявку, и наши риэлторы подберут купить дом в районе Щелковского района

    (0)