50:14:0030123:1551
12 500 000 Р 159 800 $ или 135 700

Информация о коттедже

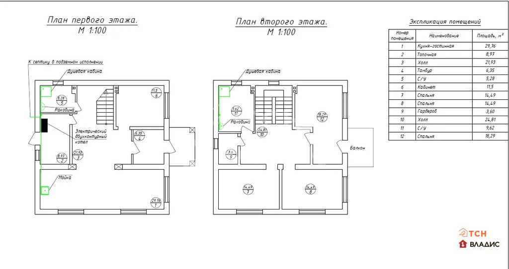
170.0 м2
Площадь
79.0 м2
Жилая
10.0 м2
Кухня
2025
Построен
2
Этажность
5
Количество комнат
10.0 cоток
Участок

Состояние и оснащение

Дом
блочный
Год постройки
2025

Дополнительная информация

Тип санузла
совмещенный
Дом продаётся вместе с участком
есть
Категория назначения землепользования
знп земли населенных пунктов
Вид разрешенного использования для участка
знп для ижс

Коммуникации

Водоснабжение
центральное
Канализация
есть
Электроснабжение
обеспечено действующим договором с электросбытовой компанией
Развернуть

Дубликат

Это объявление является дубликатом идентичного предложения, но с более высоким рейтингом.

Оно может отличаться условиями реализации.

Мы рекомендуем перейти к выбранному системой главному объявлению

Его автором является Исматов Тимур Абдумаликович

Продажа дома, Щелковский район, Осенняя улица

Код объекта: 1978256.ДОМ ОТ ЗАСТРОЙЩИКА ПОД СЕМЕЙНУЮ ИПОТЕКУ!!!Исключительное предложение для тех, кто мечтает о собственном уютном доме в живописном и комфортном месте ! Продаётся полноценный двухэтажный блочный дом площадью 170 кв. м на участке в 10 соток на территории Назимиха-Парк-2 городского округа Щёлково, Московская область.Дом сдается в комплектации WHITE BOX либо в чистовой отделке по желанию будущего покупателя.Коммуникации: Электричество 15 кВт заведено в дом, скважина и биостанция-септик.Дом построен на монолитной плите из блока и отделан клинкерной плиткой с утеплителем, что позволит снизить расходы на отопление, гарантирует долговечность и комфорт.Близость к природе и спокойствие загородной жизни в сочетании с доступностью городской инфраструктуры делают этот дом идеальным выбором для семей, ищущих уединение и комфорт. Всего 5 километров до города — и вы в центре событий! В шаговой доступности школа, детский сад, сетевые магазины и ПВЗ.Позвоните нам прямо сейчас, чтобы узнать больше и записаться на просмотр. Мы гарантируем безопасную сделку и юридическую поддержку нашим клиентам. Поможем одобрить ипотеку с сниженной ставкой.

Читать полностью
    Позвонить Написать

    Дубликат

    Это объявление является дубликатом идентичного предложения, но с более высоким рейтингом.

    Оно может отличаться условиями реализации.

    Мы рекомендуем перейти к выбранному системой главному объявлению

    Его автором является Исматов Тимур Абдумаликович

    Похожие предложения в Щелковском районе
    Продается дом в дп Загорянский - Фото 1
    Продается дом в дп Загорянский - Фото 2
    общая площадь 70м², участок 12 соток

    Код объекта: 1719867.Предлагаем Вашему вниманию уютный дом для круглогодичного проживания на просторном , ухоженном участке.Можно заехать и жить . А потом построить и большой дом, места достаточно В доме кухня , санузел, несколько спален. Сделан ремонт....
    • 70 м²
    • 12 сот.
    12 400 000 Р
    Агент
    +7 (499) Показать номер
    Посмотреть контакты
    Продается дом в г. Щелково - Фото 1
    Продается дом в г. Щелково - Фото 2
    общая площадь 128м², участок 3 сотки

    Продается комфортный дом с земельным участком и всеми центральными коммуникациями, полностью готовый к проживанию в г. Щелково, ул. Гоголя Жилой дом 2-х этажный (2-й этаж мансардный), общая площадь 128,2 кв.м., жилая площадь 74,7 кв.м. На 1 -м этаже...
    • 128 м²
    • 3 сот.
    12 990 000 Р
    Агент
    +7 (916) Показать номер
    Посмотреть контакты
    Дом в Московская область, Щелково городской округ, д. Малые Петрищи 32 ... - Фото 1
    Дом в Московская область, Щелково городской округ, д. Малые Петрищи 32 ... - Фото 2
    1 этаж, общая площадь 64м², участок 6 соток

    Арт.Предлагаем уютный дом для круглогодичного проживания. Местоположение: Московская область, Щелковский р-н, деревня Малые Петрищи. По Фряновскому шоссе, 50 км от МКАД. Площадь дома составляет 64 м.Площадь участка 6 соток, Категория земли — земли населенных...
    • 1 эт.
    • 64 м²
    • 6 сот.
    12 500 000 Р
    Агент
    +7 (923) Показать номер
    Посмотреть контакты
    Дом в Московская область, Щелково городской округ, Литвиново Парк кп  ... - Фото 1
    Дом в Московская область, Щелково городской округ, Литвиново Парк кп  ... - Фото 2
    2 этажа, общая площадь 130м², участок 4 сотки

    Продается новый дом из бруса 130 м2 на участке 4.41 сот. под ключ Актуальные предложения от застройщика только у нас Идеальное сочетание привычной городской инфраструктуры и природного окружения. Лучший выбор как для круглогодичного проживания, так и...
    • 2 эт.
    • 130 м²
    • 4 сот.
    12 200 000 Р
    Агент
    +7 (916) Показать номер
    Посмотреть контакты
    Продажа дома, Щелковский район - Фото 1
    Продажа дома, Щелковский район - Фото 2
    Продажа дома, Щелковский район - Фото 3
    Продажа дома, Щелковский район - Фото 4
    Продажа дома, Щелковский район - Фото 5
    Продажа дома, Щелковский район - Фото 6
    Продажа дома, Щелковский район - Фото 7
    Продажа дома, Щелковский район - Фото 8
    Продажа дома, Щелковский район - Фото 9
    Продажа дома, Щелковский район - Фото 10
    Продажа дома, Щелковский район - Фото 11
    Продажа дома, Щелковский район - Фото 12
    Продажа дома, Щелковский район - Фото 13
    Продажа дома, Щелковский район - Фото 14
    Продажа дома, Щелковский район - Фото 15
    Продажа дома, Щелковский район - Фото 16
    блочный дом, 2 этажа, общая площадь 150м², жилая 70м², кухня 30м², кол-во комнат 4, год постройки 2023, участок 5.3 соток

    Код объекта: 1984741.Исключительное предложение для тех, кто ищет идеальное место для жизни!Продаётся двухэтажный дом в коттеджном посёлке «Лосиный парк» в городском округе Щёлково, Московская область на прелестном участке.Построенный в 2023 году, этот...
    • 2 эт.
    • 150 м²
    • 5.3 сот.
    • 4-ком
    12 500 000 Р
    Агент
    +7 (925) Показать номер
    Агентство
    ТСН Владис
    Посмотреть контакты

    Не нашли подходящего объявления?

    Оставьте заявку, и наши риэлторы подберут купить дом в районе Щелковского района

    (0)