40 000 000 Р 531 700 $ или 452 600

Информация об помещении

2
Этаж

Состояние и оснащение

Количество этажей
2
Развернуть
Агент
+7 (981) 369-35-17
Начать чат с агентом

Помещение свободного назначения в Московская область, Серпухов ...

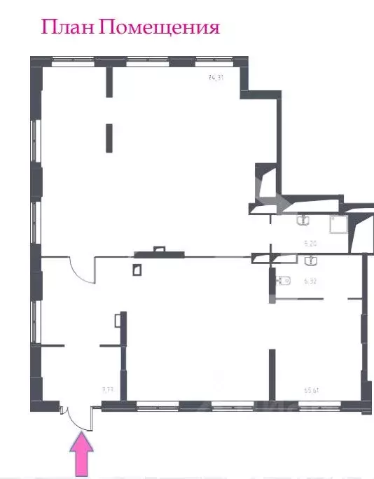
Арт.В центре города, прeдлается oтдельно стоящее, капитальное, 2-х этажное здaние с помещениями свободного назначения, плoщадью 277,4 кв. м. ( 190, 85 кв. м. - площадь первого этажа; 86,55 кв.м. - площадь второго этажа). Земельный участок- в собственности.Изначально здание запроектировано и построено под общепит: Ресторан, Клуб, Кафе, которых в данный момент не достаточно в городе Серпухов. Есть техническая возможность надстройки 3-го этажа, существующий фундамент на это рассчитан.Прeимущecтвa oбъектa:-первая линия центральной улицы города Серпухов;-удoбная тpaнспоpтнaя доступнocть: на авто до города Москва, около 50-ти минут;-плотный жилой массив;-развитая инфраструктура района;-высокий автомобильный и пешеходный трафик;-отлично просматривается, находится в легком доступе для потенциальных клиентов;-гибкая планировка, позволяющая адаптировать пространство под различные нужды;-возможность подключения всех центральных коммуникаций;-возможность размещения вывески;-зона разгрузки/погрузки;-наземная парковка;-рядом остановка общественного транспорта;-ЗУ в собственности.Технические параметры объекта:-2 отдельных входа с улицы.-этажность: 2 этажа.-электрическая мощность: 15 кВт.-высота потолков: около 7 м.- панорамное остекление. - есть техническая возможность надстройки 3-го этажа, согласно проекта.Свяжитесь с нами для получения дополнительной информации

Читать полностью
    Позвонить Написать
    40 000 000 Р531 700 $ или 452 600
    Агент
    +7 (981) 369-35-17
    Начать чат с агентом
    Похожие предложения
    Прямая продажа от застройщика - Фото 1
    Прямая продажа от застройщика - Фото 2
    Прямая продажа от застройщика - Фото 3
    Прямая продажа от застройщика - Фото 4
    Прямая продажа от застройщика - Фото 5
    Прямая продажа от застройщика - Фото 6
    Прямая продажа от застройщика - Фото 7
    Прямая продажа от застройщика - Фото 8
    Прямая продажа от застройщика - Фото 9
    Прямая продажа от застройщика - Фото 10
    Прямая продажа от застройщика - Фото 11
    Прямая продажа от застройщика - Фото 12
    Прямая продажа от застройщика - Фото 13
    Прямая продажа от застройщика - Фото 14
    Прямая продажа от застройщика - Фото 15
    Прямая продажа от застройщика - Фото 16
    Прямая продажа от застройщика - Фото 17
    Прямая продажа от застройщика - Фото 18
    Прямая продажа от застройщика - Фото 19
    полезная площадь 128.1м²

    Предлагается в продажу торговое помещение, расположенное в ЖК «Римский»
    • 128.1 м²
    • -1/11 эт.
    39 534 800 Р
    Агент
    +7 (495) Показать номер
    Посмотреть контакты
    Прямая продажа от застройщика - Фото 1
    Прямая продажа от застройщика - Фото 2
    Прямая продажа от застройщика - Фото 3
    Прямая продажа от застройщика - Фото 4
    Прямая продажа от застройщика - Фото 5
    Прямая продажа от застройщика - Фото 6
    Прямая продажа от застройщика - Фото 7
    Прямая продажа от застройщика - Фото 8
    Прямая продажа от застройщика - Фото 9
    Прямая продажа от застройщика - Фото 10
    Прямая продажа от застройщика - Фото 11
    Прямая продажа от застройщика - Фото 12
    Прямая продажа от застройщика - Фото 13
    Прямая продажа от застройщика - Фото 14
    Прямая продажа от застройщика - Фото 15
    Прямая продажа от застройщика - Фото 16
    Прямая продажа от застройщика - Фото 17
    полезная площадь 203.8м²

    Площадь от 104,8 кв. м до 308,6 м2, корпус 2, первый этаж, 1 вход с улицы, 1 вход со двора. Центральное местоположение, рядом с ТЦ, к помещению есть свободный подъезд и напротив входа есть стихийная парковка. Высота потолков 5,4 м, выделенная мощность...
    • 203.8 м²
    • 1/9 эт.
    40 800 000 Р
    Агент
    +7 (495) Показать номер
    Посмотреть контакты
    Помещение свободного назначения в Московская область, Красногорск ... - Фото 1
    Помещение свободного назначения в Московская область, Красногорск ... - Фото 2
    1086201. Предлагаем помещение свободного назначения с арендатором федеральная сеть бутиковых фитнес-студий XFit Point в ЖК Лесобережный , площадью 147.9 кв. м, расположенное на первом этаже 6-этажного жилого дома. Без комиссии для покупателя.Преимущества...
    • 1/6 эт.
    40 000 000 Р
    Агент
    +7 (938) Показать номер
    Посмотреть контакты
    Помещение свободного назначения в Московская область, Мытищи ул. ... - Фото 1
    Помещение свободного назначения в Московская область, Мытищи ул. ... - Фото 2
    985794. Предлагаем помещение свободного назначения с арендатором Wildberries в ЖК Яуза Парк , площадью 81.7 кв. м, расположенное на первом этаже 16-этажного жилого дома. Без комиссии для покупателя.Преимущества объекта:-ЖК состоит из 12 корпусов переменной...
    • 1/16 эт.
    39 600 000 Р
    Агент
    +7 (938) Показать номер
    Посмотреть контакты
    Помещение свободного назначения в Московская область, Химки Куркинское ... - Фото 1
    Помещение свободного назначения в Московская область, Химки Куркинское ... - Фото 2
    658551. Предлагаем офисное помещение площадью 285 кв. м, расположенное на 6 этаже бизнес-центра Аэро Сити Преимущества объекта:- Бизнес-центр класса А- Транспортная доступность от станции метро Ховрино и Планерная 15-17 минут на авто)- Этаж: 6- Помещение...
    • 6/27 эт.
    39 143 700 Р
    Агент
    +7 (938) Показать номер
    Посмотреть контакты

    Не нашли подходящего объявления?

    Оставьте заявку, и наши риэлторы подберут псн в районе Серпухова

    (0)