360 000 000 Р 4 243 400 $ или 3 714 600

Информация об помещении

1
Этаж

Состояние и оснащение

Количество этажей
3
Развернуть
Агент
+7 (938) 656-74-88
Начать чат с агентом

Помещение свободного назначения в Московская область, Реутов ...

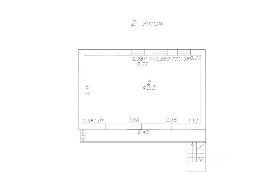
763474. Предлагается складской комплекс общей площадью 3 872 кв. м. в гор. Реутов.Преимущества:Развитая транспортная инфраструктура, шоссе Энтузиастов и МКАД в 4 км.10 минут на автомобиле от ст. Никольское и Новокосино .Сложившееся торгово-промышленное окружение.На территории комплекса расположены объекты складского назначения, офисный блок, административное здание.Ведется строительство быстровозводимого складского здания из металлоконструкций + одно здание в проекте.Каждый объект недвижимости обеспечен электро/тепло/водоснабжением и водоотведением в соответствии с проектной документацией.Газовая котельная, обустроенная артезианская скважина.Зона загрузки/выгрузки грузов.По границе объекта примыкают 2 железнодорожные ветки.Огороженная территория, КПП.Парковка на территории комплекса.Категория земель - земли населенных пунктов. Разрешенный вид использования под размещение и строительство производственно-складской базы.Технические характеристики:КПП для охраны: 1, 2 этаж, площадь ~ 12 кв. м.Складское здание: 1, 2, 3 этаж, площадь 1 481 кв. м.Высота потолков на 1 этаже: 6 м, на 2 этаже: 4,8 м.Вспомогательное офисно-складское здание: 1 этаж, площадь 454 кв. м.Административно-хозяйственное здание: 1, 2, 3 этаж, площадь 925 кв. м.Земельный участок площадью 4 925 кв. м.

Читать полностью
    Позвонить Написать
    360 000 000 Р4 243 400 $ или 3 714 600
    Агент
    +7 (938) 656-74-88
    Начать чат с агентом
    Похожие предложения
    Помещение свободного назначения в Московская область, Реутов ... - Фото 1
    Помещение свободного назначения в Московская область, Реутов ... - Фото 2
    763474. Предлагается складской комплекс общей площадью 3 872 кв. м. в гор. Реутов.Преимущества:Развитая транспортная инфраструктура, шоссе Энтузиастов и МКАД в 4 км.10 минут на автомобиле от ст. Никольское и Новокосино .Сложившееся торгово-промышленное...
    • 1/3 эт.
    360 000 000 Р
    Агент
    +7 (938) Показать номер
    Посмотреть контакты
    Продажа ПСН, Химки, Ленинградское ш. - Фото 1
    Продажа ПСН, Химки, Ленинградское ш. - Фото 2
    Продажа ПСН, Химки, Ленинградское ш. - Фото 3
    Продажа ПСН, Химки, Ленинградское ш. - Фото 4
    Продажа ПСН, Химки, Ленинградское ш. - Фото 5
    Продажа ПСН, Химки, Ленинградское ш. - Фото 6
    Продажа ПСН, Химки, Ленинградское ш. - Фото 7
    Продажа ПСН, Химки, Ленинградское ш. - Фото 8
    Продажа ПСН, Химки, Ленинградское ш. - Фото 9
    Продажа ПСН, Химки, Ленинградское ш. - Фото 10
    общая площадь 2817м², полезная площадь 2817м²

    От собственника. Арендный бизнес. ПСН общей площадью 2817 м2, находится в Торговом центре Лига, который расположен на пересечении Ленинградского шоссе и Юбилейного проспекта, в 10 минутах на транспорте от метро Речной вокзал. Помещение – на 2-м этаже...
    • 2 817 м²
    • 2-й эт.
    350 000 000 Р
    Агент
    +7 (903) Показать номер
    Посмотреть контакты
    Помещение свободного назначения в Московская область, Химки ... - Фото 1
    Помещение свободного назначения в Московская область, Химки ... - Фото 2
    Пятиэтажное здание ТЦ, расположено недалеко от метро Беломорская, Ховрино и Планерная.Налоговая: 47. Лифты: Есть. Вентиляция: Приточно-вытяжная. Кондиционирование: Центральное. Безопасность: Круглосуточная охрана, Система пожаротушений, Видеонаблюдение....
    • -1/5 эт.
    367 219 989 Р
    Агент
    +7 (933) Показать номер
    Посмотреть контакты
    Помещение свободного назначения в Московская область, Подольск ... - Фото 1
    Помещение свободного назначения в Московская область, Подольск ... - Фото 2
    979877. Предлагается помещение общей площадью 3 000 кв. м. в производственно-складском комплексе формата Лайт Индастриал в д. Бяконтово, Подольском р-не МО. Так как корректный адрес отсутствует на Яндекс.Картах, введен ориентировочный. Преимущества:Территория...
    • 1/1 эт.
    354 000 000 Р
    Агент
    +7 (938) Показать номер
    Посмотреть контакты
    Помещение свободного назначения в Московская область, Талдомский ... - Фото 1
    Помещение свободного назначения в Московская область, Талдомский ... - Фото 2
    895235. Предлагается производственная площадка в п.г.т. Запрудня, Талдомский район. Преимущества:Центр производственного комплекса. Сложившееся торгово-промышленное окружение. Напротив жилой массив с развитой инфраструктурой. Рядом проходит Дмитровское...
    • 1/5 эт.
    350 000 000 Р
    Агент
    +7 (938) Показать номер
    Посмотреть контакты

    Не нашли подходящего объявления?

    Оставьте заявку, и наши риэлторы подберут псн в районе Реутова

    (0)