27 944 000 Р 356 900 $ или 305 200

Информация об помещении

1
Этаж

Состояние и оснащение

Количество этажей
23
Развернуть
Агент
+7 (938) 656-74-88
Начать чат с агентом

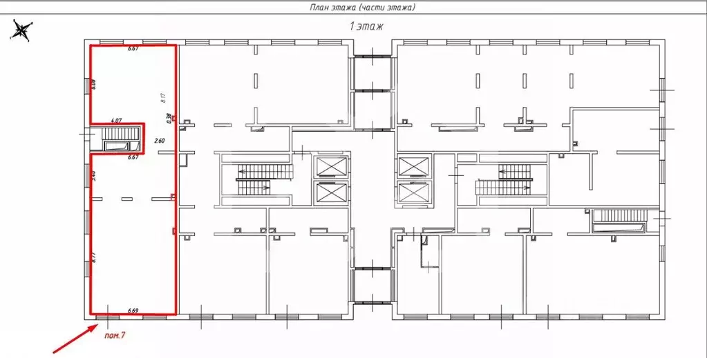
Помещение свободного назначения в Московская область, Одинцово ул. ...

1148004. Предлагаем помещение свободного назначения в ЖК Одинград , площадью 71.6 кв. м, расположенное на первом этаже 23-этажного жилого дома. Без комиссии для покупателя.Преимущества объекта:-первая линия ул. Маршала Бирюзова;-ЖК состоит из 8 корпусов переменной этажности (от 15 до 25 этажей), рассчитанных на 1 050 квартир;-8 минут на автомобиле от станции МЦД-1 Одинцово ;-удобная транспортная доступность: 680 м до Красногорского шоссе, 1.2 км до Подушкинского шоссе, 1.7 км до Можайского шоссе, 4 км до Минского шоссе;-плотный жилой массив;-развитая инфраструктура района;-высокий автомобильный и пешеходный трафик;-отлично просматривается, находится в легком доступе для потенциальных клиентов;-гибкая планировка, позволяющая адаптировать пространство под различные нужды;-без отделки;-вытяжка под общепит;-возможность размещения вывески;-зона разгрузки/погрузки;-наземная парковка;-рядом остановка общественного транспорта.Технические параметры объекта:-отдельный вход с улицы.-электрическая мощность: 15 кВт.-высота потолков: 6 м.Свяжитесь с нами для получения дополнительной информации

Читать полностью
    Позвонить Написать
    27 944 000 Р356 900 $ или 305 200
    Агент
    +7 (938) 656-74-88
    Начать чат с агентом
    Похожие предложения
    Помещение свободного назначения в Московская область, Люберцы ... - Фото 1
    Помещение свободного назначения в Московская область, Люберцы ... - Фото 2
    1109533. Предлагаем помещение свободного назначения с арендатором Автошкола, площадью 127.9 кв. м., расположенное на первом этаже жилого дома в ЖК Люберецкий . Угловой блок. Без комиссии для покупателя.Преимущества объекта:-комплекс состоит из 18 корпусов...
    • 1/22 эт.
    28 100 000 Р
    Агент
    +7 (938) Показать номер
    Посмотреть контакты
    Помещение свободного назначения в Московская область, Апрелевка ... - Фото 1
    Помещение свободного назначения в Московская область, Апрелевка ... - Фото 2
    Вниманию ценителей эстетического помещения на Покупку Роскошного Салона Красоты Ваше идеальное пространство для ведения собственного бизнеса Ищете уютное и функциональное помещение для салона красоты? Предлагаем вам на покупку отлично оборудованное...
    • 1/9 эт.
    27 950 000 Р
    Агент
    +7 (923) Показать номер
    Посмотреть контакты
    Продажа ПСН, Королев, Тарасовская улица - Фото 1
    Продажа ПСН, Королев, Тарасовская улица - Фото 2
    Продажа ПСН, Королев, Тарасовская улица - Фото 3
    Продажа ПСН, Королев, Тарасовская улица - Фото 4
    Продажа ПСН, Королев, Тарасовская улица - Фото 5
    Продажа ПСН, Королев, Тарасовская улица - Фото 6
    Продажа ПСН, Королев, Тарасовская улица - Фото 7
    Продажа ПСН, Королев, Тарасовская улица - Фото 8
    Продажа ПСН, Королев, Тарасовская улица - Фото 9
    Продажа ПСН, Королев, Тарасовская улица - Фото 10
    Продажа ПСН, Королев, Тарасовская улица - Фото 11
    Продажа ПСН, Королев, Тарасовская улица - Фото 12
    общая площадь 331м², полезная площадь 331м²

    Продается помещение свободного назначения на 1 этаже, два входа, со стороны улицы и со стороны подземного паркинга, возможность организации дополнительного входа по всему фасаду помещения. Планировка свободная, общая площадь 331 кв.м., потолки 3,5мВсе...
    • 331 м²
    • 1-й эт.
    28 000 000 Р
    Агент
    +7 (926) Показать номер
    Посмотреть контакты
    Прямая продажа от застройщика - Фото 1
    Прямая продажа от застройщика - Фото 2
    Прямая продажа от застройщика - Фото 3
    Прямая продажа от застройщика - Фото 4
    Прямая продажа от застройщика - Фото 5
    Прямая продажа от застройщика - Фото 6
    Прямая продажа от застройщика - Фото 7
    Прямая продажа от застройщика - Фото 8
    Прямая продажа от застройщика - Фото 9
    Прямая продажа от застройщика - Фото 10
    Прямая продажа от застройщика - Фото 11
    Прямая продажа от застройщика - Фото 12
    Прямая продажа от застройщика - Фото 13
    Прямая продажа от застройщика - Фото 14
    Прямая продажа от застройщика - Фото 15
    Прямая продажа от застройщика - Фото 16
    Прямая продажа от застройщика - Фото 17
    Прямая продажа от застройщика - Фото 18
    Прямая продажа от застройщика - Фото 19
    Прямая продажа от застройщика - Фото 20
    полезная площадь 97.5м²

    Предлагается в продажу торговое помещение, расположенное в ЖК «Южная Битца»
    • 97.5 м²
    • 1/17 эт.
    28 160 000 Р
    Агент
    +7 (495) Показать номер
    Посмотреть контакты
    Прямая продажа от застройщика - Фото 1
    Прямая продажа от застройщика - Фото 2
    Прямая продажа от застройщика - Фото 3
    Прямая продажа от застройщика - Фото 4
    Прямая продажа от застройщика - Фото 5
    Прямая продажа от застройщика - Фото 6
    Прямая продажа от застройщика - Фото 7
    Прямая продажа от застройщика - Фото 8
    Прямая продажа от застройщика - Фото 9
    Прямая продажа от застройщика - Фото 10
    Прямая продажа от застройщика - Фото 11
    Прямая продажа от застройщика - Фото 12
    Прямая продажа от застройщика - Фото 13
    Прямая продажа от застройщика - Фото 14
    Прямая продажа от застройщика - Фото 15
    Прямая продажа от застройщика - Фото 16
    Прямая продажа от застройщика - Фото 17
    Прямая продажа от застройщика - Фото 18
    Прямая продажа от застройщика - Фото 19
    Прямая продажа от застройщика - Фото 20
    полезная площадь 94м²

    Предлагается в продажу помещение свободного назначения, расположенное в ЖК 1-й Донской площадью 94 кв.м. Располагается на 1 этаже 12-этажного корпуса. Помещение идеально подойдет для магазина, кафе, офиса или другого бизнеса благодаря функциональной планировке...
    • 94 м²
    • 1/12 эт.
    27 951 000 Р
    Агент
    +7 (495) Показать номер
    Посмотреть контакты

    Не нашли подходящего объявления?

    Оставьте заявку, и наши риэлторы подберут псн в районе Одинцово

    (0)