Россия, Подмосковье, Люберецкий район, Люберцы, Люберецкий жилой комплекс
28 100 000 Р 361 000 $ или 309 200

Информация об помещении

1
Этаж

Состояние и оснащение

Количество этажей
22
Развернуть
Агент
+7 (938) 656-74-88
Начать чат с агентом

Помещение свободного назначения в Московская область, Люберцы ...

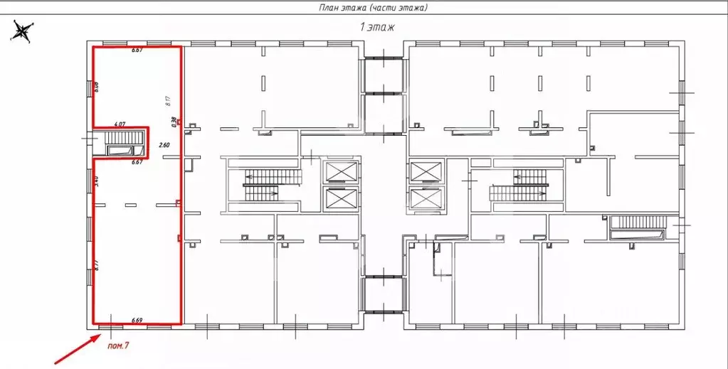
1109533. Предлагаем помещение свободного назначения с арендатором Автошкола, площадью 127.9 кв. м., расположенное на первом этаже жилого дома в ЖК Люберецкий . Угловой блок. Без комиссии для покупателя.Преимущества объекта:-комплекс состоит из 18 корпусов переменной этажности (от 9 до 25 этажей), рассчитан на более 5 000 квартир;-15 минут пешком от станции метро Некрасовка;-удобный выезд на Комсомольский проспект, Косинское шоссе, МСД;-густонаселённый жилой массив;-сложившееся торговое окружение;-стабильный автомобильный и пешеходный трафик;-объект отлично просматривается, находится в легком доступе для клиентов;-надежный сетевой арендатор;-открытая планировка;-витринное остекление;-место для вывески;-зона разгрузки/погрузки;-наземная парковка;-рядом остановка общественного транспорта.Технические параметры объекта:-отдельный вход с улицы;-электрическая мощность: 26 кВт.Информация об арендаторе: -арендатор: Автошкола;-прибыль:/мес.;-окупаемость: 12,2 лет;-доходность: 8,2 .Свяжитесь с нами для получения дополнительной информации

Читать полностью
    Позвонить Написать
    28 100 000 Р361 000 $ или 309 200
    Агент
    +7 (938) 656-74-88
    Начать чат с агентом
    Похожие предложения в Люберцах
    Помещение свободного назначения в Московская область, Люберцы ... - Фото 1
    Помещение свободного назначения в Московская область, Люберцы ... - Фото 2
    1109533. Предлагаем помещение свободного назначения с арендатором Автошкола, площадью 127.9 кв. м., расположенное на первом этаже жилого дома в ЖК Люберецкий . Угловой блок. Без комиссии для покупателя.Преимущества объекта:-комплекс состоит из 18 корпусов...
    • 1/22 эт.
    28 100 000 Р
    Агент
    +7 (938) Показать номер
    Посмотреть контакты
    Помещение свободного назначения
    • 1/1 эт.
    27 000 000 Р
    Агент
    +7 (986) Показать номер
    Посмотреть контакты
    Пощение свободного назначения
    • 1/1 эт.
    28 500 000 Р
    Агент
    +7 (986) Показать номер
    Посмотреть контакты
    Помещение свободного назначения в Московская область, Люберцы Зенино ... - Фото 1
    Помещение свободного назначения в Московская область, Люберцы Зенино ... - Фото 2
    id:209. Лучшее предложение в районе Продается коммерческое помещение площадью 117.5 м расположенное на въезде в густонаселенный жилой комплекс с панорамным остеклением и отдельным входом Характеристики объекта: Площадь: 117.5 м Расположение: Первый этаж,...
    • 1/17 эт.
    28 000 000 Р
    Агент
    +7 (915) Показать номер
    Посмотреть контакты
    Помещение свободного назначения в Московская область, Люберцы ... - Фото 1
    Помещение свободного назначения в Московская область, Люберцы ... - Фото 2
    1109533. Предлагаем помещение свободного назначения с арендатором Автошкола, площадью 127.9 кв. м., расположенное на первом этаже жилого дома в ЖК Люберецкий . Угловой блок. Без комиссии для покупателя.Преимущества объекта:-комплекс состоит из 18 корпусов...
    • 1/22 эт.
    28 100 000 Р
    Агент
    +7 (938) Показать номер
    Посмотреть контакты

    Не нашли подходящего объявления?

    Оставьте заявку, и наши риэлторы подберут псн в районе Люберец

    (0)