150 000 000 Р 1 948 800 $ или 1 666 400

Информация об помещении

1
Этаж

Состояние и оснащение

Количество этажей
3
Развернуть
Агент
+7 (938) 656-74-88
Начать чат с агентом

Помещение свободного назначения в Московская область, Наро-Фоминский ...

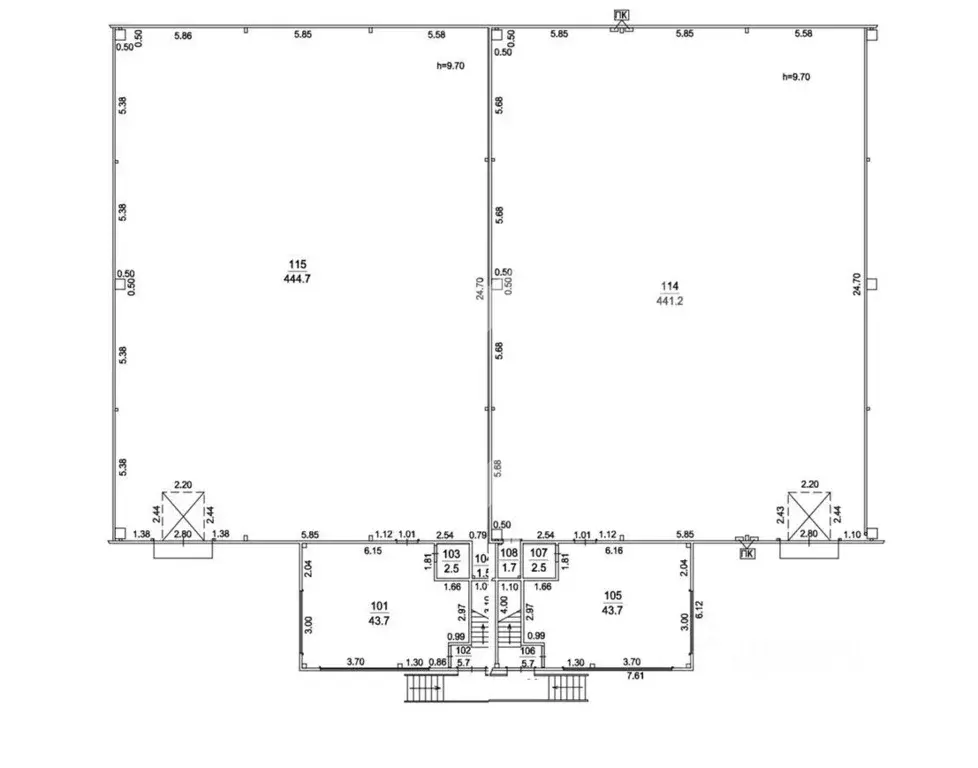
711768. Предлагаем отдельно стоящее здание с арендаторами Дикси | Фикс прайс | Салон красоты | Салоны связи | Цветочный магазин | Дом быта | Одежда | Шаурма | Торговые компании, площадью 1 150 кв. м., расположенное в рп. Селятино. 1, 2, 3 этаж. Без комиссии для покупателя.Преимущества объекта:-первая линия рп. Селятино;-пересечение ул. Промышленная и Клубная;-5 минут пешком от ж/д станции Селятино ;-район плотной жилой застройки;-объект находится в легком доступе для клиентов;-надежные сетевые арендаторы;-заполненность арендаторами - 98 ;-зальная планировка;-витринное остекление;-место для вывески;-зона разгрузки/погрузки;-парковка перед зданием;-рядом остановка общественного транспорта.Технические параметры объекта:-4 отдельные входные группы;-электрическая мощность: 110 кВт;-высота потолков: 3 м.Информация об арендаторах:-арендаторы: Дикси | Фикс прайс | Салон красоты | Салоны связи | Цветочный магазин | Дом быта | Одежда | Шаурма | Торговые компании;-прибыль:/мес.Свяжитесь с нами для получения дополнительной информации

Читать полностью
    Позвонить Написать
    150 000 000 Р1 948 800 $ или 1 666 400
    Агент
    +7 (938) 656-74-88
    Начать чат с агентом
    Похожие предложения
    Помещение свободного назначения в Московская область, Наро-Фоминский ... - Фото 1
    Помещение свободного назначения в Московская область, Наро-Фоминский ... - Фото 2
    711768. Предлагаем отдельно стоящее здание с арендаторами Дикси | Фикс прайс | Салон красоты | Салоны связи | Цветочный магазин | Дом быта | Одежда | Шаурма | Торговые компании, площадью 1 150 кв. м., расположенное в рп. Селятино. 1, 2, 3 этаж....
    • 1/3 эт.
    150 000 000 Р
    Агент
    +7 (938) Показать номер
    Посмотреть контакты
    Помещение свободного назначения в Московская область, Наро-Фоминский ... - Фото 1
    Помещение свободного назначения в Московская область, Наро-Фоминский ... - Фото 2
    711768. Предлагаем отдельно стоящее здание с арендаторами Дикси | Фикс прайс | Салон красоты | Салоны связи | Цветочный магазин | Дом быта | Одежда | Шаурма | Торговые компании, площадью 1 150 кв. м., расположенное в рп. Селятино. 1, 2, 3 этаж....
    • 1/3 эт.
    150 000 000 Р
    Агент
    +7 (938) Показать номер
    Посмотреть контакты
    Помещение свободного назначения в Московская область, Солнечногорск ... - Фото 1
    Помещение свободного назначения в Московская область, Солнечногорск ... - Фото 2
    Продажа производственно-складского помещения 986 кв.м в ЕсиповоНагрузка на пол: 4 т/кв.мРабочая высота 8мСрок готовности объекта: 4 квартал 2025 гВАЖНОПрямая продажа от собственникаОСНОВНЫЕ ХАРАКТЕРИСТИКИ- Площадь 986 м- Температура: Сухой- Тип пола:...
    • 1/3 эт.
    142 970 000 Р
    Агент
    +7 (923) Показать номер
    Посмотреть контакты
    Помещение свободного назначения в Московская область, Щелково Заречная ... - Фото 1
    Помещение свободного назначения в Московская область, Щелково Заречная ... - Фото 2
    1134083. Предлагается складское здание общей площадью 1 356,1 кв. м. в Щелково. 1 этаж ОСЗ.Преимущества:Центр крупной промышленной зоны. Развитая транспортная доступность: 3 км до Фряновского шоссе, выезд на Щелковское шоссе. Развитая инфраструктура в...
    • 1/1 эт.
    155 500 000 Р
    Агент
    +7 (938) Показать номер
    Посмотреть контакты
    Помещение свободного назначения в Московская область, Солнечногорск ... - Фото 1
    Помещение свободного назначения в Московская область, Солнечногорск ... - Фото 2
    1133465. Складское помещение общей площадью 1100 кв. м. в индустриальном парке Есипово-2. Корпус В.Преимущества:Комплекс складских помещений категории Лайт Индастриал.32 км от МКАД по Ленинградскому шоссе, вблизи трассы А-107 и ЦКАД.Развитая транспортная...
    • 1/2 эт.
    146 300 000 Р
    Агент
    +7 (938) Показать номер
    Посмотреть контакты

    Не нашли подходящего объявления?

    Оставьте заявку, и наши риэлторы подберут псн в районе Наро-Фоминского района

    (0)