12 999 000 Р 172 800 $ или 146 500

Информация об помещении

1
Этаж

Состояние и оснащение

Количество этажей
1
Развернуть
Агент
+7 (919) 104-54-35
Начать чат с агентом

Помещение свободного назначения в Московская область, Можайский ...

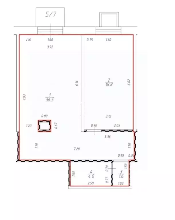
Арт.Земля промышленного назначения площадью 6440 кв.м в районе деревни Клементьево Можайского района.Пригоден для хранения горюче-смазочных материалов, подойдёт под АЗС, склад и пр.Категория земель: земли населенных пунктов.Разрешенное использование: под размещение сооружения Нефтесклад -АЗС. При необходимости вид разрешенного использования может быть изменен.На территории участка имеется:езервуаров для хранения бензина (общий объем 500 куб.м);пожарные емкости (объем 100 куб.м);одноэтажное кирпичное здание операторской с холодной пристройкой и подвалом (общая площадь 259 кв.м);проходная (площадь 9,5 кв.м);очистные сооружения.Коммуникации:электричество 40 кВт;газовая магистраль проходит в 30 метрах от участка;центральный водопровод;канализация.Полный пакет документов.Цена

Читать полностью
    Позвонить Написать
    12 999 000 Р172 800 $ или 146 500
    Агент
    +7 (919) 104-54-35
    Начать чат с агентом
    Похожие предложения
    Помещение свободного назначения в Московская область, Можайск ул. ... - Фото 1
    Помещение свободного назначения в Московская область, Можайск ул. ... - Фото 2
    Номер в базе:. Идеальное предложение для инвестора. Реальному покупателю хороший торг.Представляем вашему вниманию уникальное коммерческое помещение площадью 122.6 м, расположенное на первом этаже нового современного жилого комплекса в престижном районе...
    • 1/11 эт.
    13 800 000 Р
    Агент
    +7 (980) Показать номер
    Посмотреть контакты
    Помещение свободного назначения в Московская область, Мытищи Строитель ... - Фото 1
    Помещение свободного назначения в Московская область, Мытищи Строитель ... - Фото 2
    Арт.Представляем вашему вниманию идеальное коммерческое помещение с уже выполненнымемонтом готовое решение для вашего бизнеса Забудьте о хлопотах и дополнительных расходах на отделку. Это пространство создано для того, чтобы ваш бизнес начал приносить...
    • 1/17 эт.
    14 000 000 Р
    Агент
    +7 (916) Показать номер
    Посмотреть контакты
    Помещение свободного назначения в Московская область, Истра ... - Фото 1
    Помещение свободного назначения в Московская область, Истра ... - Фото 2
    Код объекта: 1982199.Идеальное решение для вашего бизнеса — уютное и стильное помещение площадью 67.3 м с готовым качественным ремонтом в премиальном коттеджном поселке Парк Авеню. Оно подходит для широкого спектра услуг: от престижного офиса и кабинета...
    • 1/4 эт.
    12 500 000 Р
    Агент
    +7 (985) Показать номер
    Посмотреть контакты
    Помещение свободного назначения в Московская область, Мытищи Юбилейная ... - Фото 1
    Помещение свободного назначения в Московская область, Мытищи Юбилейная ... - Фото 2
    Готовый бизнес для Вас Помещение свободного назначения, в настоящее время оборудованное под салон красоты. Большой светлый зал, отдельное помещение для спа-процедур. Первый этаж жилого дома в самом обжитом районе Мытищ. Своя парковка у входа. Звоните,...
    • 1/12 эт.
    13 200 000 Р
    Агент
    +7 (916) Показать номер
    Посмотреть контакты
    Помещение свободного назначения в Московская область, Домодедово ... - Фото 1
    Помещение свободного назначения в Московская область, Домодедово ... - Фото 2
    Продается коммерческое помещение в Жилом комплексе Домодедово Парк улица Современников дом 10. Жилой комплекс расположен всего в 11 км от столицы. Всего будет построено более 80 жилых домов для проживания более 20 тыс. семей. Очень удобно добираться...
    • 1/17 эт.
    12 957 000 Р
    Агент
    +7 (986) Показать номер
    Посмотреть контакты

    Не нашли подходящего объявления?

    Оставьте заявку, и наши риэлторы подберут псн в районе Клементьево

    (0)