813 333 Р 9 680 $ или 8 360

Информация об помещении

цоколь
Этаж

Состояние и оснащение

Количество этажей
1
Развернуть
Агент
+7 (938) 656-74-88
Начать чат с агентом

Торговая площадь в Москва Лухмановская ул., 36 (800 м)

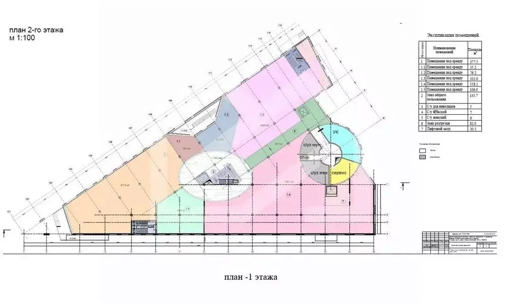
1004673. Предлагаем помещение свободного назначения, площадью 800 кв. м., расположенное в подвальном этаже в ТЦ Лухмановский 36 . Преимущества объекта:-первая линия;-21 минута пешком от станции метро Лухмановская; -развитая транспортная доступность: удобный выезд на МСД, 7 км от МКАД;-интенсивный пешеходный и автомобильный трафик, плотный жилой массив в окружении; -объект отлично просматривается, находится в легком доступе для потенциальных клиентов;-просторное и функциональное - это помещение подходит для различных видов бизнеса;-открытая планировка;-все центральные коммуникации;-вентиляция, система пожаротушения;-возможность размещения вывески на фасаде;-отдельный подъезд и проход для разгрузки с торца 1 этажа (высота 2.32 м, ширина 3 м);-вытяжка для общепита;-пассажирский лифт;-2 грузовых подъемника;-большой паркинг у здания на 150 машиномест;-в пешей доступности остановки общественного транспорта и пешеходный переход. Технические параметры объекта:-вход со двора, вход по лестнице;-электрическая мощность: 100 кВт;-высота потолков: 3 м.Так же доступно в аренду 2 000 кв. м. на 2 этаже.Свяжитесь с нами для получения дополнительной информации

Читать полностью
    Позвонить Написать
    813 333 Р9 680 $ или 8 360
    Агент
    +7 (938) 656-74-88
    Начать чат с агентом
    Похожие предложения
    Торговая площадь в Москва Лухмановская ул., 36 (800 м) - Фото 1
    Торговая площадь в Москва Лухмановская ул., 36 (800 м) - Фото 2
    1004673. Предлагаем помещение свободного назначения, площадью 800 кв. м., расположенное в подвальном этаже в ТЦ Лухмановский 36 . Преимущества объекта:-первая линия;-21 минута пешком от станции метро Лухмановская; -развитая транспортная доступность:...
    • -1/1 эт.
    813 333 Р
    Агент
    +7 (938) Показать номер
    Посмотреть контакты
    Торговая площадь в Москва Лухмановская ул., 36 (800 м) - Фото 1
    Торговая площадь в Москва Лухмановская ул., 36 (800 м) - Фото 2
    1004673. Предлагаем помещение свободного назначения, площадью 800 кв. м., расположенное в подвальном этаже в ТЦ Лухмановский 36 . Преимущества объекта:-первая линия;-21 минута пешком от станции метро Лухмановская; -развитая транспортная доступность:...
    • -1/1 эт.
    813 333 Р
    Агент
    +7 (938) Показать номер
    Посмотреть контакты
    Торговая площадь в Москва ул. Двинцев, 3С1 (162 м) - Фото 1
    Торговая площадь в Москва ул. Двинцев, 3С1 (162 м) - Фото 2
    Предложение в аренду 63537.Парковка: Подземная, наземная.STONE Савеловская — готовый бизнес-центр класса А. В состав бизнес-центра входят две офисные башни и камерный корпус. В линейке предложений — офисы общей площадью от 488 кв. м, а также крупные...
    • 3/24 эт.
    810 000 Р
    Агент
    +7 (989) Показать номер
    Посмотреть контакты
    Торговая площадь в Москва ул. Крузенштерна, 9 (188 м) - Фото 1
    Торговая площадь в Москва ул. Крузенштерна, 9 (188 м) - Фото 2
    1106222. Предлагаем помещение свободного назначения, площадью 188 кв. м., расположенное на первом этаже жилого дома в ЖК Символ .Преимущества объекта:-первая линия, на въезде в микрорайон;-комплекс состоит из корпусов переменной этажности (от 3 до 28...
    • 1/26 эт.
    800 000 Р
    Агент
    +7 (938) Показать номер
    Посмотреть контакты
    Торговая площадь в Москва ш. Энтузиастов, 55 (320 м) - Фото 1
    Торговая площадь в Москва ш. Энтузиастов, 55 (320 м) - Фото 2
    1063206. Предлагаем помещение свободного назначения, площадью 320 кв. м., расположенное на первом этаже жилого дома. Преимущества объекта:-первая линия шоссе Энтузиастов;-8 минут на автомобиле от станции метро Новогиреево; -плотный жилой массив в окружении;-интенсивный...
    • 1/22 эт.
    800 000 Р
    Агент
    +7 (938) Показать номер
    Посмотреть контакты

    Не нашли подходящего объявления?

    Оставьте заявку, и наши риэлторы подберут торговое помещение в районе Москвы

    (0)