Россия, Москва, ул. Крузенштерна, 9
800 000 Р 9 770 $ или 8 590

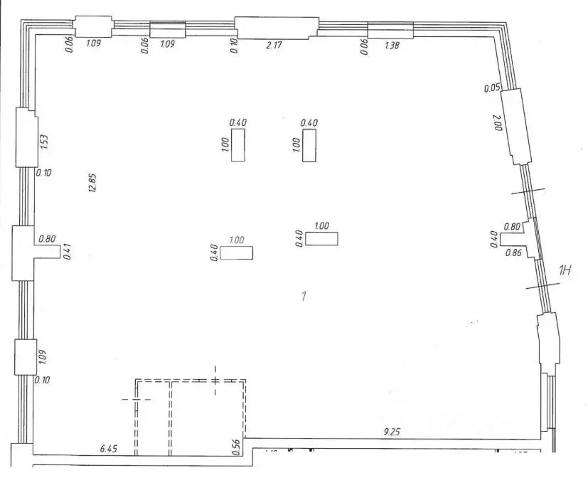
Информация об помещении

1
Этаж

Состояние и оснащение

Количество этажей
26
Развернуть
Агент
+7 (938) 656-74-88
Начать чат с агентом

Торговая площадь в Москва ул. Крузенштерна, 9 (188 м)

1106222. Предлагаем помещение свободного назначения, площадью 188 кв. м., расположенное на первом этаже жилого дома в ЖК Символ .Преимущества объекта:-первая линия, на въезде в микрорайон;-комплекс состоит из корпусов переменной этажности (от 3 до 28 этажей);-14 минут пешком от станции метро Авиамоторная; -плотный жилой массив;-сложившееся окружение: аптеки, магазины продуктов, пункты выдачи, мфц, управа района;-высокий пешеходный и автомобильный трафик;-объект отлично просматривается, находится в легком доступе для потенциальных клиентов;-просторное и функциональное - это помещение подходит для различных видов бизнеса: от магазина до офиса;-витринное остекление;-место для вывески; -наземная парковка;-рядом остановка общественного транспорта.Технические параметры объекта:-2 отдельные входные группы;-электрическая мощность: 34 кВт;-высота потолков: 4,55 м.Свяжитесь с нами для получения дополнительной информации

Читать полностью
    Позвонить Написать
    800 000 Р9 770 $ или 8 590
    Агент
    +7 (938) 656-74-88
    Начать чат с агентом
    Похожие предложения
    Торговая площадь в Москва ул. Крузенштерна, 9 (188 м) - Фото 1
    Торговая площадь в Москва ул. Крузенштерна, 9 (188 м) - Фото 2
    1106222. Предлагаем помещение свободного назначения, площадью 188 кв. м., расположенное на первом этаже жилого дома в ЖК Символ .Преимущества объекта:-первая линия, на въезде в микрорайон;-комплекс состоит из корпусов переменной этажности (от 3 до 28...
    • 1/26 эт.
    800 000 Р
    Агент
    +7 (938) Показать номер
    Посмотреть контакты
    Аренда ритейла 171 кв. м в ВПП «Новокузнецкая улица, 6 (класс B+).Этаж: 1.Отделка - с отделкойТип планировки - open-space.Вход - отдельный с улицыНазначение: Торговая площадьПолная ставка аренды - за кв. м/год. Налог: УСН, эксплуатация включенаМесячный...
    • 1/1 эт.
    799 938 Р
    Агент
    +7 (966) Показать номер
    Посмотреть контакты
    Торговая площадь (135 м) - Фото 1
    Торговая площадь (135 м) - Фото 2
    Сдается в аренду ПСН на Новом Арбате 135 м2.- 1 линия, высокий трафик, до метро 10 минут.- Мощность 15 кВт с возможностью увеличения.- Высота потолков 3 метра.- Отдельный вход.- Витринное остекление, возможность размещения вывески.- Хороший обзор помещения...
    • 1/24 эт.
    800 000 Р
    Агент
    +7 (909) Показать номер
    Посмотреть контакты
    1067118. Предлагаем помещение свободного назначения во встроенно-пристроенной части, площадью 514.8 кв. м, расположенное в подвале 12-этажного жилого дома. Преимущества объекта:-шаговая доступность от станций метро Площадь Ильича и Римская (5 минут...
    • -1/12 эт.
    800 000 Р
    Агент
    +7 (938) Показать номер
    Посмотреть контакты
    Торговая площадь в Москва ш. Энтузиастов, 55 (320 м) - Фото 1
    Торговая площадь в Москва ш. Энтузиастов, 55 (320 м) - Фото 2
    1063206. Предлагаем помещение свободного назначения, площадью 320 кв. м., расположенное на первом этаже жилого дома. Преимущества объекта:-первая линия шоссе Энтузиастов;-8 минут на автомобиле от станции метро Новогиреево; -плотный жилой массив в окружении;-интенсивный...
    • 1/22 эт.
    800 000 Р
    Агент
    +7 (938) Показать номер
    Посмотреть контакты

    Не нашли подходящего объявления?

    Оставьте заявку, и наши риэлторы подберут торговое помещение в районе Москвы

    (0)