Россия, Москва, Малая Почтовая ул., 12
794 960 Р 10 040 $ или 8 660

Информация об помещении

3
Этаж

Состояние и оснащение

Количество этажей
19
Развернуть
Агент
+7 (985) 515-74-74
Начать чат с агентом

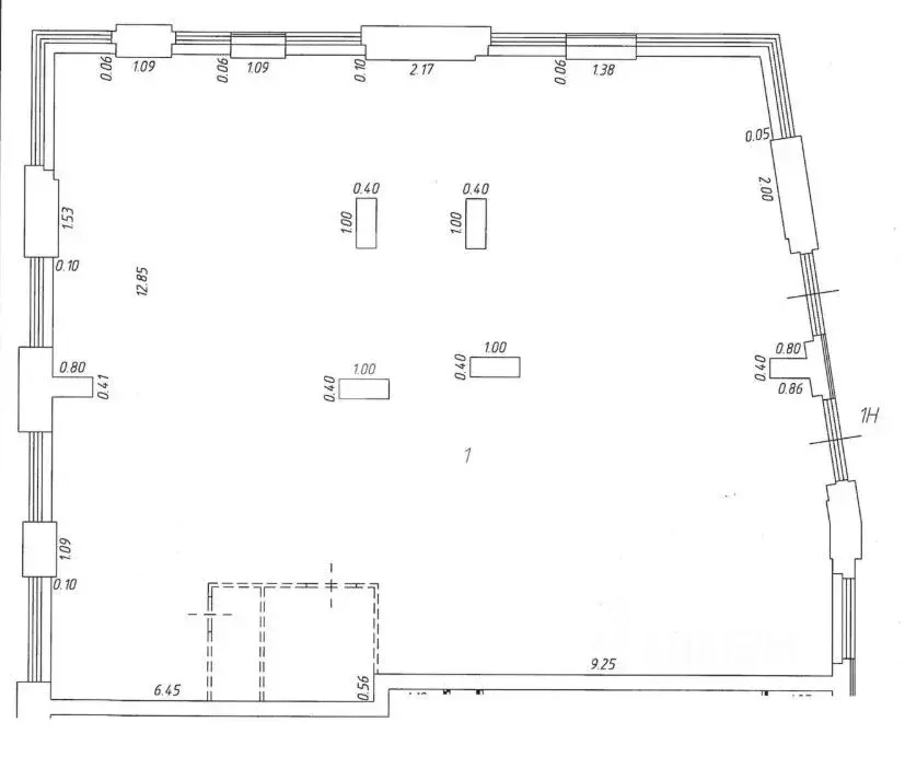
Торговая площадь в Москва Малая Почтовая ул., 12 (209 м)

Лот 159964.Предлагается в аренду помещение свободного назначения, расположенное по адресу: г. Москва, ЦАО, ЖК MYPRIORITY Басманный, ул. Малая Почтовая, д. 12.Станция метро Бауманская в 9 минутах пешком. Плотная жилая застройка, бизнес-центр МЗАТЭ-2 , Университет им.Баумана, Техникум космического машиностроения. В ЖК уже размещены супер-маркет, фитнес-клуб, кофейня, ПВЗ.Технические характеристики:3 этаж 19-этажного жилого дома, общая площадь 209.2 кв.м.Помещение без отделки, отдельная входная группа, все коммуникации.Выделенная мощность 35 квт. Витринное остекление.Коммерческие условия:Ставка аренды в месяц;Ставка аренды за 1 кв.м в месяц;Ставка аренды за 1 кв.м в год.Гарантийный платеж 150 , предусмотрены арендные каникулы.

Читать полностью
    Позвонить Написать
    794 960 Р10 040 $ или 8 660
    Агент
    +7 (985) 515-74-74
    Начать чат с агентом
    Похожие предложения
    Торговая площадь в Москва ул. Крузенштерна, 9 (188 м) - Фото 1
    Торговая площадь в Москва ул. Крузенштерна, 9 (188 м) - Фото 2
    1106222. Предлагаем помещение свободного назначения, площадью 188 кв. м., расположенное на первом этаже жилого дома в ЖК Символ .Преимущества объекта:-первая линия, на въезде в микрорайон;-комплекс состоит из корпусов переменной этажности (от 3 до 28...
    • 1/26 эт.
    800 000 Р
    Агент
    +7 (938) Показать номер
    Посмотреть контакты
    Торговая площадь в Москва ш. Энтузиастов, 55 (320 м) - Фото 1
    Торговая площадь в Москва ш. Энтузиастов, 55 (320 м) - Фото 2
    1063206. Предлагаем помещение свободного назначения, площадью 320 кв. м., расположенное на первом этаже жилого дома. Преимущества объекта:-первая линия шоссе Энтузиастов;-8 минут на автомобиле от станции метро Новогиреево; -плотный жилой массив в окружении;-интенсивный...
    • 1/22 эт.
    800 000 Р
    Агент
    +7 (938) Показать номер
    Посмотреть контакты
    Торговая площадь в Москва Профсоюзная ул., 22/10К1 (211 м) - Фото 1
    Торговая площадь в Москва Профсоюзная ул., 22/10К1 (211 м) - Фото 2
    1113418. Предлагаем помещение свободного назначения, площадью 211 кв. м., расположенное на первом этаже и в подвале жилого дома. Преимущества объекта:-первая линия домов;-3 минуты пешком от станции метро Профсоюзная; -плотный жилой массив в окружении;-высокий...
    • 1/8 эт.
    800 000 Р
    Агент
    +7 (938) Показать номер
    Посмотреть контакты
    Торговая площадь в Москва наб. Марка Шагала, 11к2 (135 м) - Фото 1
    Торговая площадь в Москва наб. Марка Шагала, 11к2 (135 м) - Фото 2
    958337. Предлагаем угловое помещение свободного назначения в ЖК Shagal , площадью 134.9 кв. м, расположенное на первом этаже 28-этажного жилого дома. Корпус: 11.Преимущества объекта:-первая линия наб. Марка Шагала;-ЖК состоит из 29 корпусов переменной...
    • 1/28 эт.
    800 000 Р
    Агент
    +7 (938) Показать номер
    Посмотреть контакты
    Торговая площадь в Москва Новорогожская ул., 11К2 (515 м) - Фото 1
    Торговая площадь в Москва Новорогожская ул., 11К2 (515 м) - Фото 2
    1067118. Предлагаем помещение свободного назначения во встроенно-пристроенной части, площадью 514.8 кв. м, расположенное в подвале 12-этажного жилого дома. Преимущества объекта:-шаговая доступность от станций метро Площадь Ильича и Римская (5 минут...
    • -1/12 эт.
    800 000 Р
    Агент
    +7 (938) Показать номер
    Посмотреть контакты

    Не нашли подходящего объявления?

    Оставьте заявку, и наши риэлторы подберут торговое помещение в районе Москвы

    (0)