Россия, Москва, ул. Крузенштерна, 9
800 000 Р 10 520 $ или 9 010

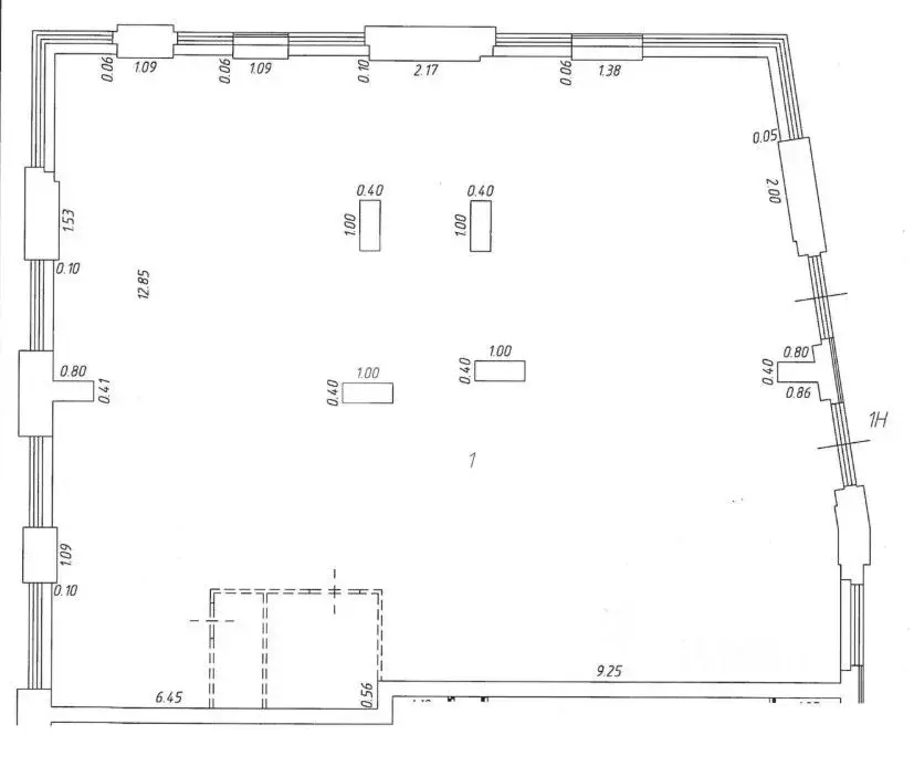
Информация об помещении

1
Этаж

Состояние и оснащение

Количество этажей
27
Развернуть
Агент
+7 (916) 354-05-40
Начать чат с агентом

Торговая площадь в Москва ул. Крузенштерна, 9 (188 м)

Преимущества расположения: Москва, ул. Крузенштерна, 9 Расположено в жилом комплексе премиум-класса Символ .Район активно заселяется множеством жилых домов, является одним из лучших проектов столицы.Численность населения района превышает 10 тыс. Человек.Недвижимость находится прямо напротив Мфц и современного бизнес-центра, что обеспечивает высокую проходимость и широкий круг потенциальных клиентов.Рекламная конструкция отлично видима с трёх сторон дороги, обеспечивая высокий уровень визуальной доступности.Дополнительные плюсы:Отличная транспортная доступность, позволяющая быстро добраться практически из любого района города.Развитая внутренняя инфраструктура комплекса обеспечит комфорт и удобства арендаторам и посетителям.Привлекательная архитектура и благоустроенная территория создадут благоприятное впечатление о вашем бизнесе.Номер объекта: 1/540655/23198

Читать полностью
    Позвонить Написать
    800 000 Р10 520 $ или 9 010
    Агент
    +7 (916) 354-05-40
    Начать чат с агентом
    Похожие предложения
    Торговая площадь в Москва ул. Крузенштерна, 9 (188 м) - Фото 1
    Торговая площадь в Москва ул. Крузенштерна, 9 (188 м) - Фото 2
    1106222-f . Предлагаем помещение свободного назначения формата Street Retail, площадью 188 кв. м., расположенное на первом этаже жилого дома в ЖК Символ . Преимущества объекта:-первая линия, на въезде в микрорайон;-комплекс состоит из корпусов переменной...
    • 1/26 эт.
    800 000 Р
    Агент
    +7 (938) Показать номер
    Посмотреть контакты
    Торговая площадь в Москва ул. Крузенштерна, 9 (188 м) - Фото 1
    Торговая площадь в Москва ул. Крузенштерна, 9 (188 м) - Фото 2
    УГЛОВОЕ ПOМEЩЕHИE HA ПЕРBOЙ ЛИHИИ B HOBОМ ЖК БИЗHEC-КЛАСCА НА 20 000 ЖИТЕЛЕЙ B ЦEHТPE MОСKBЫ 2 OTДEЛЬHЫХ BXOДА C ФACAДA, ВOЗMОЖHО ДEЛEНИE НА ДВЕ ЧАСТИ - ПО 95 KB.М. ДОМA СДAНЫ, ЗАСЕЛЕНЫ, KЛЮЧИ HA PУKAХ ЭЛЕКТРИЧЕСКАЯ МОЩНОСТЬ - 34 КВТ Первая линия, входы...
    • 1/22 эт.
    799 000 Р
    Агент
    +7 (916) Показать номер
    Посмотреть контакты
    Торговая площадь в Москва Брянская ул., 12 (84 м) - Фото 1
    Торговая площадь в Москва Брянская ул., 12 (84 м) - Фото 2
    Предлагаются помещения на улице Брянская, ЗАО, г. Москва. Шаговая доступность от ст. метро Киевская — 5 минут пешком. Отличная пешеходная и транспортная доступность. Высокий рекламный потенциал и возможность размещения вывесок на фасаде.Отдельная входная...
    • 1/8 эт.
    800 000 Р
    Агент
    +7 (910) Показать номер
    Посмотреть контакты
    Торговая площадь в Москва Отрадная ул., 4А (274 м) - Фото 1
    Торговая площадь в Москва Отрадная ул., 4А (274 м) - Фото 2
    Арт.Сдается торговая площадь, 274 м, в прикассовой зoне супермаркета легендарного дома `МАЛЕВИЧ`Москва, СВАО, р-н Отрадное, Отрадная ул., 4АПлощадь: 274 мЭтаж: 1 из 28Помещение: СвободноМетро: Отрадное (10 мин.), Владыкино (23 мин.), Ботанический сад...
    • 1/28 эт.
    799 167 Р
    Агент
    +7 (985) Показать номер
    Посмотреть контакты
    Торговая площадь в Москва Наставнический пер., 3 (177 м) - Фото 1
    Торговая площадь в Москва Наставнический пер., 3 (177 м) - Фото 2
    904565-f . Помещение свободного назначения формата Street Retail в ЖК премиум класса Royal House on Yauza . Первая линия. Комплекс расположен на набережной реки Яуза. 10 минут пешком от станции метро Чкаловская и Курская . 2 км до шоссе Энтузиастов,...
    • 1/9 эт.
    800 000 Р
    Агент
    +7 (938) Показать номер
    Посмотреть контакты

    Не нашли подходящего объявления?

    Оставьте заявку, и наши риэлторы подберут торговое помещение в районе Москвы

    (0)