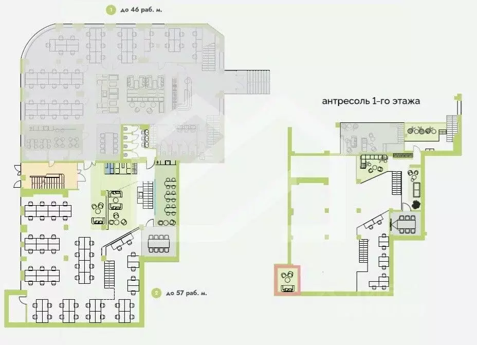
1115677. Предлагаем в аренду офисное помещение площадью 1773,69 кв. м (абочих мест), расположенное в бизнес-центре Алгоритм Преимущества объекта: - Бизнес-центр класса А- Шаговая доступность от станции метро Новаторская (10 минут пешком)- Этаж: 11- Помещение предлагается с отделкой- Планировка смешанная- Помещение свободно с 1 апреля 2026 года- Количество парковочных мест: 20Эксплуатационные платежи включены в ставку, коммунальные платежи оплачиваются дополнительно. Оперативно организуем для Вас показ и ответим на все вопросы. Свяжитесь с нами для получения дополнительной информации
Оставьте заявку, и наши риэлторы подберут псн в районе Москвы