Россия, Москва, Цветной бул., 30С1

Реализация объекта недвижимости приостановлена

Информация об помещении

1
Этаж

Состояние и оснащение

Количество этажей
7
Развернуть

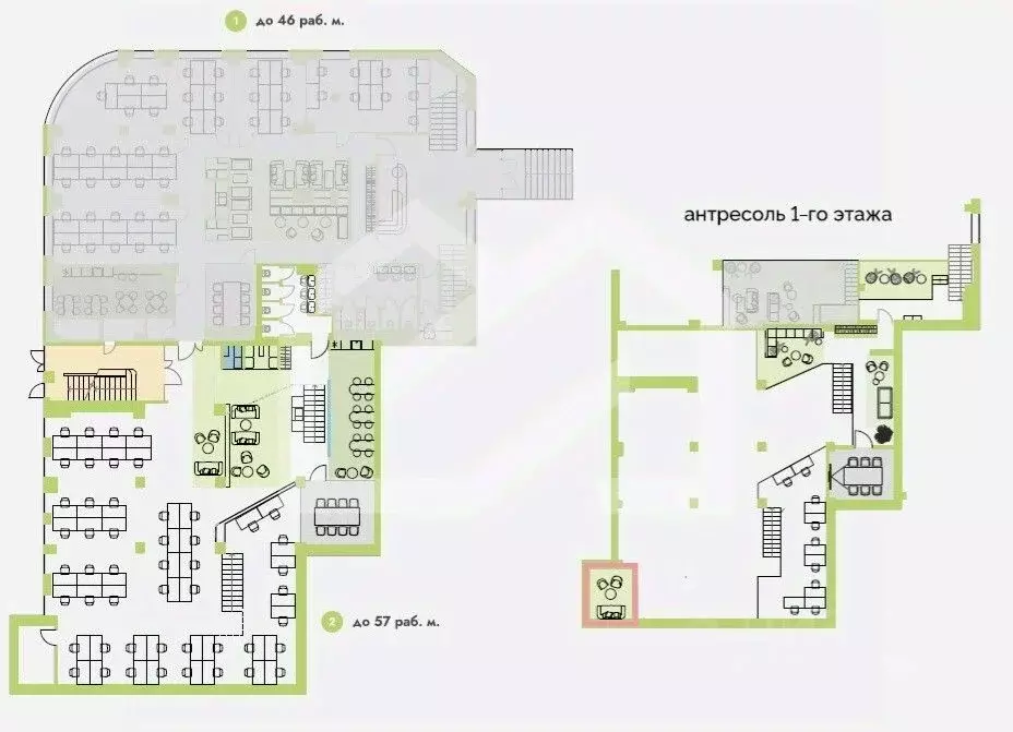
Помещение свободного назначения в Москва Цветной бул., 30С1 (721 м)

950255. Предлагаем в аренду сервисный офис площадью 721 кв. м наабочих места, расположенный в бизнес-центре Цветной 30 Преимущества объекта:- Бизнес-центр класса В- Шаговая доступность от станции метро Цветной бульвар (3 минуты пешком)- Этаж: 1, с антресолью- Помещение предлагается с дизайнерской отделкой- Планировка смешанная- Включены в аренду: мебель и оборудование, кофе и угощения, МФУ и расходные материалы, ИТ-инфраструктура, охрана и видеонаблюдение, ежедневный клининг, мелкий ремонт.Эксплуатационные и коммунальные платежи также включены в ставку.Оперативно организуем для Вас показ и ответим на все вопросы.Свяжитесь с нами для получения дополнительной информации

Читать полностью

    Реализация объекта недвижимости приостановлена

    Не нашли подходящего объявления?

    Оставьте заявку, и наши риэлторы подберут псн в районе Москвы

    (0)