Россия, Москва, 1-й Магистральный туп.,
2 018 526 Р 25 780 $ или 22 040

Информация об помещении

3
Этаж

Состояние и оснащение

Количество этажей
8
Развернуть
Агент
+7 (986) 274-27-15
Начать чат с агентом

Помещение свободного назначения в Москва 1-й Магистральный туп., 5А ...

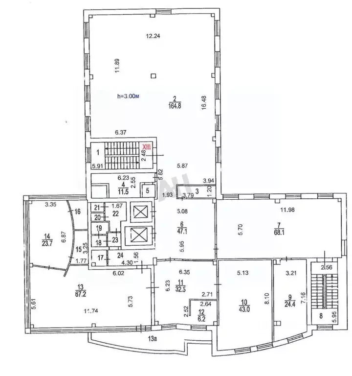
Лот 735816 Предложение от Собственника Предлагается помещение под офис площадью 463.00 м2. Помещение расположено у м Шелепиха (МЦК). 3 этаж. Помещение меблировано. Система кондиционирования. Пропускная система. Есть круглосуточный доступ. Планировка - смешанная. Есть лифт. Обеспечительный платеж 1 месяц.Чтобы получить ПОДРОБНУЮ ПРЕЗЕНТАЦИЮ С ПЛАНИРОВКОЙ И ФОТОГРАФИЯМИ, звоните или отправьте свой email и номер телефона в сообщении на портале. Высылаем в течение 15 минут по запросу Конт. лицо: Валерия Павловна, доб. 213, ЛОТ 735816

Читать полностью
    Позвонить Написать
    2 018 526 Р25 780 $ или 22 040
    Агент
    +7 (986) 274-27-15
    Начать чат с агентом
    Похожие предложения
    Помещение свободного назначения в Москва Летниковская ул., 10С4 (666 ... - Фото 1
    Помещение свободного назначения в Москва Летниковская ул., 10С4 (666 ... - Фото 2
    Лот 996839 Предложение от Собственника Предлагается помещение под офис площадью 666.00 м2. Помещение расположено 7 мин от м Павелецкая. 2 этаж. Система кондиционирования. Пропускная система. Есть круглосуточный доступ. Планировка - смешанная. Есть лифт....
    • 2/9 эт.
    1 998 000 Р
    Агент
    +7 (986) Показать номер
    Посмотреть контакты
    Помещение свободного назначения в Москва ул. Ивана Франко, 8 (534 м) - Фото 1
    Помещение свободного назначения в Москва ул. Ивана Франко, 8 (534 м) - Фото 2
    Лот 952340 Предложение от Собственника Предлагается помещение под офис площадью 534.42 м2. Помещение расположено 3 мин от м Кунцевская. 2 этаж. Система кондиционирования. Пропускная система. Есть круглосуточный доступ. Планировка - смешанная. Есть лифт....
    • 2/20 эт.
    2 037 432 Р
    Агент
    +7 (986) Показать номер
    Посмотреть контакты
    Помещение свободного назначения в Москва Цветной бул., 22С1 (475 м) - Фото 1
    Помещение свободного назначения в Москва Цветной бул., 22С1 (475 м) - Фото 2
    Лот 985594 Предложение от Собственника Предлагается помещение под офис площадью 475.00 м2. Помещение расположено 5 мин от м Цветной бульвар. 4 этаж. Помещение меблировано. Система кондиционирования. Пропускная система. Есть круглосуточный доступ. Планировка...
    • 4/6 эт.
    1 979 167 Р
    Агент
    +7 (986) Показать номер
    Посмотреть контакты
    Помещение свободного назначения в Москва Яковоапостольский пер., 5-7С3 ... - Фото 1
    Помещение свободного назначения в Москва Яковоапостольский пер., 5-7С3 ... - Фото 2
    ЛотПредложение от Собственника Предлагается помещение под офис площадью 478.00 м2. Помещение расположено 5 мин от м Курская. 1-3 этаж. Система кондиционирования. Пропускная система. Есть круглосуточный доступ. Планировка - смешанная. 5 парковочных мест....
    • 1/3 эт.
    1 912 000 Р
    Агент
    +7 (986) Показать номер
    Посмотреть контакты
    Помещение свободного назначения в Москва Рябиновая ул., 41к1 (796 м) - Фото 1
    Помещение свободного назначения в Москва Рябиновая ул., 41к1 (796 м) - Фото 2
    Лот 974287 Предложение от Собственника Предлагается помещение под офис площадью 796.30 м2. Помещение расположено 10 мин от м Давыдково. 7-8 этаж. Система кондиционирования. Пропускная система. Есть круглосуточный доступ. Планировка - кабинетная. 150...
    • 7/8 эт.
    1 990 750 Р
    Агент
    +7 (986) Показать номер
    Посмотреть контакты

    Не нашли подходящего объявления?

    Оставьте заявку, и наши риэлторы подберут псн в районе Москвы

    (0)