1 990 750 Р 25 420 $ или 21 740

Информация об помещении

7
Этаж

Состояние и оснащение

Количество этажей
8
Развернуть
Агент
+7 (986) 274-27-15
Начать чат с агентом

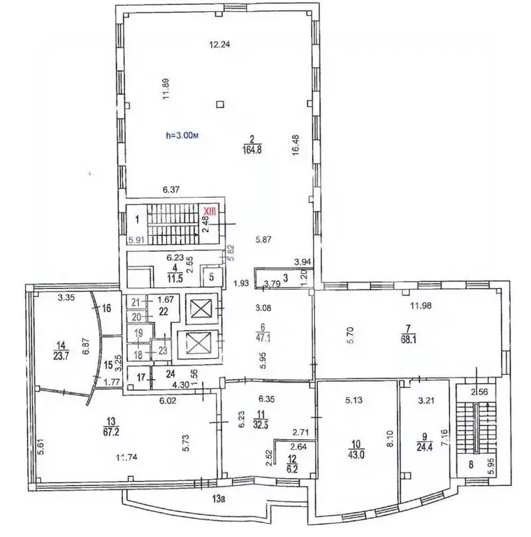
Помещение свободного назначения в Москва Рябиновая ул., 41к1 (796 м)

Лот 974287 Предложение от Собственника Предлагается помещение под офис площадью 796.30 м2. Помещение расположено 10 мин от м Давыдково. 7-8 этаж. Система кондиционирования. Пропускная система. Есть круглосуточный доступ. Планировка - кабинетная. 150 парковочных мест. Есть лифт. Есть парковка. В цену включено: НДС 22 . Обеспечительный платеж 1 месяц.Чтобы получить ПОДРОБНУЮ ПРЕЗЕНТАЦИЮ С ПЛАНИРОВКОЙ И ФОТОГРАФИЯМИ, звоните или отправьте свой email и номер телефона в сообщении на портале. Высылаем в течение 15 минут по запросу Конт. лицо: Светлана Анатольевна, доб. 236, ЛОТ 974287

Читать полностью
    Позвонить Написать
    1 990 750 Р25 420 $ или 21 740
    Агент
    +7 (986) 274-27-15
    Начать чат с агентом
    Похожие предложения
    Помещение свободного назначения в Москва Рябиновая ул., 41к1 (796 м) - Фото 1
    Помещение свободного назначения в Москва Рябиновая ул., 41к1 (796 м) - Фото 2
    1080793. Предлагаем в аренду офисное помещение площадью 796,3 кв. м, расположенное в деловом комплексе РТС Рябиновая Преимущества объекта: - Бизнес-центр класса В- Транпортная доступность от станции метро Аминьевская (9 минут на авто)- Этаж: 7-8- Помещение...
    • 7/8 эт.
    2 023 929 Р
    Агент
    +7 (938) Показать номер
    Посмотреть контакты
    Помещение свободного назначения в Москва Летниковская ул., 10С4 (666 ... - Фото 1
    Помещение свободного назначения в Москва Летниковская ул., 10С4 (666 ... - Фото 2
    Лот 996839 Предложение от Собственника Предлагается помещение под офис площадью 666.00 м2. Помещение расположено 7 мин от м Павелецкая. 2 этаж. Система кондиционирования. Пропускная система. Есть круглосуточный доступ. Планировка - смешанная. Есть лифт....
    • 2/9 эт.
    1 998 000 Р
    Агент
    +7 (986) Показать номер
    Посмотреть контакты
    Помещение свободного назначения в Москва ул. Ивана Франко, 8 (534 м) - Фото 1
    Помещение свободного назначения в Москва ул. Ивана Франко, 8 (534 м) - Фото 2
    Лот 952340 Предложение от Собственника Предлагается помещение под офис площадью 534.42 м2. Помещение расположено 3 мин от м Кунцевская. 2 этаж. Система кондиционирования. Пропускная система. Есть круглосуточный доступ. Планировка - смешанная. Есть лифт....
    • 2/20 эт.
    2 037 432 Р
    Агент
    +7 (986) Показать номер
    Посмотреть контакты
    Помещение свободного назначения в Москва Цветной бул., 22С1 (475 м) - Фото 1
    Помещение свободного назначения в Москва Цветной бул., 22С1 (475 м) - Фото 2
    Лот 985594 Предложение от Собственника Предлагается помещение под офис площадью 475.00 м2. Помещение расположено 5 мин от м Цветной бульвар. 4 этаж. Помещение меблировано. Система кондиционирования. Пропускная система. Есть круглосуточный доступ. Планировка...
    • 4/6 эт.
    1 979 167 Р
    Агент
    +7 (986) Показать номер
    Посмотреть контакты
    Помещение свободного назначения в Москва Яковоапостольский пер., 5-7С3 ... - Фото 1
    Помещение свободного назначения в Москва Яковоапостольский пер., 5-7С3 ... - Фото 2
    ЛотПредложение от Собственника Предлагается помещение под офис площадью 478.00 м2. Помещение расположено 5 мин от м Курская. 1-3 этаж. Система кондиционирования. Пропускная система. Есть круглосуточный доступ. Планировка - смешанная. 5 парковочных мест....
    • 1/3 эт.
    1 912 000 Р
    Агент
    +7 (986) Показать номер
    Посмотреть контакты

    Не нашли подходящего объявления?

    Оставьте заявку, и наши риэлторы подберут псн в районе Москвы

    (0)