Россия, Москва, Старая Басманная ул., 33
240 000 Р 2 960 $ или 2 570

Информация об помещении

1
Этаж

Состояние и оснащение

Количество этажей
5
Развернуть
Агент
+7 (985) 431-90-04
Начать чат с агентом

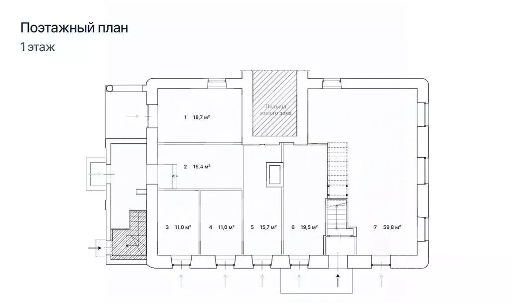
Помещение свободного назначения в Москва Старая Басманная ул., 33 (75 ...

Высокий первый этаж исторического жилого дома. Вход с первой линии, большая витрина на улицу.Долгое время работал салон красоты Персона, есть место для вывески на фасаде.Кондиционер в зале.Помещение прямоугольное с центральным залом, двумя отдельными комнатами , выгороженными не до верха, и санузлом.Во всех помещениях мокрые точки и возможность организовать новые..Возможна перепланировка.Во дворах рядом бесплатная стоянка автомобилей.

Читать полностью
    Позвонить Написать
    240 000 Р2 960 $ или 2 570
    Агент
    +7 (985) 431-90-04
    Начать чат с агентом
    Похожие предложения
    Помещение свободного назначения в Москва Бауманская ул., 33/2С3 (16 м) - Фото 1
    Помещение свободного назначения в Москва Бауманская ул., 33/2С3 (16 м) - Фото 2
    1112591. Предлагаем торговое помещение, площадью 15,7 кв. м., расположенное на первом этаже жилого дома. Преимущества объекта: -в 65 метрах станция метро Бауманская;-центр плотного жилого массива, премиальная локация;-сложившееся торговое окружение ЦАО;-сверхинтенсивный...
    • 1/4 эт.
    250 000 Р
    Агент
    +7 (938) Показать номер
    Посмотреть контакты
    Помещение свободного назначения в Москва Бауманская ул., 16С2 (100 м) - Фото 1
    Помещение свободного назначения в Москва Бауманская ул., 16С2 (100 м) - Фото 2
    Сдаем помещение в аренду на первом этаже. Идеально подходит под пвз. Подробности по телефону.
    • 1/3 эт.
    250 000 Р
    Агент
    +7 (915) Показать номер
    Посмотреть контакты
    Помещение свободного назначения в Москва Ладожская ул., 8 (120 м) - Фото 1
    Помещение свободного назначения в Москва Ладожская ул., 8 (120 м) - Фото 2
    Сдается в аренду помещение свободного назначения - 120 кв.м.Помещение на втором этаже и имеет свой отдельный вход.Высота потолков - 2,7м., Электрическая мощность 15 кВт.Помещение свободно, готово к оперативному заезду. Номер в базе: J63247
    • 2/12 эт.
    250 000 Р
    Агент
    +7 (985) Показать номер
    Посмотреть контакты
    Помещение свободного назначения в Москва ул. Фридриха Энгельса, 23С3 ... - Фото 1
    Помещение свободного назначения в Москва ул. Фридриха Энгельса, 23С3 ... - Фото 2
    1133445. Предлагаем помещение свободного назначения, площадью 33 кв. м, расположенное на первом этаже 2-этажного административного здания. Преимущества объекта:-первая линия ул. Фридриха Энгельса;-шаговая доступность от станции метро Бауманская (5 минут...
    • 1/2 эт.
    240 000 Р
    Агент
    +7 (938) Показать номер
    Посмотреть контакты
    Помещение свободного назначения в Москва ул. Фридриха Энгельса, 7-21 ... - Фото 1
    Помещение свободного назначения в Москва ул. Фридриха Энгельса, 7-21 ... - Фото 2
    ЛотПредложение от Собственника Предлагаем в аренду помещение свободного назначения/общепит 29 кв.м., поблизости от выхода из метро Бауманская. Выполнен косметический ремонт. Все современные инженерные сети и коммуникации. Технологическая вентиляция для...
    • 1/11 эт.
    250 000 Р
    Агент
    +7 (986) Показать номер
    Посмотреть контакты

    Не нашли подходящего объявления?

    Оставьте заявку, и наши риэлторы подберут псн в районе Москвы

    (0)