240 000 Р 3 050 $ или 2 610

Информация об помещении

1
Этаж

Состояние и оснащение

Количество этажей
2
Развернуть
Агент
+7 (938) 656-74-88
Начать чат с агентом

Помещение свободного назначения в Москва ул. Фридриха Энгельса, 23С3 ...

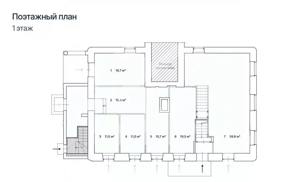
1133445. Предлагаем помещение свободного назначения, площадью 33 кв. м, расположенное на первом этаже 2-этажного административного здания. Преимущества объекта:-первая линия ул. Фридриха Энгельса;-шаговая доступность от станции метро Бауманская (5 минут пешком);-удобная транспортная доступность: 1 км до ТТК, 3.3 км до Измайловского шоссе, 4 км до шоссе Энтузиастов, 6.3 км до Щёлковского шоссе;-плотный жилой массив;-развитая инфраструктура района;-высокий автомобильный и пешеходный трафик;-отлично просматривается, находится в легком доступе для потенциальных клиентов;-гибкая планировка, позволяющая адаптировать пространство под различные нужды;-витринное остекление;-возможность размещения вывески;-наземная парковка.Технические параметры объекта:-отдельный вход с улицы.-электрическая мощность: 20 кВт.-высота потолков: 3 м.Свяжитесь с нами для получения дополнительной информации

Читать полностью
    Позвонить Написать
    240 000 Р3 050 $ или 2 610
    Агент
    +7 (938) 656-74-88
    Начать чат с агентом
    Похожие предложения
    Помещение свободного назначения в Москва ул. Фридриха Энгельса, 7-21 ... - Фото 1
    Помещение свободного назначения в Москва ул. Фридриха Энгельса, 7-21 ... - Фото 2
    ЛотПредложение от Собственника Предлагаем в аренду помещение свободного назначения/общепит 29 кв.м., поблизости от выхода из метро Бауманская. Выполнен косметический ремонт. Все современные инженерные сети и коммуникации. Технологическая вентиляция для...
    • 1/11 эт.
    250 000 Р
    Агент
    +7 (986) Показать номер
    Посмотреть контакты
    Помещение свободного назначения в Москва ул. Фридриха Энгельса, ... - Фото 1
    Помещение свободного назначения в Москва ул. Фридриха Энгельса, ... - Фото 2
    Сдаётся в аренду коммерческое помещение 132 кв. м. на цокольном этажеИдеально подходит для:-Медицинского центра (стоматология, косметология, клиника анализов)-Салона красоты-Юридической или финансовой компании (адвокатское бюро, бухгалтерские услуги)-Торгового...
    • -1/9 эт.
    250 000 Р
    Агент
    +7 (989) Показать номер
    Посмотреть контакты
    Помещение свободного назначения в Москва Бауманская ул., 33/2С3 (16 м) - Фото 1
    Помещение свободного назначения в Москва Бауманская ул., 33/2С3 (16 м) - Фото 2
    1112591. Предлагаем торговое помещение, площадью 15,7 кв. м., расположенное на первом этаже жилого дома. Преимущества объекта: -в 65 метрах станция метро Бауманская;-центр плотного жилого массива, премиальная локация;-сложившееся торговое окружение ЦАО;-сверхинтенсивный...
    • 1/4 эт.
    250 000 Р
    Агент
    +7 (938) Показать номер
    Посмотреть контакты
    Помещение свободного назначения в Москва Бауманская ул., 33/2С3 (16 м) - Фото 1
    Помещение свободного назначения в Москва Бауманская ул., 33/2С3 (16 м) - Фото 2
    1112591. Предлагаем торговое помещение, площадью 15,7 кв. м., расположенное на первом этаже жилого дома. Преимущества объекта: -в 65 метрах станция метро Бауманская;-центр плотного жилого массива, премиальная локация;-сложившееся торговое окружение ЦАО;-сверхинтенсивный...
    • 1/4 эт.
    250 000 Р
    Агент
    +7 (938) Показать номер
    Посмотреть контакты
    Помещение свободного назначения в Москва пер. Посланников, 6 (53 м) - Фото 1
    Помещение свободного назначения в Москва пер. Посланников, 6 (53 м) - Фото 2
    супер предложение для любого бизнеса
    • 1/18 эт.
    245 000 Р
    Агент
    +7 (915) Показать номер
    Посмотреть контакты

    Не нашли подходящего объявления?

    Оставьте заявку, и наши риэлторы подберут псн в районе Москвы

    (0)