384 000 Р 4 950 $ или 4 250

Информация об помещении

1
Этаж

Состояние и оснащение

Количество этажей
24
Развернуть
Агент
+7 (965) 591-94-81
Начать чат с агентом

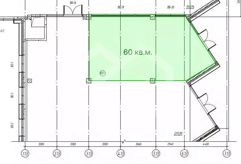
Помещение свободного назначения (128 м)

Характеристики:- 1 линия- Отдельная входная группа- Общая парковка- Есть возможность разместить вывеску- Погрузка/разгрузка: Главный вход, Отдельное окно- Доступ 24/7- ХВС/ГВС- Свой санузел- Центральное отопление- Приточно-вытяжная вентиляция- Есть кондиционер- Максимальная мощность 45 кВт- Черновой ремонт- Стрит ритейл- Без лифта- С окнами- Возможность перепланировки- Видеонаблюдение- Коммунальные услуги оплачиваются отдельноДополнительная информация:Помещение на 1 линии в густонаселённом районеАРР1По всем вопросам можете обращаться к представителю собственника: Денис Е (281)

Читать полностью
    Позвонить Написать
    384 000 Р4 950 $ или 4 250
    Агент
    +7 (965) 591-94-81
    Начать чат с агентом
    Похожие предложения
    Помещение свободного назначения в Москва 2-я Хуторская ул., 34 (84 м) - Фото 1
    Помещение свободного назначения в Москва 2-я Хуторская ул., 34 (84 м) - Фото 2
    В аренду сдается помещение свободного назначения нa 1-м этаже жилого комплекса премиум-класса Симфония 34. Общая площадь 84,3 кв.м. Высота потолков: 4,85 м Эл. мощность (кВт): 21 Подходит для: косметология, стоматология, медицинский центр, клиника,...
    • 1/36 эт.
    390 000 Р
    Агент
    +7 (986) Показать номер
    Посмотреть контакты
    Помещение свободного назначения в Москва ул. Братьев Бромлей, 5к1 (150 ... - Фото 1
    Помещение свободного назначения в Москва ул. Братьев Бромлей, 5к1 (150 ... - Фото 2
    Код объекта: 1952365.Сдается коммерческое помещение, общей площадью 150 м2. Стремительно развивающийся район, строящееся метро в районе, большой план застройки.Квартиры в проекте с готовой отделкой от застройщика, корпус заселен. Особенности расположения...
    • 1/9 эт.
    380 000 Р
    Агент
    +7 (986) Показать номер
    Посмотреть контакты
    Помещение свободного назначения в Москва Верейская ул., 41С96 (60 м) - Фото 1
    Помещение свободного назначения в Москва Верейская ул., 41С96 (60 м) - Фото 2
    1109958. Предлагаем помещение свободного назначения, площадью 60 кв. м., расположенное на первом этаже жилого дома в ЖК Верейская 41 . Стилобат. Так как корректный адрес отсутствует на Яндекс.Картах, введен ближайший.Преимущества объекта:-рядом с входом/въездом...
    • 1/2 эт.
    381 000 Р
    Агент
    +7 (938) Показать номер
    Посмотреть контакты
    Помещение свободного назначения в Москва Оникс Делюкс жилой комплекс ... - Фото 1
    Помещение свободного назначения в Москва Оникс Делюкс жилой комплекс ... - Фото 2
    Сдается в аренду помещение свободного назначения на 1-м этаже в заселенном доме премиум-класса на Херсонской улице. Преимущества локации:азвитый район Черемушки; офисные и жилые здания в пешей доступности; 13 мин. пешком до метро Зюзино; близость остановок...
    • 1/32 эт.
    382 470 Р
    Агент
    +7 (985) Показать номер
    Посмотреть контакты
    Помещение свободного назначения в Москва Люблинская ул., 72Ак1 (106 м) - Фото 1
    Помещение свободного назначения в Москва Люблинская ул., 72Ак1 (106 м) - Фото 2
    1106240. Предлагаем помещение свободного назначения, площадью 106 кв. м., расположенное на первом этаже жилого дома в ЖК Люблинский парк . Преимущества объекта:-первая линия основного въезда в ЖК;-ЖК состоит из 27 корпусов переменной этажности (от 16...
    • 1/25 эт.
    371 000 Р
    Агент
    +7 (938) Показать номер
    Посмотреть контакты

    Не нашли подходящего объявления?

    Оставьте заявку, и наши риэлторы подберут псн в районе Москвы

    (0)