381 000 Р 4 910 $ или 4 220

Информация об помещении

1
Этаж

Состояние и оснащение

Количество этажей
2
Развернуть
Агент
+7 (938) 656-74-88
Начать чат с агентом

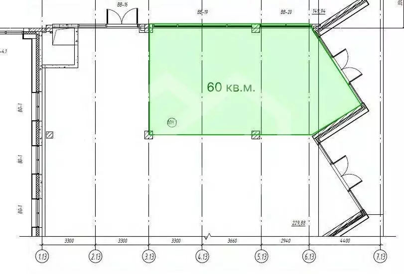
Помещение свободного назначения в Москва Верейская ул., 41С96 (60 м)

1109958. Предлагаем помещение свободного назначения, площадью 60 кв. м., расположенное на первом этаже жилого дома в ЖК Верейская 41 . Стилобат. Так как корректный адрес отсутствует на Яндекс.Картах, введен ближайший.Преимущества объекта:-рядом с входом/въездом в ЖК;-комплекс состоит из 11 корпусов переменной этажности (от 2 до 14 этажей);-24 минуты пешком от станции метро Давыдково; -сложившееся торговое окружение;-плотный жилой массив в окружении;-интенсивный пешеходный и автомобильный трафик;-объект отлично просматривается, находится в лёгком доступе для потенциальных клиентов;-просторное и функциональное - это помещение подходит для различных видов бизнеса: от магазина до офиса;-витринное остекление;-место для вывески; -наземная парковка;-рядом остановка общественного транспорта.Технические параметры объекта:-отдельный вход;-электрическая мощность: 15 кВт (возможно увеличение до 80 кВт);-высокие потолки без антресоли.Свяжитесь с нами для получения дополнительной информации

Читать полностью
    Позвонить Написать
    381 000 Р4 910 $ или 4 220
    Агент
    +7 (938) 656-74-88
    Начать чат с агентом
    Похожие предложения
    Помещение свободного назначения в Москва Верейская ул., 41С96 (60 м) - Фото 1
    Помещение свободного назначения в Москва Верейская ул., 41С96 (60 м) - Фото 2
    1109958. Предлагаем помещение свободного назначения, площадью 60 кв. м., расположенное на первом этаже жилого дома в ЖК Верейская 41 . Стилобат. Так как корректный адрес отсутствует на Яндекс.Картах, введен ближайший.Преимущества объекта:-рядом с входом/въездом...
    • 1/2 эт.
    381 000 Р
    Агент
    +7 (938) Показать номер
    Посмотреть контакты
    Помещение свободного назначения в Москва Верейская ул., 41С96 (60 м) - Фото 1
    Помещение свободного назначения в Москва Верейская ул., 41С96 (60 м) - Фото 2
    1109958-s . Предлагаем помещение свободного назначения формата Street Retail, площадью 60 кв. м., расположенное на первом этаже жилого дома в ЖК Верейская 41 . Стилобат. Так как корректный адрес отсутствует на Яндекс.Картах, введен ближайший.Преимущества...
    • 1/2 эт.
    381 000 Р
    Агент
    +7 (938) Показать номер
    Посмотреть контакты
    Помещение свободного назначения в Москва Верейская ул., 41С96 (60 м) - Фото 1
    Помещение свободного назначения в Москва Верейская ул., 41С96 (60 м) - Фото 2
    1109958-s . Предлагаем помещение свободного назначения формата Street Retail, площадью 60 кв. м., расположенное на первом этаже жилого дома в ЖК Верейская 41 . Стилобат. Так как корректный адрес отсутствует на Яндекс.Картах, введен ближайший.Преимущества...
    • 1/2 эт.
    381 000 Р
    Агент
    +7 (938) Показать номер
    Посмотреть контакты
    Помещение свободного назначения в Москва ул. Генерала Дорохова, 6 (255 ... - Фото 1
    Предлагается в аренду холодный склад площадью 254.8 кв. м с отдельным входом и воротами. Ближайшие станции метро - Давыдково, Аминьевская или Славянский бульвар. Расположение: ЗАО, г. Москва, ул. Генерала Дорохова, д. 6. Расстояние до МКАД - 4 км. Описание:...
    • 1/1 эт.
    382 200 Р
    Агент
    +7 (916) Показать номер
    Посмотреть контакты
    Помещение свободного назначения (200 м) - Фото 1
    Помещение свободного назначения (200 м) - Фото 2
    Прямая аренда ОТ СОБСТВЕННИКА Сдается помещение свободного назначения. Расположено на трафике в устоявшемся торговом окружении. До метро Выхино 7-10 минут пешком. Развитая инфраструктура, удобная транспортная доступность и широкий спектр возможностей...
    • 1/1 эт.
    380 000 Р
    Агент
    +7 (966) Показать номер
    Посмотреть контакты

    Не нашли подходящего объявления?

    Оставьте заявку, и наши риэлторы подберут псн в районе Москвы

    (0)