Россия, Москва, 1-я Тверская-Ямская улица, 21
6 763 578 Р 87 060 $ или 74 160

Информация о помещении и здании

9
Этаж
10
Этажность
Развернуть
Агент
+7 (926) 670-09-27
Начать чат с агентом

Офис (937 м)

Сдается в аренду офис 937 кв.м недалеко от метро. Состояние отделки — готово к въезду. Помещение доступно для аренды с 01.03.2026. Договор аренды заключаете с собственником помещения. Без надбавки к итоговой стоимости аренды. В арендную ставку включено: - НДС, - эксплуат.расходы. В арендную ставку не входит: коммунальные услуги, электроэнергия, уборка офиса, уборка общих мест. • планировка в офисе: кабинетная; • кол-во кабинетов: 10; • в офисе имеется: кухня; • кондиционер: в каждом офисе; • вентиляция: есть; • сан. узел в офисе: есть; • условия договора: 11 мес. предоплата за первый и последний месяц; • налогообложение: НДС; • вход в здание: для арендаторов по документу, для клиентов по документу; • интернет провайдеры: Комстар, Эквант, Совинтел, Юниттелеком, Мастертел; • парковка: на прилегающих улицах; • здание работает: круглосуточно; Показы в рабочее время. Получите подробную информацию об офисе. Отправим ее на почту или по Whatsapp. Звоните. Мы оперативно организуем просмотр помещения в удобную для вас дату и ответим на все интересующие вопросы. Для вас наши услуги бесплатны, их оплачивает БЦ. Описание бизнес-центра: Станция метрополитена «Белорусская - всего в трех минутах пешком, до «Маяковской - 5 минут. Общие характеристики бизнес-центра «FOUR WINDS PLAZA позволяют отнести его к премиальному классу – «А . Можно выбрать вид планировки, включая свободную.

Читать полностью
    Позвонить Написать
    6 763 578 Р87 060 $ или 74 160
    Агент
    +7 (926) 670-09-27
    Начать чат с агентом
    Похожие предложения
    Офис в Москва 1-я Тверская-Ямская ул., 21 (937 м) - Фото 1
    Офис в Москва 1-я Тверская-Ямская ул., 21 (937 м) - Фото 2
    9-й этаж, всего 10 этажей

    Сдается в аренду офис 937 кв.м недалеко от метро. Состояние отделки — готово к въезду.Помещение доступно для аренды с 01.03.2026.Договор аренды заключаете с собственником помещения. Без надбавки к итоговой стоимости аренды.В арендную ставку включено:...
    • 9/10 эт.
    6 763 578 Р
    Агент
    +7 (932) Показать номер
    Посмотреть контакты
    Офис в Москва Ленинградский просп., 15С1 (1497 м) - Фото 1
    Офис в Москва Ленинградский просп., 15С1 (1497 м) - Фото 2
    3-й этаж, всего 5 этажей

    Функциональное бизнес-пространство на Ленинградском проспекте.Бизнес-парк Большевик - самый центр активного и делового района плеяды бизнес-центров от ст.м Белорусская.Территория, пресыщенная репутационной и исторической важностью.Офисное помещение...
    • 3/5 эт.
    6 856 260 Р
    Агент
    +7 (933) Показать номер
    Посмотреть контакты
    Офис (1482 м) - Фото 1
    Офис (1482 м) - Фото 2
    4-й этаж, всего 17 этажей

    Экономьте время и деньги: отрисуем планировку под вас бесплатно, с любым количеством правок. Предлагаем в аренду Офис в бизнес-центре «Риверсайд Тауэрс по адресу: Москва, Космодамианская набережная, 52с1.Рабочих мест: от 186 до 329*.Площадь: 1 482...
    • 4/17 эт.
    6 765 200 Р
    Агент
    +7 (966) Показать номер
    Посмотреть контакты
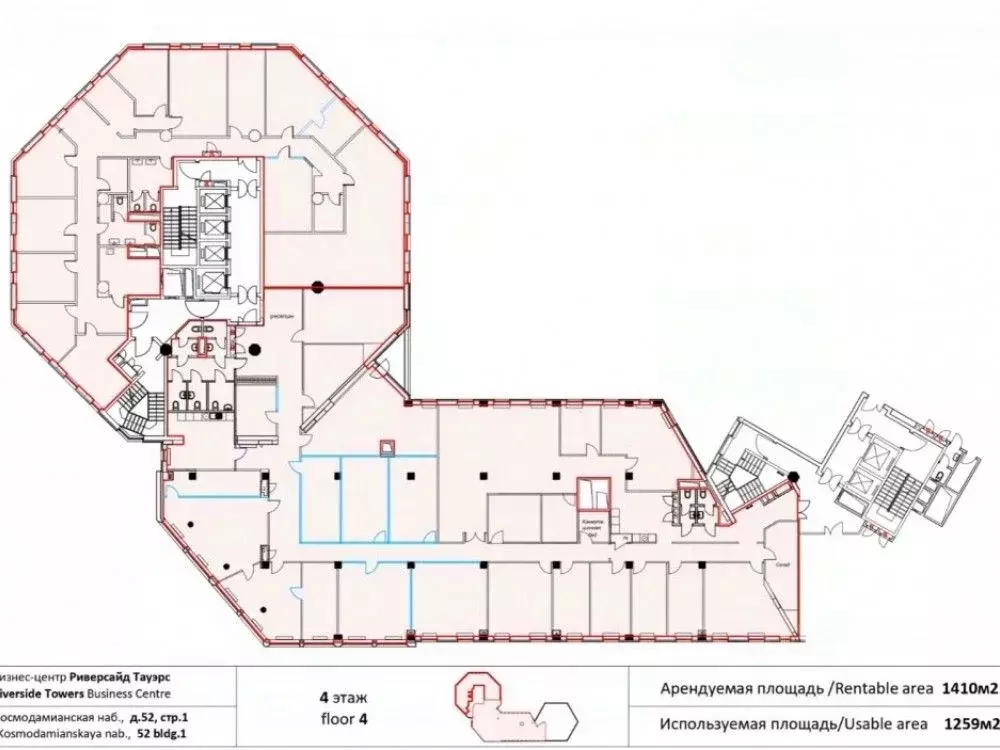
    Офис в Москва Космодамианская наб., 52С1 (1410 м) - Фото 1
    Офис в Москва Космодамианская наб., 52С1 (1410 м) - Фото 2
    4-й этаж, всего 25 этажей

    Предложение в аренду 62442.Парковка: наземная 22800/мес, подземная 27000/мес.Предлагаем в аренду офис в бизнес-центре класса А на Балчуге. До м.Павелецкая 15 минут пешком.. Офис расположен на 4-м этаже, смешанная планировка, свои с/у, отделка за выездом...
    • 4/25 эт.
    6 768 000 Р
    Агент
    +7 (989) Показать номер
    Посмотреть контакты
    Офис в Москва Таганская ул., 17-23 (1717 м) - Фото 1
    Офис в Москва Таганская ул., 17-23 (1717 м) - Фото 2
    8-й этаж, всего 12 этажей

    Экономьте время и деньги: отрисуем планировку под вас бесплатно, с любым количеством правок. Предлагаем в аренду Офис в бизнес-центре Мосэнка Парк Тауэрс 4 по адресу: Москва, Таганская улица, 17-23.Рабочих мест: от 215 до 381*.Площадь: 1 717 м2.Планировка:...
    • 8/12 эт.
    6 740 000 Р
    Агент
    +7 (980) Показать номер
    Посмотреть контакты

    Не нашли подходящего объявления?

    Оставьте заявку, и наши риэлторы подберут офис в районе Москвы

    (0)