6 765 200 Р 87 350 $ или 73 950

Информация о помещении и здании

4
Этаж
17
Этажность
Развернуть
Агент
+7 (966) 172-51-09
Начать чат с агентом

Офис (1482 м)

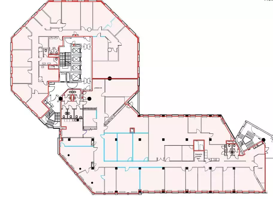
Экономьте время и деньги: отрисуем планировку под вас бесплатно, с любым количеством правок. Предлагаем в аренду Офис в бизнес-центре «Риверсайд Тауэрс по адресу: Москва, Космодамианская набережная, 52с1.Рабочих мест: от 186 до 329*.Площадь: 1 482 м2.Планировка: кабинетная.Состояние: готовность к въезду с.Ставка (включая эксплуатацию): за м2/год.Арендная плата:/мес.Налог: включая НДС.Коммунальные расходы: оплачиваются по факту.Этаж: 2, 4 из 17.Тип аренды: Прямая аренда.Охрана: круглосуточная охрана здания.Метро рядом: м. Павелецкая в 9 минутах пешком, м. Таганская в 14 минутах пешком. Этот адрес обслуживает налоговая №5. Парковка подземная.Системы здания:Вентиляция: приточно-вытяжная.Кондиционирование: центральное.Пожарная сигнализация: спринклерная система.Этот лот состоит из нескольких помещений: 143 кв. м., 881 кв. м. и 458 кв. м.>ID объекта - 022832.*Количество рабочих мест рассчитано автоматически: от 4,5 м2 на человека до 8 м2 на человека.Почему клиенты доверяют нам?1. 12000 объектов коммерческой недвижимости Москвы и Области, включая эксклюзивные и внерыночные.2. Работаем без комиссии и скрытых платежей. Вы заключаете договор напрямую с собственником.3. Профессиональное сопровождение: консультации на каждом этапе, помощь в подборе оптимального решения для вашего бизнеса.4. 17 лет опыта в коммерческой недвижимости.Не тратьте время, доверьте поиски нам Позвоните, и мы оперативно организуем просмотр или подготовим подборку объектов.

Читать полностью
    Позвонить Написать
    6 765 200 Р87 350 $ или 73 950
    Агент
    +7 (966) 172-51-09
    Начать чат с агентом
    Похожие предложения
    Офис в Москва Космодамианская наб., 52С1 (1410 м) - Фото 1
    Офис в Москва Космодамианская наб., 52С1 (1410 м) - Фото 2
    4-й этаж, всего 25 этажей

    Предложение в аренду 62442.Парковка: наземная 22800/мес, подземная 27000/мес.Предлагаем в аренду офис в бизнес-центре класса А на Балчуге. До м.Павелецкая 15 минут пешком.. Офис расположен на 4-м этаже, смешанная планировка, свои с/у, отделка за выездом...
    • 4/25 эт.
    6 768 000 Р
    Агент
    +7 (989) Показать номер
    Посмотреть контакты
    Офис в Москва Космодамианская наб., 52С1 (1410 м) - Фото 1
    Офис в Москва Космодамианская наб., 52С1 (1410 м) - Фото 2
    4-й этаж, всего 25 этажей

    ВАЖНО: БЕЗ КОММИССИ ДЛЯ АРЕНДАТОРОВ, ПРЯМАЯ АРЕНДА ОТ СОБСТВЕННИКАБизнес-центр A класса Риверсайд Тауэрс (Красные Холмы) расположен по адресу Москва, ЦАО, район Замоскворечье, Космодамианская наб., дом 52, в пешей доступности от метро Павелецкая (9 мин).Характеристики...
    • 4/25 эт.
    6 768 000 Р
    Агент
    +7 (916) Показать номер
    Посмотреть контакты
    Офис в Москва Космодамианская наб., 52С1 (1410 м) - Фото 1
    Офис в Москва Космодамианская наб., 52С1 (1410 м) - Фото 2
    4-й этаж, всего 14 этажей

    ID 586539Аренда офиса на 4 этаже площадью 1410.00 кв.м. возле метро Павелецкая В офисе сейчас свежий современный ремонт, который создает комфортные условия для работы и творчества. Рядом с домом расположены:- Школа 498 с дошкольным отделением- Детский...
    • 4/14 эт.
    6 768 000 Р
    Агент
    +7 (933) Показать номер
    Посмотреть контакты
    Офис в Москва Космодамианская наб., 52С1 (1410 м) - Фото 1
    Офис в Москва Космодамианская наб., 52С1 (1410 м) - Фото 2
    4-й этаж, всего 14 этажей

    БЕЗ КОМИССИИ Прямая аренда от собственника В ЦАО р-не Замоскворечье в оригинальном бизнес-центре Риверсайд Тауэрс сдается в аренду офисный этаж. БЦ В+ класса.5 мин. пешком от м. Павелецкая 4 этаж. Площадь офиса по Бома 1410 кв.м, по Бти 1259 кв.м.Возможна...
    • 4/14 эт.
    6 768 000 Р
    Агент
    +7 (994) Показать номер
    Посмотреть контакты
    Офис в Москва Таганская ул., 34С3 (1807 м) - Фото 1
    Офис в Москва Таганская ул., 34С3 (1807 м) - Фото 2
    1-й этаж, всего 5 этажей

    Показ в удобное время. С АГЕНТАМИ РАБОТАЕМ И ПЛАТИМ.Бизнес-центр расположен в шаговой доступности от метро. Транспортная доступность обеспечена близостью к Садовому Кольцу, Николоямской улице и ТТК. Презентабельная входная группа и места общего пользования....
    • 1/5 эт.
    6 776 250 Р
    Агент
    +7 (933) Показать номер
    Посмотреть контакты

    Не нашли подходящего объявления?

    Оставьте заявку, и наши риэлторы подберут офис в районе Москвы

    (0)