В базе
1 178 092
предложения от
129 694
агентов
Москва
Выбрать
Отмена
Вход
Регистрация
Избранное
Недвижимость
в Москве
Новостройки
Бизнес-центры
Коттеджные поселки
Земельные участки
Москвы
Агентства
недвижимости
Риэлторы
Москвы
Консультации
по недвижимости
PRO-аккаунт
путь к успеху
Добавить объявление
на AFY.ru и 60+ сайтов
Добавить объявление
на AFY.ru и 60+ сайтов
Москва
Выбрать
Отмена
Недвижимость
Земельные участки
Агентства
Риэлторы
Консультации
PRO-аккаунт
+ Добавить объявление
Вход
Регистрация
Лучшие риэлторы в Москве
+Присоединиться
Окулов
Андрей
Иванович
PRO
нет отзывов
+7 (922)
Показать
Аукционный Дом "ТОРГИ-РУ"
Лемехова
Элия
PRO
нет отзывов
+7 (906)
Показать
МИЭЛЬ
Прошин
Андрей
Витальевич
PRO
нет отзывов
+7 (926)
Показать
Бормотов
Геннадий
Александрович
PRO
нет отзывов
+7 (929)
Показать
Костюнин
Дмитрий
Владимирович
PRO
нет отзывов
+7 (916)
Показать
Националь
Сервис
бесплатных
консультаций от
a
f
y
Задайте любой вопрос по недвижимости и получите ответ профессионалов
Получить бесплатную консультацию
Фильтр
На карте
+ Добавить объявление
Вход
Регистрация
{"links":{"213":{"type":"rent_day","fkey":"flat"},"124":{"type":"rent_day","fkey":"house"},"262":{"type":"rent_day","fkey":"room"},"208":{"type":"rent","fkey":"flat"},"234":{"type":"rent","fkey":"room"},"668":{"type":"rent","fkey":"penthouse"},"50":{"type":"rent","fkey":"house"},"180":{"type":"rent","fkey":"commercial","fkeysub":"office"},"196":{"type":"rent","fkey":"commercial","fkeysub":"trade"},"198":{"type":"rent","fkey":"commercial","fkeysub":"warehouse"},"256":{"type":"rent","fkey":"commercial","fkeysub":"production"},"254":{"type":"rent","fkey":"commercial","fkeysub":"psn"},"203":{"type":"rent","fkey":"garage"},"666":{"type":"sale","checkbox":"auction","fkey":"flat"},"175":{"type":"sale","fkey":"flat"},"667":{"type":"sale","fkey":"newbuilding"},"189":{"type":"sale","fkey":"room"},"216":{"type":"sale","fkey":"penthouse"},"193":{"type":"sale","fkey":"townhouse"},"102":{"type":"sale","fkey":"house"},"31":{"type":"sale","fkey":"plot"},"200":{"type":"sale","fkey":"industrial"},"191":{"type":"sale","fkey":"commercial","fkeysub":"office"},"197":{"type":"sale","fkey":"commercial","fkeysub":"trade"},"199":{"type":"sale","fkey":"commercial","fkeysub":"warehouse"},"255":{"type":"sale","fkey":"commercial","fkeysub":"production"},"253":{"type":"sale","fkey":"commercial","fkeysub":"psn"},"201":{"type":"sale","fkey":"commercial","fkeysub":"business"},"202":{"type":"sale","fkey":"garage"},"187":{"type":"exchange","fkey":"flat"},"190":{"type":"exchange","fkey":"room"}},"type":{"sale":{"name":"\u041a\u0443\u043f\u0438\u0442\u044c","name_type_offer":{"predlozh":"\u041f\u0440\u043e\u0434\u0430\u0442\u044c","spros":"\u041a\u0443\u043f\u0438\u0442\u044c"},"list":{"flat":{"folder":175},"newbuilding":{"folder":667},"room":{"folder":189},"penthouse":{"folder":216},"townhouse":{"folder":193},"house":{"folder":102},"plot":{"folder":31},"industrial":{"folder":200},"commercial":{"list":{"office":{"folder":191},"trade":{"folder":197},"warehouse":{"folder":199},"production":{"folder":255},"psn":{"folder":253},"business":{"folder":201}}},"garage":{"folder":202}}},"rent":{"name":"\u0421\u043d\u044f\u0442\u044c","name_type_offer":{"predlozh":"\u0421\u0434\u0430\u0442\u044c","spros":"\u0421\u043d\u044f\u0442\u044c"},"list":{"flat":{"folder":208},"room":{"folder":234},"penthouse":{"folder":668},"house":{"folder":50},"commercial":{"list":{"office":{"folder":180},"trade":{"folder":196},"warehouse":{"folder":198},"production":{"folder":256},"psn":{"folder":254}}},"garage":{"folder":203}}},"rent_day":{"name":"\u041f\u043e\u0441\u0443\u0442\u043e\u0447\u043d\u043e","name_type_offer":{"predlozh":"\u0421\u0434\u0430\u0442\u044c","spros":"\u0421\u043d\u044f\u0442\u044c"},"list":{"flat":{"folder":213},"house":{"folder":124},"house_newyear":{"folder":195},"room":{"folder":262}}}},"list":{"flat":{"name":"\u043a\u0432\u0430\u0440\u0442\u0438\u0440\u0443","type":"radio","group_sep":1,"only_open":false,"list_type":"checkbox"},"newbuilding":{"name":"\u043d\u043e\u0432\u043e\u0441\u0442\u0440\u043e\u0439\u043a\u0443","type":"radio","group_sep":1,"only_open":false,"list_type":"checkbox"},"room":{"name":"\u043a\u043e\u043c\u043d\u0430\u0442\u0443","type":"radio","group_sep":1,"only_open":false},"penthouse":{"name":"\u043f\u0435\u043d\u0442\u0445\u0430\u0443\u0441","type":"radio","group_sep":1,"only_open":false,"list_type":"checkbox"},"townhouse":{"name":"\u0442\u0430\u0443\u043d\u0445\u0430\u0443\u0441","type":"radio","group_sep":2,"only_open":false},"house":{"name":"\u0434\u043e\u043c","type":"radio","group_sep":2,"only_open":false},"plot":{"group_sep":1,"name":"\u0437\u0435\u043c\u0435\u043b\u044c\u043d\u044b\u0439 \u0443\u0447\u0430\u0441\u0442\u043e\u043a","name_short":"\u0437\u0435\u043c\u0435\u043b\u044c\u043d\u044b\u0439 \u0443\u0447\u0430\u0441\u0442\u043e\u043a","type":"radio","only_open":false},"industrial":{"group_sep":1,"name":"\u043f\u0440\u043e\u043c\u044b\u0448\u043b\u0435\u043d\u043d\u044b\u0435 \u0437\u0435\u043c\u043b\u0438","name_short":"\u043f\u0440\u043e\u043c\u044b\u0448\u043b\u0435\u043d\u043d\u044b\u0435 \u0437\u0435\u043c\u043b\u0438","type":"radio","only_open":false},"commercial":{"name":"\u043a\u043e\u043c\u043c\u0435\u0440\u0447\u0435\u0441\u043a\u0443\u044e \u043d\u0435\u0434\u0432\u0438\u0436\u0438\u043c\u043e\u0441\u0442\u044c","type":"radio","group_sep":3,"only_open":true,"list_type":"radio","list":{"office":{"name":"\u043e\u0444\u0438\u0441\u043d\u043e\u0435 \u043f\u043e\u043c\u0435\u0449\u0435\u043d\u0438\u0435","name_short":"\u043e\u0444\u0438\u0441\u043d\u043e\u0435 \u043f\u043e\u043c\u0435\u0449\u0435\u043d\u0438\u0435","type":"radio"},"trade":{"name":"\u0442\u043e\u0440\u0433\u043e\u0432\u043e\u0435 \u043f\u043e\u043c\u0435\u0449\u0435\u043d\u0438\u0435","name_short":"\u0442\u043e\u0440\u0433\u043e\u0432\u043e\u0435 \u043f\u043e\u043c\u0435\u0449\u0435\u043d\u0438\u0435","type":"radio"},"warehouse":{"name":"\u0441\u043a\u043b\u0430\u0434\u0441\u043a\u043e\u0435 \u043f\u043e\u043c\u0435\u0449\u0435\u043d\u0438\u0435","name_short":"\u0441\u043a\u043b\u0430\u0434\u0441\u043a\u043e\u0435 \u043f\u043e\u043c\u0435\u0449\u0435\u043d\u0438\u0435","type":"radio"},"production":{"name":"\u043f\u0440\u043e\u0438\u0437\u0432\u043e\u0434\u0441\u0442\u0432\u0435\u043d\u043d\u043e\u0435 \u043f\u043e\u043c\u0435\u0449\u0435\u043d\u0438\u0435","name_short":"\u043f\u0440\u043e\u0438\u0437\u0432\u043e\u0434\u0441\u0442\u0432\u0435\u043d\u043d\u043e\u0435 \u043f\u043e\u043c\u0435\u0449\u0435\u043d\u0438\u0435","type":"radio"},"psn":{"name":"\u043f\u043e\u043c\u0435\u0449\u0435\u043d\u0438\u0435 \u0441\u0432\u043e\u0431\u043e\u0434\u043d\u043e\u0433\u043e \u043d\u0430\u0437\u043d\u0430\u0447\u0435\u043d\u0438\u044f","name_short":"\u043f\u043e\u043c\u0435\u0449\u0435\u043d\u0438\u0435 \u0441\u0432\u043e\u0431\u043e\u0434\u043d\u043e\u0433\u043e \u043d\u0430\u0437\u043d\u0430\u0447\u0435\u043d\u0438\u044f","type":"radio"},"business":{"name":"\u0433\u043e\u0442\u043e\u0432\u044b\u0439 \u0431\u0438\u0437\u043d\u0435\u0441","name_short":"\u0433\u043e\u0442\u043e\u0432\u044b\u0439 \u0431\u0438\u0437\u043d\u0435\u0441","type":"radio"}}},"garage":{"name":"\u0433\u0430\u0440\u0430\u0436 \u0438\u043b\u0438 \u043c\u0430\u0448\u0438\u043d\u043e\u043c\u0435\u0441\u0442\u043e","type":"radio","group_sep":3,"only_open":false}}}
Продажа помещений свободного назначения
Купить
Снять
Посуточно
квартиру
новостройку
комнату
пентхаус
таунхаус
дом
земельный участок
промышленные земли
коммерческую недвижимость
офисное помещение
торговое помещение
складское помещение
производственное помещение
помещение свободного назначения
готовый бизнес
гараж или машиноместо
Применить
Отмена
Сохранить
Комнатность
студия
1
2
3
4+
Цена
Руб.
Руб.
$
€
Бел. руб.
Грн.
в месяц
в месяц
в год
м2 в месяц
м2 в год
Площадь
Сот
Сот
Га
м2
м2
Показать
1
объект
На карте
Фильтр
К списку
Недвижимость в Москве
Продажа помещений свободного назначения в Москве
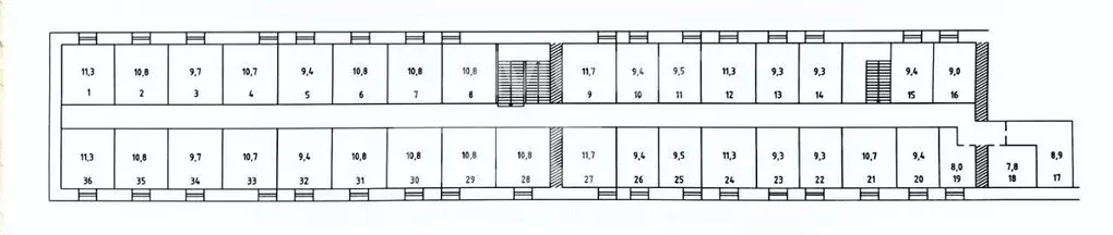
Продажа помещений свободного назначения Москва, Красноворотский проезд
Продажа помещений свободного назначения Красноворотский проезд, Москва
1
Подписаться на раздел
+Добавить объявление
Список
Карта
Сортировать:
по рейтингу
по рейтингу
новые сверху
старые сверху
дешёвые сверху
дорогие сверху
Выводить по:
30
10
30
50
Агентства недвижимости в Москве
+Присоединиться
Аукционный
Дом
"ТОРГИ-РУ"
1
сотрудник
5
объектов
+7 (922)
Показать номер
МИЭЛЬ
1
сотрудник
1
объект
+7 (495)
Показать номер
АН
"АНЭКС"
1
сотрудник
1
объект
+7 (909)
Показать номер
Estate
Liga
1
сотрудник
3
объекта
+7 (925)
Показать номер
Мариако
4
сотрудника
2
объекта
+7 (495)
Показать номер
Попробуйте
поиск по карте
Простой и удобный способ поиска жилья в нужных вам районах
Помещение свободного назначения в Москва Красноворотский проезд, 3С1 ...
ПРОДАМ помещение свободного назначения КОМИССИЯ для ПОКУПАТЕЛЯ 0 Преимущества локации: Удобная транспортная доступность, до метро Красные ворота 3-и мин. Пешком Пешая доступность до 3-х ж/д вокзалов Большой автомобильный и пеший...
4/4 эт.
81 000 000
Р
Москва
,
м. Комсомольская
,
Красноворотский проезд
,
3С1
Посмотреть на карте
+7 (913)
Показать номер
Посмотреть контакты
Не нашли подходящего объявления?
Оставьте заявку, и наши риэлторы подберут псн в районе
Москвы
Отправить заявку
Отправляя заявку, вы принимаете
Политику обработки персональных данных
и даёте
Согласие на обработку персональных данных
.
(0)