318 880 000 Р 4 504 600 $ или 3 829 300

Информация об помещении

1594 м2
Площадь
отдельное здание
Тип помещения

Состояние и оснащение

Количество помещений
1
Ремонт
евроремонт
Количество этажей
2

Дополнительная информация

Высота потолков, м.
3

Оснащённость

Интернет
есть
Водопровод
есть
Электричество
есть
Отопление
есть
Санузел
есть
Развернуть
Копылов Роман Николаевич
PRO
+7 (909) 654-81-26
Профессионал AFY.ru с 2012 г.
Начать чат с агентом

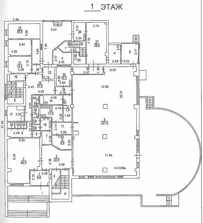
Здание в ЮЗАО арендный бизнес

Двухэтажное здание (ОСЗ) у выхода из станции метро "Улица Генерала Тюленева"
Объект расположен по адресу - ул. Генерала Тюленева,
Площадь здания - 1 594,4 м2,
9 отдельных входов
ЗУ площадью 2 640 м2 в аренде до 2065 г.

Все коммуникации центральные.
Подведено магистральное газоснабжение.
Электричество 150 кВт
Высота потолка от 2.8-5.1 м.

Здание имеет открытые веранды на 1 и 2 этажах, а также пригодную к эксплуатации кровлю.

Разработана концепция переустройства объекта.

Все помещения в здании сданы в аренду по краткосрочным договорам.
МАП составляет – 2 630 000 руб.
На прилегающей к зданию территории расположена парковка для автомобилей.

Читать полностью

    Для того, чтобы купить торговое помещение площадью 1594 кв. метра по адресу: м. Теплый Стан, ул. Генерала Тюленева, 4а с1, позвоните по телефону +7 (909) 654-81-26. Торопитесь! Объявление №800820410 о продаже торгового помещения площадью 1594 кв. метра опубликовано Сегодня.

    Позвонить Написать
    318 880 000 Р4 504 600 $ или 3 829 300
    Копылов Роман Николаевич
    PRO
    +7 (909) 654-81-26
    Профессионал AFY.ru с 2012 г.
    Начать чат с агентом
    Похожие предложения
    м.Китай-город,Лубянский проезд 720.4м2, Помещение (ном. объекта: 8377) - Фото 1
    м.Китай-город,Лубянский проезд 720.4м2, Помещение (ном. объекта: 8377) - Фото 2
    м.Китай-город,Лубянский проезд 720.4м2, Помещение (ном. объекта: 8377) - Фото 3
    м.Китай-город,Лубянский проезд 720.4м2, Помещение (ном. объекта: 8377) - Фото 4
    м.Китай-город,Лубянский проезд 720.4м2, Помещение (ном. объекта: 8377) - Фото 5
    м.Китай-город,Лубянский проезд 720.4м2, Помещение (ном. объекта: 8377) - Фото 6
    общая площадь 720.4м², реализуемая площадь 720.4м²

    Продается помещение свободного назначения общей площадью 720.4м2(1 этаж,2 этаж,подвал,мезонин) расположенное на первой линии, 1 минут от станции метро Китай-город. Центральные коммуникации.Чистовая отделка. Отдельная входная группа с фасада, несколько...
    • 720.4 м²
    • 2 этажа
    310 800 000 Р
    Агент
    +7 (916) Показать номер
    Агентство
    Телус
    Посмотреть контакты
    м Чкаловская, Сыромятнический переулок, 1802 м2, Здание (ном. объекта: ... - Фото 1
    м Чкаловская, Сыромятнический переулок, 1802 м2, Здание (ном. объекта: ... - Фото 2
    м Чкаловская, Сыромятнический переулок, 1802 м2, Здание (ном. объекта: ... - Фото 3
    м Чкаловская, Сыромятнический переулок, 1802 м2, Здание (ном. объекта: ... - Фото 4
    м Чкаловская, Сыромятнический переулок, 1802 м2, Здание (ном. объекта: ... - Фото 5
    м Чкаловская, Сыромятнический переулок, 1802 м2, Здание (ном. объекта: ... - Фото 6
    м Чкаловская, Сыромятнический переулок, 1802 м2, Здание (ном. объекта: ... - Фото 7
    общая площадь 1803м², реализуемая площадь 1803м²

    Продается здание 1802 м2. 3 этажа + подвал, коммуникаций нет, состояние - аварийное. Участок 9 соток в аренде, ври деловое управление. 3 минуты от станции метро Чкаловская, Курская. 1850 год постройки, потолки 3 метра. Объект №.
    • 1 803 м²
    • 3 этажа
    330 000 000 Р
    Агент
    +7 (968) Показать номер
    Агентство
    Телус
    Посмотреть контакты
    м. Сокольники, 2-й Лучевой просек, 2121 м2, Производственное Здание ... - Фото 1
    м. Сокольники, 2-й Лучевой просек, 2121 м2, Производственное Здание ... - Фото 2
    м. Сокольники, 2-й Лучевой просек, 2121 м2, Производственное Здание ... - Фото 3
    м. Сокольники, 2-й Лучевой просек, 2121 м2, Производственное Здание ... - Фото 4
    м. Сокольники, 2-й Лучевой просек, 2121 м2, Производственное Здание ... - Фото 5
    м. Сокольники, 2-й Лучевой просек, 2121 м2, Производственное Здание ... - Фото 6
    м. Сокольники, 2-й Лучевой просек, 2121 м2, Производственное Здание ... - Фото 7
    м. Сокольники, 2-й Лучевой просек, 2121 м2, Производственное Здание ... - Фото 8
    м. Сокольники, 2-й Лучевой просек, 2121 м2, Производственное Здание ... - Фото 9
    м. Сокольники, 2-й Лучевой просек, 2121 м2, Производственное Здание ... - Фото 10
    м. Сокольники, 2-й Лучевой просек, 2121 м2, Производственное Здание ... - Фото 11
    м. Сокольники, 2-й Лучевой просек, 2121 м2, Производственное Здание ... - Фото 12
    м. Сокольники, 2-й Лучевой просек, 2121 м2, Производственное Здание ... - Фото 13
    м. Сокольники, 2-й Лучевой просек, 2121 м2, Производственное Здание ... - Фото 14
    м. Сокольники, 2-й Лучевой просек, 2121 м2, Производственное Здание ... - Фото 15
    м. Сокольники, 2-й Лучевой просек, 2121 м2, Производственное Здание ... - Фото 16
    м. Сокольники, 2-й Лучевой просек, 2121 м2, Производственное Здание ... - Фото 17
    м. Сокольники, 2-й Лучевой просек, 2121 м2, Производственное Здание ... - Фото 18
    м. Сокольники, 2-й Лучевой просек, 2121 м2, Производственное Здание ... - Фото 19
    м. Сокольники, 2-й Лучевой просек, 2121 м2, Производственное Здание ... - Фото 20
    общая площадь 2130м², реализуемая площадь 2130м²

    Трехэтажное производственное здание 2121 м2. Высота потолков на первом этаже 4,5 метра, на втором и третьем этажах 3 метра. Перекрытия железобетонные. Стены кирпичные. Инженерные коммуникации центральные: газовое отопление, водоснабжение и канализирование,...
    • 2 130 м²
    • 2 этажа
    320 000 000 Р
    Агент
    +7 (926) Показать номер
    Агентство
    Телус
    Посмотреть контакты
    м Волжская , ул Чистова 2100м2 Здание (ном. объекта: 7821) - Фото 1
    м Волжская , ул Чистова 2100м2 Здание (ном. объекта: 7821) - Фото 2
    м Волжская , ул Чистова 2100м2 Здание (ном. объекта: 7821) - Фото 3
    м Волжская , ул Чистова 2100м2 Здание (ном. объекта: 7821) - Фото 4
    м Волжская , ул Чистова 2100м2 Здание (ном. объекта: 7821) - Фото 5
    м Волжская , ул Чистова 2100м2 Здание (ном. объекта: 7821) - Фото 6
    м Волжская , ул Чистова 2100м2 Здание (ном. объекта: 7821) - Фото 7
    м Волжская , ул Чистова 2100м2 Здание (ном. объекта: 7821) - Фото 8
    м Волжская , ул Чистова 2100м2 Здание (ном. объекта: 7821) - Фото 9
    м Волжская , ул Чистова 2100м2 Здание (ном. объекта: 7821) - Фото 10
    м Волжская , ул Чистова 2100м2 Здание (ном. объекта: 7821) - Фото 11
    м Волжская , ул Чистова 2100м2 Здание (ном. объекта: 7821) - Фото 12
    м Волжская , ул Чистова 2100м2 Здание (ном. объекта: 7821) - Фото 13
    м Волжская , ул Чистова 2100м2 Здание (ном. объекта: 7821) - Фото 14
    м Волжская , ул Чистова 2100м2 Здание (ном. объекта: 7821) - Фото 15
    м Волжская , ул Чистова 2100м2 Здание (ном. объекта: 7821) - Фото 16
    м Волжская , ул Чистова 2100м2 Здание (ном. объекта: 7821) - Фото 17
    м Волжская , ул Чистова 2100м2 Здание (ном. объекта: 7821) - Фото 18
    м Волжская , ул Чистова 2100м2 Здание (ном. объекта: 7821) - Фото 19
    м Волжская , ул Чистова 2100м2 Здание (ном. объекта: 7821) - Фото 20
    общая площадь 2200м², реализуемая площадь 2200м²

    Административное здание . год строительства - 1946. год капитального ремонта- 2022. три этажа и мансарда(мансарда не оформлена). стены кирпич. потолки от 3.2. метра. Имеет несколько входов. центральные коммуникации. своя парковка. пешая доступность от...
    • 2 200 м²
    • 3 этажа
    320 000 000 Р
    Агент
    +7 (965) Показать номер
    Агентство
    Телус
    Посмотреть контакты
    м. Щукинская, ул. Габричевского, 1341 м2, Здание (ном. объекта: 5383) - Фото 1
    м. Щукинская, ул. Габричевского, 1341 м2, Здание (ном. объекта: 5383) - Фото 2
    м. Щукинская, ул. Габричевского, 1341 м2, Здание (ном. объекта: 5383) - Фото 3
    м. Щукинская, ул. Габричевского, 1341 м2, Здание (ном. объекта: 5383) - Фото 4
    м. Щукинская, ул. Габричевского, 1341 м2, Здание (ном. объекта: 5383) - Фото 5
    м. Щукинская, ул. Габричевского, 1341 м2, Здание (ном. объекта: 5383) - Фото 6
    м. Щукинская, ул. Габричевского, 1341 м2, Здание (ном. объекта: 5383) - Фото 7
    м. Щукинская, ул. Габричевского, 1341 м2, Здание (ном. объекта: 5383) - Фото 8
    м. Щукинская, ул. Габричевского, 1341 м2, Здание (ном. объекта: 5383) - Фото 9
    м. Щукинская, ул. Габричевского, 1341 м2, Здание (ном. объекта: 5383) - Фото 10
    м. Щукинская, ул. Габричевского, 1341 м2, Здание (ном. объекта: 5383) - Фото 11
    м. Щукинская, ул. Габричевского, 1341 м2, Здание (ном. объекта: 5383) - Фото 12
    м. Щукинская, ул. Габричевского, 1341 м2, Здание (ном. объекта: 5383) - Фото 13
    м. Щукинская, ул. Габричевского, 1341 м2, Здание (ном. объекта: 5383) - Фото 14
    м. Щукинская, ул. Габричевского, 1341 м2, Здание (ном. объекта: 5383) - Фото 15
    м. Щукинская, ул. Габричевского, 1341 м2, Здание (ном. объекта: 5383) - Фото 16
    м. Щукинская, ул. Габричевского, 1341 м2, Здание (ном. объекта: 5383) - Фото 17
    м. Щукинская, ул. Габричевского, 1341 м2, Здание (ном. объекта: 5383) - Фото 18
    м. Щукинская, ул. Габричевского, 1341 м2, Здание (ном. объекта: 5383) - Фото 19
    м. Щукинская, ул. Габричевского, 1341 м2, Здание (ном. объекта: 5383) - Фото 20
    общая площадь 1341м², реализуемая площадь 1341м²

    Здание 1341 м2 на огороженной территории комплекса медицинских учреждений. На текущий момент в здании находится клиника. Есть медицинские лицензии. В здании выполнен типовой ремонт. Кондиционирование, все коммуникации подключены. В пешей доступности до...
    • 1 341 м²
    • 3 этажа
    330 000 000 Р
    Агент
    +7 (965) Показать номер
    Агентство
    Телус
    Посмотреть контакты

    Не нашли подходящего объявления?

    Оставьте заявку, и наши риэлторы подберут торговое помещение в районе Москвы

    (0)