32 000 000 Р 411 100 $ или 352 100

Информация об помещении

1
Этаж

Состояние и оснащение

Количество этажей
17
Развернуть
Агент
+7 (938) 656-74-88
Начать чат с агентом

Торговая площадь в Москва Измайловский проезд, 5А (72 м)

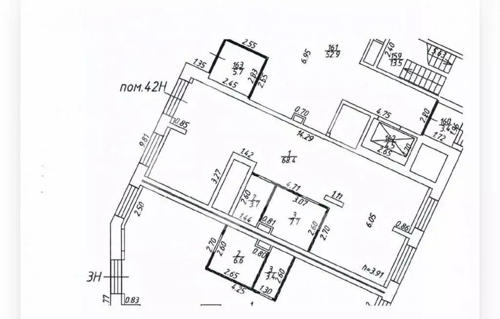
1094600. Предлагаем угловое помещение свободного назначения в ЖК Измайловский 11 , площадью 70 кв. м, расположенное на первом этаже 17-этажного жилого дома. Без комиссии для покупателя.Преимущества объекта:-первая линия;-ЖК состоит из 6-ти 17-этажных корпусов, рассчитанных на 870 квартир;-20 минут пешком от станций метро Измайловская , Партизанская и МЦК Измайлово ;-удобная транспортная доступность: 2.6 км до Щёлковского шоссе, 3.4 км до СВХ, 4 км до Измайловского шоссе, 5 км до шоссе Энтузиастов;-плотный жилой массив;-развитая инфраструктура района;-высокий автомобильный и пешеходный трафик;-отлично просматривается, находится в легком доступе для потенциальных клиентов;-гибкая планировка, позволяющая адаптировать пространство под различные нужды;-витринное остекление;-возможность размещения вывески;-зона погрузки/разгрузки;-наземная парковка.Технические параметры объекта:-отдельный вход с улицы.-электрическая мощность: 14 кВт.Свяжитесь с нами для получения дополнительной информации

Читать полностью
    Позвонить Написать
    32 000 000 Р411 100 $ или 352 100
    Агент
    +7 (938) 656-74-88
    Начать чат с агентом
    Похожие предложения
    Торговая площадь в Москва Измайловский проезд, 5А (80 м) - Фото 1
    Торговая площадь в Москва Измайловский проезд, 5А (80 м) - Фото 2
    1094587. Предлагаем помещение свободного назначения в ЖК Измайловский 11 , площадью 79 кв. м, расположенное на первом этаже 17-этажного жилого дома. Без комиссии для покупателя.Преимущества объекта:-первая линия;-ЖК состоит из 6-ти 17-этажных корпусов,...
    • 1/17 эт.
    33 000 000 Р
    Агент
    +7 (938) Показать номер
    Посмотреть контакты
    Торговая площадь в Москва Измайловский проезд, 5А (80 м) - Фото 1
    Торговая площадь в Москва Измайловский проезд, 5А (80 м) - Фото 2
    1094587. Предлагаем помещение свободного назначения в ЖК Измайловский 11 , площадью 79 кв. м, расположенное на первом этаже 17-этажного жилого дома. Без комиссии для покупателя.Преимущества объекта:-первая линия;-ЖК состоит из 6-ти 17-этажных корпусов,...
    • 1/17 эт.
    33 000 000 Р
    Агент
    +7 (938) Показать номер
    Посмотреть контакты
    Торговая площадь в Москва Измайловский проезд, 5А (72 м) - Фото 1
    Торговая площадь в Москва Измайловский проезд, 5А (72 м) - Фото 2
    1094600. Предлагаем угловое помещение свободного назначения в ЖК Измайловский 11 , площадью 70 кв. м, расположенное на первом этаже 17-этажного жилого дома. Без комиссии для покупателя.Преимущества объекта:-первая линия;-ЖК состоит из 6-ти 17-этажных...
    • 1/17 эт.
    32 000 000 Р
    Агент
    +7 (938) Показать номер
    Посмотреть контакты
    Продажа торгового помещения, м. Селигерская, Дмитровское ш. - Фото 1
    Продажа торгового помещения, м. Селигерская, Дмитровское ш. - Фото 2
    Продажа торгового помещения, м. Селигерская, Дмитровское ш. - Фото 3
    общая площадь 24м², реализуемая площадь 24м²

    Первая линия Дмитровского шоссе. До метро Селигерская 1 мин пешком. Продажа помещения общей площадью 24,0 кв.м (блок № 5 на плане). 1-й этаж 46-ти этажного жилого дома. Отдельный вход с улицы. Динамичный оживленный район высотной застройки. Огромный автомобильный...
    • 24 м²
    • 1/46 эт.
    32 500 000 Р
    Агент
    +7 (903) Показать номер
    Посмотреть контакты
    Продажа торгового помещения, м. Улица Дмитриевского, ул. Дмитриевского - Фото 1
    Продажа торгового помещения, м. Улица Дмитриевского, ул. Дмитриевского - Фото 2
    Продажа торгового помещения, м. Улица Дмитриевского, ул. Дмитриевского - Фото 3
    Продажа торгового помещения, м. Улица Дмитриевского, ул. Дмитриевского - Фото 4
    Продажа торгового помещения, м. Улица Дмитриевского, ул. Дмитриевского - Фото 5
    общая площадь 159.8м², реализуемая площадь 159.8м²

    Продается действующий арендный бизнес с сетевым алкомаркетом Красное и Белое. ВАО, район Косино. Метро Улица Дмитриевского, 190 м, 5 мин пешком. Продажа торгового помещения, расположенного 1-м этаже 16-ти этажного жилого дома 2006 года постройки. Площадь...
    • 159.8 м²
    • 1/16 эт.
    31 500 000 Р
    Агент
    +7 (903) Показать номер
    Посмотреть контакты

    Не нашли подходящего объявления?

    Оставьте заявку, и наши риэлторы подберут торговое помещение в районе Москвы

    (0)