32 500 000 Р 386 900 $ или 334 100

Информация об помещении

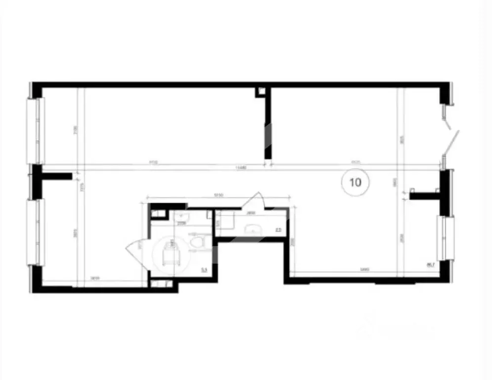
25 м2
Площадь
1
Этаж

Состояние и оснащение

Количество этажей
46
Развернуть
Агент
Наталья
+7 (903) 170-45-54
Начать чат с агентом

Продажа торгового помещения, м. Селигерская, Дмитровское ш.

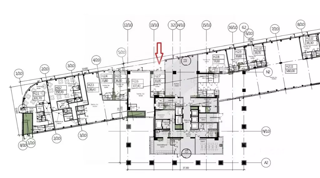
Первая линия Дмитровского шоссе. До метро Селигерская 1 мин пешком. Продажа помещения общей площадью 25,0 кв.м (блок № 5 на плане). 1-й этаж 46-ти этажного жилого дома. Отдельный вход с улицы. Динамичный оживленный район высотной застройки. Огромный автомобильный и пешеходный трафики. Рядом остановки наземного пассажирского транспорта. Отлично развита инфраструктура района. Витринное остекление. Возможность размещение рекламы на фасаде здания. Универсальная планировка под любые виды деятельности. Все инженерные коммуникации. Охранная и пожарная сигнализации. Есть возможность размещение рекламы на фасаде здания. Продажа по ДДУ. Срок завершения строительства - 2 кв. 2027 года.Объект № 551226Номер объекта: 5/551226/310

Читать полностью

    Для того, чтобы купить торговое помещение площадью 25 кв. метров по адресу: САО, Бескудниковский, м. Селигерская, Дмитровское ш., вл.89, позвоните по телефону +7 (903) 170-45-54. Торопитесь! Объявление №800824154 о продаже торгового помещения площадью 25 кв. метров опубликовано Сегодня.

    Позвонить Написать
    32 500 000 Р386 900 $ или 334 100
    Агент
    Наталья
    +7 (903) 170-45-54
    Начать чат с агентом
    Похожие предложения
    Торговая площадь в Москва Филатов Луг жилой комплекс, ул. ... - Фото 1
    Торговая площадь в Москва Филатов Луг жилой комплекс, ул. ... - Фото 2
    847699. Предлагаем помещение свободного назначения, площадью 94,5 кв. м., расположенное на первом этаже жилого дома в ЖК Филатов Луг . Корпус 6. Так как корректный адрес отсутствует на Яндекс.Картах, введен ближайший. Без комиссии для покупателя.Преимущества...
    • 1/19 эт.
    32 414 000 Р
    Агент
    +7 (938) Показать номер
    Посмотреть контакты
    Торговая площадь в Москва Перовское ш., 2к3 (62 м) - Фото 1
    Торговая площадь в Москва Перовское ш., 2к3 (62 м) - Фото 2
    Продаю как собственник, торговую площадь на 1 линии домов с арендатором - пункт выдачи заказов Wildberries. Отдельный вход , витринные окна, парковка есть. Витрины выходят на 3-ю Карачаровскую улицу с хорошей проходимостью.61,5 м площадь, 12 кВт....
    • 1/11 эт.
    32 000 000 Р
    Агент
    +7 (910) Показать номер
    Посмотреть контакты
    Продажа торгового помещения, Старомарьинское ш. - Фото 1
    Продажа торгового помещения, Старомарьинское ш. - Фото 2
    Продажа торгового помещения, Старомарьинское ш. - Фото 3
    Продажа торгового помещения, Старомарьинское ш. - Фото 4
    Продажа торгового помещения, Старомарьинское ш. - Фото 5
    Продажа торгового помещения, Старомарьинское ш. - Фото 6
    Продажа торгового помещения, Старомарьинское ш. - Фото 7
    Продажа торгового помещения, Старомарьинское ш. - Фото 8
    общая площадь 138.9м², реализуемая площадь 138.9м²

    . Нежилое помещение, 138,9 м | СВАО, р-н Марьина роща, Старомарьинское ш., д. 13, этаж 1, помещение 3/1 (IV) | Метро: Марьина Роща (пешком 10 мин., транспортом 10 мин., расстояние 0.59 км) Характеристики: Функциональное назначение: Свободное Тип входа:...
    • 138.9 м²
    • 1/14 эт.
    32 139 000 Р
    PRO
    +7 (922) Показать номер
    Посмотреть контакты
    Продажа торгового помещения, ул. Дубининская - Фото 1
    Продажа торгового помещения, ул. Дубининская - Фото 2
    Продажа торгового помещения, ул. Дубининская - Фото 3
    Продажа торгового помещения, ул. Дубининская - Фото 4
    Продажа торгового помещения, ул. Дубининская - Фото 5
    Продажа торгового помещения, ул. Дубининская - Фото 6
    Продажа торгового помещения, ул. Дубининская - Фото 7
    Продажа торгового помещения, ул. Дубининская - Фото 8
    общая площадь 12.3м², реализуемая площадь 12.3м²

    . Нежилое помещение, 12,3 м | ЦАО, р-н Замоскворечье, Дубининская ул., д. 11, стр. 2, Этаж № 1 | Метро: Павелецкая (пешком 6 мин., транспортом 5 мин., расстояние 0.22 км) Характеристики: Функциональное назначение: Свободное Тип входа: Отдельный
    • 12.3 м²
    • 1 эт.
    33 060 000 Р
    PRO
    +7 (922) Показать номер
    Посмотреть контакты
    Продажа торгового помещения, Открытое ш. - Фото 1
    Продажа торгового помещения, Открытое ш. - Фото 2
    Продажа торгового помещения, Открытое ш. - Фото 3
    Продажа торгового помещения, Открытое ш. - Фото 4
    Продажа торгового помещения, Открытое ш. - Фото 5
    Продажа торгового помещения, Открытое ш. - Фото 6
    Продажа торгового помещения, Открытое ш. - Фото 7
    Продажа торгового помещения, Открытое ш. - Фото 8
    общая площадь 100.9м², реализуемая площадь 100.9м²

    . Нежилое помещение, 100,9 м | ВАО, р-н Метрогородок, Открытое ш., д. 30, этаж 1, пом. 46Н | Метро: Щёлковская (пешком 43 мин., транспортом 42 мин., расстояние 2.63 км) Характеристики: Функциональное назначение: Свободное Тип входа: Отдельный
    • 100.9 м²
    • 1 эт.
    32 846 000 Р
    PRO
    +7 (922) Показать номер
    Посмотреть контакты

    Не нашли подходящего объявления?

    Оставьте заявку, и наши риэлторы подберут торговое помещение в районе Москвы

    (0)