57 250 000 Р 727 200 $ или 629 100

Информация об помещении

1
Этаж

Состояние и оснащение

Количество этажей
9
Развернуть
Агент
+7 (938) 656-74-88
Начать чат с агентом

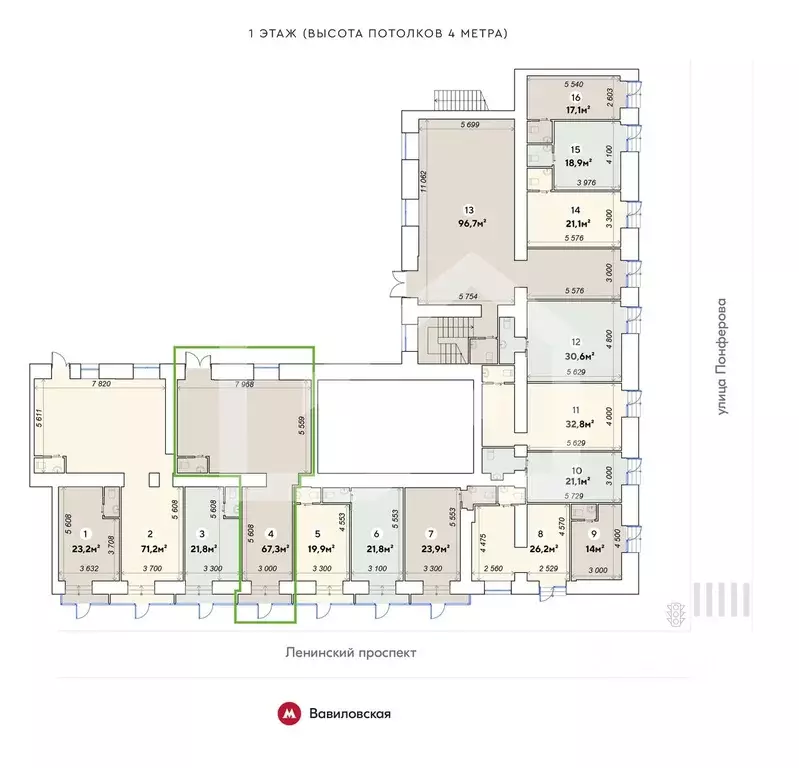
Торговая площадь в Москва Ленинский просп., 79 (67 м)

1076187. Предлагаем помещение свободного назначения, площадью 67.3 кв. м, расположенное на первом этаже 9-этажного жилого дома. Без комиссии для покупателя.Преимущества объекта:-первая линия Ленинского проспекта;-50 м от станции метро Вавиловская ;-удобная транспортная доступность: 1 км до проспекта Вернадского, 2 км до ул. Профсоюзная, 3.5 км до Мичуринского проспекта, 5 км до ул. Мосфильмовская и ТТК, 7 км до Садового кольца;-плотный жилой массив;-развитая инфраструктура района;-высокий автомобильный и пешеходный трафик;-отлично просматривается, находится в легком доступе для потенциальных клиентов;-гибкая планировка, позволяющая адаптировать пространство под различные нужды;-возможность размещения вывески;-городская парковка;-напротив помещения остановка общественного транспорта.Технические параметры объекта:-2 отдельные входные группы.-высота потолков: 4 м.-электрическая мощность: 14 кВт.Свяжитесь с нами для получения дополнительной информации

Читать полностью
    Позвонить Написать
    57 250 000 Р727 200 $ или 629 100
    Агент
    +7 (938) 656-74-88
    Начать чат с агентом
    Похожие предложения
    Торговая площадь в Москва Ленинский просп., 79 (67 м) - Фото 1
    Торговая площадь в Москва Ленинский просп., 79 (67 м) - Фото 2
    1076187. Предлагаем помещение свободного назначения, площадью 67.3 кв. м, расположенное на первом этаже 9-этажного жилого дома. Без комиссии для покупателя.Преимущества объекта:-первая линия Ленинского проспекта;-50 м от станции метро Вавиловская ;-удобная...
    • 1/9 эт.
    57 250 000 Р
    Агент
    +7 (938) Показать номер
    Посмотреть контакты
    Торговая площадь в Москва Шипиловский проезд, 39К3 (36 м) - Фото 1
    Торговая площадь в Москва Шипиловский проезд, 39К3 (36 м) - Фото 2
    Продажа торгового помещения 36,5 м2 с арендатором аптека Аптека Ваша 1 на Шипиловском проезде, д. 39к3 (10 метров от метро Орехово). 1 линия домов.Помещение 36,5 масполагается на 1-м этаже одноэтажного здания, открытая планировка, отдельный вход с фасада,...
    • 1/1 эт.
    57 000 000 Р
    Агент
    +7 (916) Показать номер
    Посмотреть контакты
    Торговая площадь в Москва Левел Звенигородская жилой комплекс, к1 (75 ... - Фото 1
    Торговая площадь в Москва Левел Звенигородская жилой комплекс, к1 (75 ... - Фото 2
    Продаётся торговое помещение площадью 75 кв. м. в новостройке Левел Звенигородская по адресу Москва, СЗАО, Хорошево-Мневники, 3-й Силикатный проезд, вл. 6, корп. 2. Помещение со свободной планировкой. Окна с видом во двор. Высота потолков 6.75 м. Отдельный...
    • 1/64 эт.
    57 051 943 Р
    Агент
    +7 (917) Показать номер
    Посмотреть контакты
    Продажа торгового помещения, м. Тушинская, ул. Тушинская - Фото 1
    Продажа торгового помещения, м. Тушинская, ул. Тушинская - Фото 2
    Продажа торгового помещения, м. Тушинская, ул. Тушинская - Фото 3
    Продажа торгового помещения, м. Тушинская, ул. Тушинская - Фото 4
    общая площадь 19.6м², реализуемая площадь 19.6м²

    От Собственника! Продажа торгового помещения на выходе из метро Тушинская. Арендный бизнес с сетевым арендатором! Первая фасадная линия!!! 1 мин. от м. Тушинская. Помещение площадью 19,6 кв.м (на плане № 5а), расположено на 1-м этаже административного...
    • 19.6 м²
    • 1/1 эт.
    56 800 000 Р
    Агент
    +7 (903) Показать номер
    Посмотреть контакты
    Торговая площадь (110 м) - Фото 1
    Торговая площадь (110 м) - Фото 2
    Продажа ритейла 110 кв.м на 1 этаже в ЖК «Лефортово Парк (корпус 6) по адресу Москва, Красноказарменная улица, 14Ак6.Помещение с отделкойВход отдельный со двораНазначение: Офис, Свободное назначение, Торговая площадьЦена за кв.м:Цена за ритейл:Форма...
    • 1/23 эт.
    57 000 000 Р
    Агент
    +7 (985) Показать номер
    Посмотреть контакты

    Не нашли подходящего объявления?

    Оставьте заявку, и наши риэлторы подберут торговое помещение в районе Москвы

    (0)