Россия, Москва, Левел Звенигородская жилой комплекс, к1
57 051 943 Р 694 600 $ или 600 500

Информация об помещении

1
Этаж

Состояние и оснащение

Количество этажей
64
Развернуть
Агент
+7 (917) 530-81-73
Начать чат с агентом

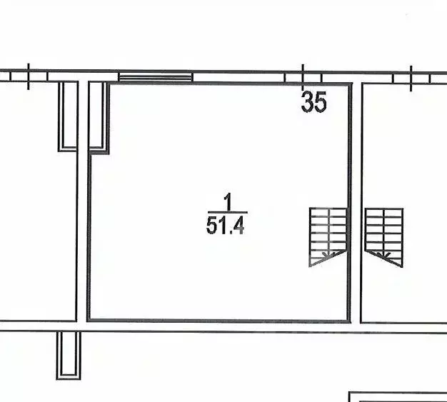
Торговая площадь в Москва Левел Звенигородская жилой комплекс, к1 (75 ...

Продаётся торговое помещение площадью 75 кв. м. в новостройке Левел Звенигородская по адресу Москва, СЗАО, Хорошево-Мневники, 3-й Силикатный проезд, вл. 6, корп. 2. Помещение со свободной планировкой. Окна с видом во двор. Высота потолков 6.75 м. Отдельный вход со двора. Стоимость помещения — Способы оплаты и более подробная информация по телефону.

Читать полностью
    Позвонить Написать
    57 051 943 Р694 600 $ или 600 500
    Агент
    +7 (917) 530-81-73
    Начать чат с агентом
    Похожие предложения
    Торговая площадь в Москва 3-й Силикатный проезд, 6К1С14 (50 м) - Фото 1
    Торговая площадь в Москва 3-й Силикатный проезд, 6К1С14 (50 м) - Фото 2
    Продаётся торговое помещение площадью 50.4 кв. м. в новостройке Левел Звенигородская по адресу Москва, СЗАО, Хорошево-Мневники, 3-й Силикатный проезд, вл. 6, корп. 1. Помещение со свободной планировкой. Окна с видом на улицу. Высота потолков 6.47 м. Отдельный...
    • 1/48 эт.
    56 098 682 Р
    Агент
    +7 (917) Показать номер
    Посмотреть контакты
    Торговая площадь в Москва ул. Авиаторов, 1 (137 м) - Фото 1
    Торговая площадь в Москва ул. Авиаторов, 1 (137 м) - Фото 2
    643643. Предлагаем помещение свободного назначения в ЖК Лучи , площадью 137.3 кв. м, расположенное на первом этаже 23-этажного жилого дома. Корпус: 12. Без комиссии для покупателя.Преимущества объекта:-ЖК состоит из 16 корпусов переменной этажности (от...
    • 1/23 эт.
    57 889 524 Р
    Агент
    +7 (938) Показать номер
    Посмотреть контакты
    Продажа торгового помещения, м. Пушкинская, Богословский пер. - Фото 1
    Продажа торгового помещения, м. Пушкинская, Богословский пер. - Фото 2
    Продажа торгового помещения, м. Пушкинская, Богословский пер. - Фото 3
    Продажа торгового помещения, м. Пушкинская, Богословский пер. - Фото 4
    Продажа торгового помещения, м. Пушкинская, Богословский пер. - Фото 5
    общая площадь 16.9м², реализуемая площадь 16.9м²

    Продажа торгового помещения в историческом центре Москвы. 470 метров от станций метро Пушкинская и Тверская. Площадь 16,9 м2. 1-й этаж 4-х этажного жилого дома. Отдельный вход с фасада, витрина. Планировка зальная, высота потолка 3м, все городские инженерные...
    • 16.9 м²
    • 1/4 эт.
    56 700 000 Р
    Агент
    +7 (903) Показать номер
    Посмотреть контакты
    Продажа торгового помещения, м. Тушинская, ул. Тушинская - Фото 1
    Продажа торгового помещения, м. Тушинская, ул. Тушинская - Фото 2
    Продажа торгового помещения, м. Тушинская, ул. Тушинская - Фото 3
    Продажа торгового помещения, м. Тушинская, ул. Тушинская - Фото 4
    общая площадь 19.6м², реализуемая площадь 19.6м²

    От Собственника! Продажа торгового помещения на выходе из метро Тушинская. Арендный бизнес с сетевым арендатором! Первая фасадная линия!!! 1 мин. от м. Тушинская. Помещение площадью 19,6 кв.м (на плане № 5а), расположено на 1-м этаже административного...
    • 19.6 м²
    • 1/1 эт.
    56 800 000 Р
    Агент
    +7 (903) Показать номер
    Посмотреть контакты
    Торговая площадь в Москва проезд Аэропорта, 8 (126 м) - Фото 1
    Торговая площадь в Москва проезд Аэропорта, 8 (126 м) - Фото 2
    946365. Предлагаем к приобретению помещение, площадью 126,2 кв. м., расположенное на втором этаже и антресоли в ЖК бизнес-класса Studio 8. Без комиссии для покупателя.Преимущества объекта:-ЖК состоит из четырёх 3-этажных корпуса;-8 минут пешком от станции...
    • 2/5 эт.
    56 790 000 Р
    Агент
    +7 (938) Показать номер
    Посмотреть контакты

    Не нашли подходящего объявления?

    Оставьте заявку, и наши риэлторы подберут торговое помещение в районе Москвы

    (0)