60 260 000 Р 751 100 $ или 655 100

Информация об помещении

1
Этаж

Состояние и оснащение

Количество этажей
31
Развернуть
Агент
+7 (938) 656-74-88
Начать чат с агентом

Торговая площадь в Москва Тагильская ул., 6/1 (132 м)

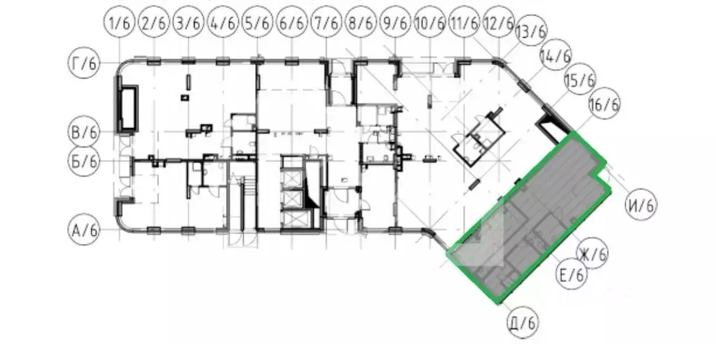
980345. Предлагаем помещение свободного назначения в ЖК Квартал Метроном , площадью 132.2 кв. м, расположенное на первом этаже 31-этажного жилого дома. Без комиссии для покупателя.Преимущества объекта:-первая линия;-ЖК состоит из 2-х 31-этажных корпусов, рассчитанных на 2 628 квартир;-5 минут на автомобиле от станции МЦК Бульвар Рокоссовского ;-удобная транспортная доступность: 1.2 км до Открытого шоссе, 3.5 км до СВХ, 5.4 км до Щёлковского шоссе, 7 км до МКАД;-плотный жилой массив;-развитая инфраструктура района;-высокий автомобильный и пешеходный трафик;-отлично просматривается, находится в легком доступе для потенциальных клиентов;-гибкая планировка, позволяющая адаптировать пространство под различные нужды;-мокрая точка;-витринное остекление;-возможность размещения вывески;-наземная парковка.Технические параметры объекта:-отдельный вход с улицы.-электрическая мощность: 26 кВт.-высота потолков: 3.9 м.Ввод в эксплуатацию: III квартал 2026 г.Свяжитесь с нами для получения дополнительной информации

Читать полностью
    Позвонить Написать
    60 260 000 Р751 100 $ или 655 100
    Агент
    +7 (938) 656-74-88
    Начать чат с агентом
    Похожие предложения
    Торговая площадь в Москва Тагильская ул., 3к1 (132 м) - Фото 1
    Торговая площадь в Москва Тагильская ул., 3к1 (132 м) - Фото 2
    Продажа торгового помещения 132,2 м2 на ул. Тагильская, д. 1 (7 минут транспортом от метро Бульвар Рокоссовского). 1 линия домов.Первый этаж 132,2 м2, открытая планировка, отдельный вход с фасада, высота потолка 3,9 м, электрическая мощность 26,44 кВт,...
    • 1/11 эт.
    60 260 000 Р
    Агент
    +7 (916) Показать номер
    Посмотреть контакты
    Торговая площадь (300 м) - Фото 1
    Торговая площадь (300 м) - Фото 2
    Продажа торгового помещения с арендатором « площадью 300 масположенного по адресу: Москва, Ивантеевская улица, 3к3 (10 минут пешком от метро Бульвар Рокоссовского). Помещение располагается на 1-м этаже жилого массива. В шаговой доступности...
    • 1/5 эт.
    60 000 000 Р
    Агент
    +7 (926) Показать номер
    Посмотреть контакты
    Торговая площадь в Москва Полковая ул., 1С27 (62 м) - Фото 1
    Торговая площадь в Москва Полковая ул., 1С27 (62 м) - Фото 2
    Скидка до 26 .Прайд — премиальный жилой квартал в 15 минутах от Цветного Бульвара в историческом районе Марьина Роща. Яркая архитектура и комфортная переменная высотность от 7 до 22 этажей от именитого бюро APEX формируют запоминающийся облик проекта.Внутренняя...
    • 1/22 эт.
    60 281 760 Р
    Агент
    +7 (916) Показать номер
    Посмотреть контакты
    Торговая площадь в Москва наб. Марка Шагала, 15к2 (91 м) - Фото 1
    Торговая площадь в Москва наб. Марка Шагала, 15к2 (91 м) - Фото 2
    1100430. Предлагаем к приобретению помещение свободного назначения, площадью 91 кв. м., расположенное на первом этаже жилого дома в ЖК Shagal. Без комиссии для покупателя. Преимущества объекта: -первая линия;-комплекс состоит из 66 корпусов переменной...
    • 1/12 эт.
    59 150 000 Р
    Агент
    +7 (938) Показать номер
    Посмотреть контакты
    Торговая площадь в Москва Звенигородское ш., 7 (192 м) - Фото 1
    Торговая площадь в Москва Звенигородское ш., 7 (192 м) - Фото 2
    Предложение на продажу 63085.Парковка: городская стихийная бесплатная.ГОТОВЫЙ БИЗНЕС ПОД КЛЮЧ: ПРИБЫЛЬНОЕ НЕЖИЛОЕ ПОМЕЩЕНИЕ В МОСКВЕ. . ВЫГОДНАЯ ИНВЕСТИЦИЯ с гарантированным доходом 600 000 в месяц . Представляем вашему вниманию уникальное коммерческое...
    • -1/5 эт.
    60 000 000 Р
    Агент
    +7 (989) Показать номер
    Посмотреть контакты

    Не нашли подходящего объявления?

    Оставьте заявку, и наши риэлторы подберут торговое помещение в районе Москвы

    (0)