Россия, Москва, БК Прокшино тер., 3
47 626 292 Р 611 900 $ или 526 000

Информация об помещении

1
Этаж

Состояние и оснащение

Количество этажей
12
Развернуть
Агент
+7 (938) 656-74-88
Начать чат с агентом

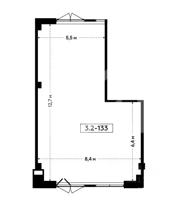
Торговая площадь в Москва БК Прокшино тер., 3 (87 м)

1102346 . Предлагаем помещение свободного назначения в бизнес-квартале Прокшино , площадью 86.8 кв. м, расположенное на первом этаже 12-этажного жилого дома. Корпус: 3.2. Без комиссии для покупателя.Преимущества объекта:-первая линия Филатовского шоссе;-офисный квартал состоит из 5 корпусов переменной этажности (от 12 до 13 этажей);-2 минуты пешком от станции метро Прокшино ;-удобная транспортная доступность: 1.3 км до Новомихайловского шоссе, 3 км до Калужского шоссе, 3.5 км до Филимонковского шоссе;-плотный жилой массив;-развитая инфраструктура района;-высокий автомобильный и пешеходный трафик;-отлично просматривается, находится в легком доступе для потенциальных клиентов;-гибкая планировка, позволяющая адаптировать пространство под различные нужды;-витринное остекление;-возможность размещения вывески;-наземная парковка;-рядом остановка общественного транспорта.Технические параметры объекта:-2 отдельные входные группы.-электрическая мощность: 19 кВт.-высота потолков: 4.5 м.Ввод в эксплуатацию: II квартал 2027.Свяжитесь с нами для получения дополнительной информации

Читать полностью
    Позвонить Написать
    47 626 292 Р611 900 $ или 526 000
    Агент
    +7 (938) 656-74-88
    Начать чат с агентом
    Похожие предложения
    Торговая площадь в Москва Лермонтовская ул., 1 (153 м) - Фото 1
    Торговая площадь в Москва Лермонтовская ул., 1 (153 м) - Фото 2
    747958-f . Предлагаем помещение свободного назначения формата street-retail в ЖК Время , площадью 152.5 кв. м, расположенное на цокольном этаже 20-этажного жилого дома. Без комиссии для покупателя.Преимущества объекта:-ЖК состоит из 2-х 20-этажных корпусов,...
    • -1/20 эт.
    48 800 000 Р
    Агент
    +7 (938) Показать номер
    Посмотреть контакты
    Торговая площадь в Москва Скандинавия жилой комплекс, 18.1.3 (150 м) - Фото 1
    Торговая площадь в Москва Скандинавия жилой комплекс, 18.1.3 (150 м) - Фото 2
    745412-f . Предлагаем к приобретению помещение свободного назначения формата Street Retail, площадью 149,9 кв. м, расположенное на первом этаже жилого дома в ЖК Скандинавия . Корпус 18.1.3. Без комиссии для покупателя. Преимущества объекта:-ЖК состоит...
    • 1/19 эт.
    48 375 728 Р
    Агент
    +7 (938) Показать номер
    Посмотреть контакты
    Торговая площадь в Москва Гродненская ул., 18 (49 м) - Фото 1
    Торговая площадь в Москва Гродненская ул., 18 (49 м) - Фото 2
    Продажа торгового помещения 48,8 м2 на ул. Гродненская, д. 18 корпус 1, башня Гармония (17 минут пешком от метро Давыдково). 1 линия домов.Помещение 48,8 м2, располагается на 1 этаже, открытая планировка, отдельный вход с фасада, высота потолка 3,5...
    • 1/13 эт.
    48 000 000 Р
    Агент
    +7 (916) Показать номер
    Посмотреть контакты
    Торговая площадь в Москва Большая Грузинская ул., 12 (91 м) - Фото 1
    Торговая площадь в Москва Большая Грузинская ул., 12 (91 м) - Фото 2
    Продажа торгового помещения 90,7 м2 на Большой Грузинской, д. 12 (5 минут пешком от метро Баррикадная). 1 линия домов.Помещение 90,7 м2, располагается на 1 этаже, открытая планировка, два отдельных входа, высота потолка 3,1 м. Место для размещения рекламы.Помещение...
    • 1/9 эт.
    48 000 000 Р
    Агент
    +7 (916) Показать номер
    Посмотреть контакты
    Торговая площадь в Москва Рязанский просп., 2/2к2 (152 м) - Фото 1
    Торговая площадь в Москва Рязанский просп., 2/2к2 (152 м) - Фото 2
    Продажа торгового помещения 152 м2 на Рязанском проспекте, д.2/2к2 (10 минут пешком от метро Нижегородская). 1-я линия домов. Помещение 152 масполагается на 1 этаже, открытая планировка, отдельный вход с фасада, высота потолка 4,5 м, витринные окна. Электрическая...
    • 1/25 эт.
    47 214 166 Р
    Агент
    +7 (916) Показать номер
    Посмотреть контакты

    Не нашли подходящего объявления?

    Оставьте заявку, и наши риэлторы подберут торговое помещение в районе Москвы

    (0)