Россия, Москва, Скандинавия жилой комплекс, 18.1.3
48 375 728 Р 621 600 $ или 530 500

Информация об помещении

1
Этаж

Состояние и оснащение

Количество этажей
19
Развернуть
Агент
+7 (938) 656-74-88
Начать чат с агентом

Торговая площадь в Москва Скандинавия жилой комплекс, 18.1.3 (150 м)

745412-f . Предлагаем к приобретению помещение свободного назначения формата Street Retail, площадью 149,9 кв. м, расположенное на первом этаже жилого дома в ЖК Скандинавия . Корпус 18.1.3. Без комиссии для покупателя. Преимущества объекта:-ЖК состоит из корпусов переменной этажности (от 7 до 19 этажей);-12 минут пешком от станции метро Потапово ;-плотный жилой массив;-развитая инфраструктура района;-высокий автомобильный и пешеходный трафик;-отлично просматривается, находится в легком доступе для потенциальных клиентов;-гибкая планировка, позволяющая адаптировать пространство под различные нужды;-витринное остекление;-возможность размещения вывески;-наземная парковка;-рядом остановка общественного транспорта. Технические параметры объекта:-отдельный вход с фасада;-высота потолков: 4,3 м. Ввод в эксплуатацию: III квартал 2026 г.Свяжитесь с нами для получения дополнительной информации

Читать полностью
    Позвонить Написать
    48 375 728 Р621 600 $ или 530 500
    Агент
    +7 (938) 656-74-88
    Начать чат с агентом
    Похожие предложения
    Торговая площадь в Москва № 167 кв-л,  (262 м) - Фото 1
    Торговая площадь в Москва № 167 кв-л,  (262 м) - Фото 2
    1095354 . Предлагаем к приобретению помещение под ресторан формата Street Retail, площадью 262,4 кв. м, расположенное на первом этаже жилого дома в ЖК Скандинавия . Корпус 36.1.2. Без комиссии для покупателя. Преимущества объекта:-ЖК состоит из корпусов...
    • 1/16 эт.
    47 037 824 Р
    Агент
    +7 (938) Показать номер
    Посмотреть контакты
    Торговая площадь в Москва Дзен-кварталы жилой комплекс (79 м) - Фото 1
    Торговая площадь в Москва Дзен-кварталы жилой комплекс (79 м) - Фото 2
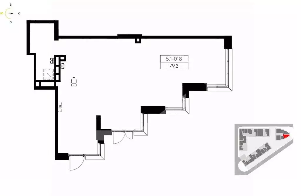
    1094571 . Предлагаем к приобретению помещение свободного назначения формата Street Retail, площадью 79,3 кв. м., расположенное на первом этаже жилого дома в ЖК комфорт-класса Дзен-кварталы . Корпус 5.2. Без комиссии для покупателя. Преимущества объекта:-ЖК...
    • 1/21 эт.
    47 265 972 Р
    Агент
    +7 (938) Показать номер
    Посмотреть контакты
    Торговая площадь в Москва Бакунинская ул., 38-42С1 (36 м) - Фото 1
    Торговая площадь в Москва Бакунинская ул., 38-42С1 (36 м) - Фото 2
    Лот 154407.Продается нежилое помещение свободного назначения по адресу: Москва, ул. Бакунинская, д. 38/42с3, общей площадью 36 м2. Объект находится на первой линии, в торговом коридоре, рядом автобусная остановка, пешеходный переход, что создает высокий...
    • 1/1 эт.
    48 000 000 Р
    Агент
    +7 (985) Показать номер
    Посмотреть контакты
    Торговая площадь в Москва ул. 1-я Бухвостова, 2к3 (70 м) - Фото 1
    Торговая площадь в Москва ул. 1-я Бухвостова, 2к3 (70 м) - Фото 2
    1026314-f . Предлагаем помещение свободного назначения формата Street Retail, площадью 69,8 кв. м, расположенное на первом этаже жилого дома в ЖК Преображенская площадь . Без комиссии для покупателя. Преимущества объекта:-ЖК состоит из монолитно-кирпичных...
    • 1/16 эт.
    47 532 164 Р
    Агент
    +7 (938) Показать номер
    Посмотреть контакты
    Продажа торгового помещения, м. Октябрьское поле, ул. Маршала Бирюзова - Фото 1
    Продажа торгового помещения, м. Октябрьское поле, ул. Маршала Бирюзова - Фото 2
    Продажа торгового помещения, м. Октябрьское поле, ул. Маршала Бирюзова - Фото 3
    Продажа торгового помещения, м. Октябрьское поле, ул. Маршала Бирюзова - Фото 4
    Продажа торгового помещения, м. Октябрьское поле, ул. Маршала Бирюзова - Фото 5
    Продажа торгового помещения, м. Октябрьское поле, ул. Маршала Бирюзова - Фото 6
    Продажа торгового помещения, м. Октябрьское поле, ул. Маршала Бирюзова - Фото 7
    общая площадь 17.6м², реализуемая площадь 17.6м²

    Продажа торгового помещения на выходе из метро Октябрьское Поле. 210 метров, прямая видимость Площадь - 17,6 м2, отдельный вход с улицы, открытая планировка, городские коммуникации, высота потолка - 2,8 м. Ограничений по использованию нет. Размещение...
    • 17.6 м²
    • 1/1 эт.
    48 840 000 Р
    Агент
    +7 (903) Показать номер
    Посмотреть контакты

    Не нашли подходящего объявления?

    Оставьте заявку, и наши риэлторы подберут торговое помещение в районе Москвы

    (0)