140 000 000 Р 1 798 700 $ или 1 546 300

Информация об помещении

1
Этаж

Состояние и оснащение

Количество этажей
9
Развернуть
Агент
+7 (938) 656-74-88
Начать чат с агентом

Торговая площадь в Москва Летниковская ул., 10С1 (248 м)

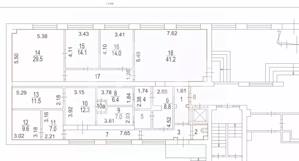
1106545 . Предлагаем помещение свободного назначения, площадью 248 кв. м., расположенное на первом этаже 9-этажного бизнес-центра Святогор . Без комиссии для покупателя.Преимущества объекта:-первая линия ул. Летниковская;-шаговая доступность от станции метро Павелецкая (10 минут пешком);-центр густонаселённого жилого массива;-развитая инфраструктура района;-рядом ЖК Voxhall, ЖК High Life, ЖК Эра , ЖК Opus, БЦ Taller;-высокий автомобильный и пешеходный трафик;-отлично просматривается, находится в легком доступе для потенциальных клиентов;-гибкая планировка, позволяющая адаптировать пространство под различные нужды;-витринное остекление;-возможность размещения вывески;-наземная парковка перед фасадом.Технические параметры объекта:-2 отдельные входные группы;-электрическая мощность: 100 кВт;-высота потолков: 3.5 м.Свяжитесь с нами для получения дополнительной информации

Читать полностью
    Позвонить Написать
    140 000 000 Р1 798 700 $ или 1 546 300
    Агент
    +7 (938) 656-74-88
    Начать чат с агентом
    Похожие предложения
    Торговая площадь в Москва Летниковская ул., 10С1 (201 м) - Фото 1
    Торговая площадь в Москва Летниковская ул., 10С1 (201 м) - Фото 2
    1000593 . Предлагаем торговое помещение формата Street Retail с федеральным арендатором Банк Ак Барс , площадью 200.6 кв. м., расположенное на первом этаже делового центра Святогор . Без комиссии для покупателя. Преимущества объекта:-первая линия ул....
    • 1/9 эт.
    150 000 000 Р
    Агент
    +7 (938) Показать номер
    Посмотреть контакты
    Торговая площадь в Москва ш. Остафьевское, 14к3 (526 м) - Фото 1
    Торговая площадь в Москва ш. Остафьевское, 14к3 (526 м) - Фото 2
    Предложение на продажу 61999.Предлагается в продажу ГАБ - Магнит, 525.54 м2 в ЖК Остафьево . . Преимущества объекта. Быстрое заселением, т.к. 100 квартир продаются с отделкой и частично меблированы. Вокруг частный сектор, где ритейл отсутствует. ....
    • 1/15 эт.
    140 396 434 Р
    Агент
    +7 (989) Показать номер
    Посмотреть контакты
    Продажа торгового помещения, м. Кузнецкий мост, ул. Неглинная - Фото 1
    Продажа торгового помещения, м. Кузнецкий мост, ул. Неглинная - Фото 2
    Продажа торгового помещения, м. Кузнецкий мост, ул. Неглинная - Фото 3
    Продажа торгового помещения, м. Кузнецкий мост, ул. Неглинная - Фото 4
    Продажа торгового помещения, м. Кузнецкий мост, ул. Неглинная - Фото 5
    Продажа торгового помещения, м. Кузнецкий мост, ул. Неглинная - Фото 6
    общая площадь 54.8м², реализуемая площадь 54.8м²

    300 метров от метро Кузнецкий мост!! Первая фасадная линия Неглинной улицы! Продается помещение общей площадью 54,8 кв.м, расположенное на 1-м этаже 3-х этажного нежилого здания, отдельный вход с фасада, витринные окна. Высота потолков - 4.5 м, выделенные...
    • 54.8 м²
    • 1/3 эт.
    145 000 000 Р
    Агент
    +7 (903) Показать номер
    Посмотреть контакты
    Продажа торгового помещения, ул. Бутырская - Фото 1
    Продажа торгового помещения, ул. Бутырская - Фото 2
    Продажа торгового помещения, ул. Бутырская - Фото 3
    Продажа торгового помещения, ул. Бутырская - Фото 4
    общая площадь 264.5м², реализуемая площадь 264.5м²

    Арендный бизнес. Окупаемость 10.5 лет. Продажа торгового помещения в СВАО. Первая фасадная линия!!! 2 мин. от м. Савеловская. Площадь- 264,5 кв.м (на плане № 12), расположенное на 1-м этаже 15-ти этажного жилого дома 1970 года постройки. Отдельный вход...
    • 264.5 м²
    • 1/15 эт.
    132 300 000 Р
    Агент
    +7 (903) Показать номер
    Посмотреть контакты
    Продажа торгового помещения, м. Кузнецкий мост, ул. Рождественка - Фото 1
    Продажа торгового помещения, м. Кузнецкий мост, ул. Рождественка - Фото 2
    Продажа торгового помещения, м. Кузнецкий мост, ул. Рождественка - Фото 3
    общая площадь 119м², реализуемая площадь 119м²

    Продажа помещения в прямой видимости от ст. метро «Кузнецкий Мост». Интенсивный пешеходный трафик. Располагается в туристическо-деловом центре города. 2 уровня: 1 этаж - 34,7 м2, антресоль - 84,3 м2, отдельный вход, зальная планировка, витрины, высокие...
    • 119 м²
    • 1/2 эт.
    138 000 000 Р
    Агент
    +7 (903) Показать номер
    Посмотреть контакты

    Не нашли подходящего объявления?

    Оставьте заявку, и наши риэлторы подберут торговое помещение в районе Москвы

    (0)