132 300 000 Р

Информация об помещении

264.5 м2
Площадь
1
Этаж

Состояние и оснащение

Количество этажей
15
Развернуть
Агент
Наталья
+7 (903) 170-45-54
Начать чат с агентом

Продажа торгового помещения, ул. Бутырская

Арендный бизнес. Окупаемость 10.5 лет. Продажа торгового помещения в СВАО. Первая фасадная линия!!!
2 мин. от м. Савеловская.

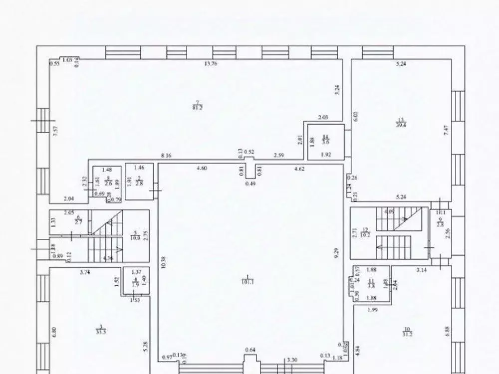
Площадь- 264,5 кв.м (на плане № 12), расположенное на 1-м этаже 15-ти этажного жилого дома 1970 года постройки. Отдельный вход с фасада и дополнительный вход со двора, витринное остекление. Планировка свободная. Высокие потолки 4,7 м. Все городские инженерные коммуникации, санузел в каждом блоке, отдельные приборы учета электричества. Высокая проходимость, отличное торговое окружение и визуализация.
Сдано в аренду Вкусвилл. Долгосрочный договор аренды на 5 лет. МАП- 1.050.000руб, ГАП - 12.600.

Окружение: большой жилой массив. В окружении расположены: Савёловский вокзал, ЖК «Карамель», большое количество бизнес-центров, дизайн-завод «Флакон».Объект № 546810Номер объекта: 5/546810/310

Читать полностью

    Для того, чтобы купить торговое помещение площадью 264 кв. метра по адресу: СВАО, Бутырский, ул. Бутырская, 4, позвоните по телефону +7 (903) 170-45-54. Торопитесь! Объявление №800815271 о продаже торгового помещения площадью 264 кв. метра опубликовано Вчера.

    Позвонить Написать
    132 300 000 Р
    Агент
    Наталья
    +7 (903) 170-45-54
    Начать чат с агентом
    Похожие предложения
    Торговая площадь в Москва Высоковольтный проезд, 7 (661 м) - Фото 1
    Торговая площадь в Москва Высоковольтный проезд, 7 (661 м) - Фото 2
    БЕЗ КОМИССИИ Бизнес-центр. Продаётся здание целиком площадью 661 кв.м. Стандартная отделка, требуется косметический ремонт. Электрическая мощность 125 кВт.УСН. Высоковольтный проезд, 7, 12 минут пешком от метро Отрадное. ЛОТ 237744
    • 1/2 эт.
    124 999 727 Р
    Агент
    +7 (915) Показать номер
    Посмотреть контакты
    Торговая площадь в Москва Зеленый просп., 3А (1030 м) - Фото 1
    Торговая площадь в Москва Зеленый просп., 3А (1030 м) - Фото 2
    БЕЗ КОМИССИИ Офисное здание. Продаётся здание целиком площадью 1030 кв.м. Стандартная отделка.УСН. Зелёный проспект, 3А, 10 минут пешком от метро Перово. ЛОТ 237044
    • 1/2 эт.
    133 900 000 Р
    Агент
    +7 (915) Показать номер
    Посмотреть контакты
    м. Перово, Зелёный проспект 1375 м2, "Продажа здания" (ном. объекта: ... - Фото 1
    м. Перово, Зелёный проспект 1375 м2, "Продажа здания" (ном. объекта: ... - Фото 2
    м. Перово, Зелёный проспект 1375 м2, "Продажа здания" (ном. объекта: ... - Фото 3
    м. Перово, Зелёный проспект 1375 м2, "Продажа здания" (ном. объекта: ... - Фото 4
    м. Перово, Зелёный проспект 1375 м2, "Продажа здания" (ном. объекта: ... - Фото 5
    м. Перово, Зелёный проспект 1375 м2, "Продажа здания" (ном. объекта: ... - Фото 6
    м. Перово, Зелёный проспект 1375 м2, "Продажа здания" (ном. объекта: ... - Фото 7
    м. Перово, Зелёный проспект 1375 м2, "Продажа здания" (ном. объекта: ... - Фото 8
    м. Перово, Зелёный проспект 1375 м2, "Продажа здания" (ном. объекта: ... - Фото 9
    м. Перово, Зелёный проспект 1375 м2, "Продажа здания" (ном. объекта: ... - Фото 10
    м. Перово, Зелёный проспект 1375 м2, "Продажа здания" (ном. объекта: ... - Фото 11
    м. Перово, Зелёный проспект 1375 м2, "Продажа здания" (ном. объекта: ... - Фото 12
    м. Перово, Зелёный проспект 1375 м2, "Продажа здания" (ном. объекта: ... - Фото 13
    м. Перово, Зелёный проспект 1375 м2, "Продажа здания" (ном. объекта: ... - Фото 14
    м. Перово, Зелёный проспект 1375 м2, "Продажа здания" (ном. объекта: ... - Фото 15
    м. Перово, Зелёный проспект 1375 м2, "Продажа здания" (ном. объекта: ... - Фото 16
    м. Перово, Зелёный проспект 1375 м2, "Продажа здания" (ном. объекта: ... - Фото 17
    м. Перово, Зелёный проспект 1375 м2, "Продажа здания" (ном. объекта: ... - Фото 18
    м. Перово, Зелёный проспект 1375 м2, "Продажа здания" (ном. объекта: ... - Фото 19
    м. Перово, Зелёный проспект 1375 м2, "Продажа здания" (ном. объекта: ... - Фото 20
    общая площадь 1375м², реализуемая площадь 1375м²

    На продажу предлагается отдельно стоящее здание в Восточном Административном Округе на Зелёном проспекте в шаговой доступности от метро Перово (10 минут), общей площадью 1380 кв. м. Центральный вход с улицы, ещё два входа - с прилегающей территории. Планировка...
    • 1 375 м²
    • 2 этажа
    140 000 000 Р
    Агент
    +7 (926) Показать номер
    Посмотреть контакты
    м. ВДНХ, Бажова ул., 1142 м2, Комплекс зданий (ном. объекта: 4319) - Фото 1
    м. ВДНХ, Бажова ул., 1142 м2, Комплекс зданий (ном. объекта: 4319) - Фото 2
    м. ВДНХ, Бажова ул., 1142 м2, Комплекс зданий (ном. объекта: 4319) - Фото 3
    м. ВДНХ, Бажова ул., 1142 м2, Комплекс зданий (ном. объекта: 4319) - Фото 4
    м. ВДНХ, Бажова ул., 1142 м2, Комплекс зданий (ном. объекта: 4319) - Фото 5
    м. ВДНХ, Бажова ул., 1142 м2, Комплекс зданий (ном. объекта: 4319) - Фото 6
    м. ВДНХ, Бажова ул., 1142 м2, Комплекс зданий (ном. объекта: 4319) - Фото 7
    м. ВДНХ, Бажова ул., 1142 м2, Комплекс зданий (ном. объекта: 4319) - Фото 8
    м. ВДНХ, Бажова ул., 1142 м2, Комплекс зданий (ном. объекта: 4319) - Фото 9
    м. ВДНХ, Бажова ул., 1142 м2, Комплекс зданий (ном. объекта: 4319) - Фото 10
    м. ВДНХ, Бажова ул., 1142 м2, Комплекс зданий (ном. объекта: 4319) - Фото 11
    м. ВДНХ, Бажова ул., 1142 м2, Комплекс зданий (ном. объекта: 4319) - Фото 12
    м. ВДНХ, Бажова ул., 1142 м2, Комплекс зданий (ном. объекта: 4319) - Фото 13
    м. ВДНХ, Бажова ул., 1142 м2, Комплекс зданий (ном. объекта: 4319) - Фото 14
    м. ВДНХ, Бажова ул., 1142 м2, Комплекс зданий (ном. объекта: 4319) - Фото 15
    м. ВДНХ, Бажова ул., 1142 м2, Комплекс зданий (ном. объекта: 4319) - Фото 16
    м. ВДНХ, Бажова ул., 1142 м2, Комплекс зданий (ном. объекта: 4319) - Фото 17
    м. ВДНХ, Бажова ул., 1142 м2, Комплекс зданий (ном. объекта: 4319) - Фото 18
    м. ВДНХ, Бажова ул., 1142 м2, Комплекс зданий (ном. объекта: 4319) - Фото 19
    общая площадь 1142м², реализуемая площадь 1142м²

    Два здания 822 м2 и 322 м2 в районе станции метро "ВДНХ" и станции МЦК "Ростокино" в 50 метрах ходьбы. Объект 1951 года постройки. Стены - кирпич, перекрытия - железобетон. Высота потолков в первом здании 3,9 метра, во втором 6 метров. Выделенная электрическая...
    • 1 142 м²
    • 2 этажа
    130 000 000 Р
    Агент
    +7 (926) Показать номер
    Посмотреть контакты
    м. Римская, Рогожский вал, 1300м2 "Продажа Здания" (ном. объекта: ... - Фото 1
    м. Римская, Рогожский вал, 1300м2 "Продажа Здания" (ном. объекта: ... - Фото 2
    м. Римская, Рогожский вал, 1300м2 "Продажа Здания" (ном. объекта: ... - Фото 3
    м. Римская, Рогожский вал, 1300м2 "Продажа Здания" (ном. объекта: ... - Фото 4
    м. Римская, Рогожский вал, 1300м2 "Продажа Здания" (ном. объекта: ... - Фото 5
    общая площадь 1300м², реализуемая площадь 1300м²

    Помещение общей площадью 1295 кв. м (из них подвал 50,6 кв. м, 1 этаж - 133,4 кв. м, 2 этаж - 1 111,1 кв .м) в отдельно стоящем здании на Рогожском Валу,. В шаговой доступности: метро Римская (5 минут), метро площадь Ильича (5 минут), Марксистская (15...
    • 1 300 м²
    • 2 этажа
    129 000 000 Р
    Агент
    +7 (965) Показать номер
    Посмотреть контакты

    Не нашли подходящего объявления?

    Оставьте заявку, и наши риэлторы подберут торговое помещение в районе Москвы

    (0)