73 830 000 Р 943 800 $ или 801 700

Информация об помещении

1
Этаж

Состояние и оснащение

Количество этажей
3
Развернуть
Агент
+7 (938) 656-74-88
Начать чат с агентом

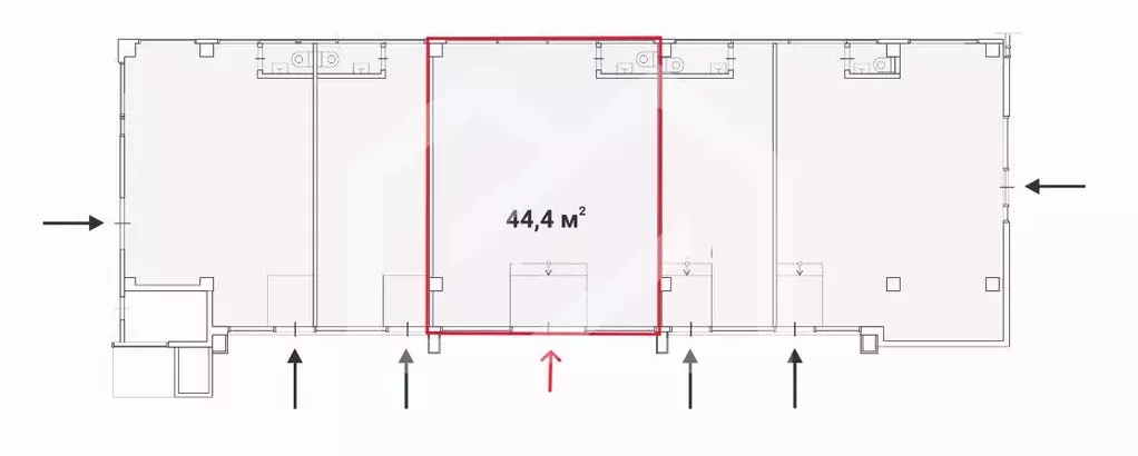
Торговая площадь в Москва Профсоюзная ул., 102С1 (44 м)

636207 . Предлагаем помещение свободного назначения формата Street Retail с арендатором СовкомБанк, площадью 44.4 кв. м., расположенное на первом этаже в ТЦ Ареал . Без комиссии для покупателя. Преимущества объекта:-напротив станция метро Беляево;-объект отлично просматривается, находится в легком доступе для клиентов;-интенсивный пешеходный трафик;-развитая инфраструктура района;-надежный арендатор;-открытая планировка;-витринное остекление;-место для вывески;-наземная парковка;-рядом остановки общественного транспорта. Технические параметры объекта:-2 входные группы с фасада и с торца здания;-высота потолков: 5 м. Информация об арендаторе: -арендатор: СовкомБанк;-прибыль:/мес.;-окупаемость: 11,5 лет;-доходность: 8,7 . Свяжитесь с нами для получения дополнительной информации

Читать полностью
    Позвонить Написать
    73 830 000 Р943 800 $ или 801 700
    Агент
    +7 (938) 656-74-88
    Начать чат с агентом
    Похожие предложения
    Торговая площадь в Москва 2-й Павелецкий проезд, 9 (493 м) - Фото 1
    Торговая площадь в Москва 2-й Павелецкий проезд, 9 (493 м) - Фото 2
    Арт.Отдельно стоящее здание по адресу Москва, ЮАО, р-н Даниловский, 2-й Павелецкий проезд, 9О здании:общая площадь 492,8 м2Отдельная входная группа с фасада с 1-ой линиидоговор аренды земли до 2070 года. окна по фасадуО локации:Крупный деловой район с...
    • 1/2 эт.
    75 000 000 Р
    Агент
    +7 (923) Показать номер
    Посмотреть контакты
    Торговая площадь в Москва Ленинградский просп., 47 (163 м) - Фото 1
    Торговая площадь в Москва Ленинградский просп., 47 (163 м) - Фото 2
    Предложение на продажу 43065.Предлагается в продажу помещение 163.1 м2 на 1 этаже, ГАБ - Винлаб по адресу: Ленинградский проспект, д. 47 с.2. . Доходность 8 . . 1 минута пешком до станции метро Аэропорт;. 1-я линия Ленинградского проспекта;. Здание после...
    • 1/4 эт.
    73 000 000 Р
    Агент
    +7 (989) Показать номер
    Посмотреть контакты
    Торговая площадь в Москва Саввинская наб., 7С3 (108 м) - Фото 1
    Торговая площадь в Москва Саввинская наб., 7С3 (108 м) - Фото 2
    БЕЗ КОМИССИИ Жилой дом. Продаётся блок с санузлом на первом этаже площадью 108 кв.м с отдельным входом с улицы. Стандартная отделка. Кондиционер (сплит).УСН. Саввинская набережная, 7с3, 10 минут пешком от метро Киевская. ЛОТ 244895
    • 1/16 эт.
    74 999 952 Р
    Агент
    +7 (915) Показать номер
    Посмотреть контакты
    Торговая площадь в Москва Зубовский проезд, 2К2 (113 м) - Фото 1
    Торговая площадь в Москва Зубовский проезд, 2К2 (113 м) - Фото 2
    Предложение на продажу 42261.Предлагается на продажу готовый арендный бизнес в Хамовниках на супер трафике (порядка 3000 ч/час и до 5000ч/час в пиковое время).. Через помещение проходит народная тропа до метро.. Помещение расположено на первом этаже....
    • 1/4 эт.
    75 000 000 Р
    Агент
    +7 (989) Показать номер
    Посмотреть контакты
    Торговая площадь в Москва Тимирязевская ул., 10/12 (200 м) - Фото 1
    Торговая площадь в Москва Тимирязевская ул., 10/12 (200 м) - Фото 2
    ГОТОВЫЙ АРЕНДНЫЙ БИЗНЕС. Москва, ул Тимирязевская, 10/12Арендаторы: • Ароматный мир, табак, Ozon, Яндекс Маркет, белорусские продукты и кофейня. • Площадь: 200 м2Окупаемость: 10 летСтоимость продажи:Мощность: 60 кВтМАП:.ГАП:. Объект располагается...
    • 1/8 эт.
    73 000 000 Р
    Агент
    +7 (933) Показать номер
    Посмотреть контакты

    Не нашли подходящего объявления?

    Оставьте заявку, и наши риэлторы подберут торговое помещение в районе Москвы

    (0)