153 000 000 Р 1 955 900 $ или 1 661 300

Информация об помещении

1
Этаж

Состояние и оснащение

Количество этажей
3
Развернуть
Агент
+7 (910) 484-72-17
Начать чат с агентом

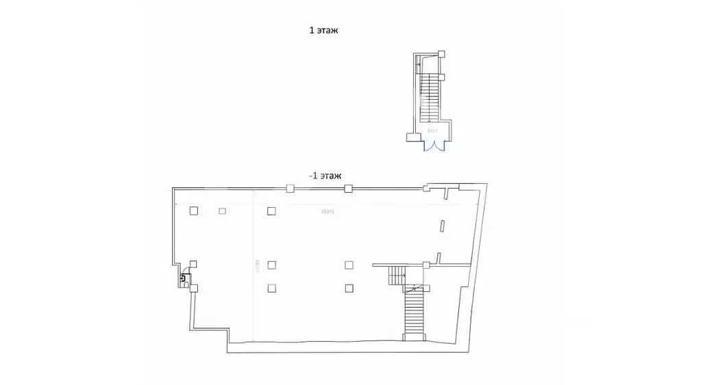
Торговая площадь в Москва ул. Крутицкий Вал, 8/22 (494 м)

Код объекта: 1957993.Продается помещения в шаговой доступности до метро 2 минуты от см м. Пролетарская Три помещения общей площадью 494,1 м2 (первый этаж 212,1 кв.м + цоколь с окнами 282 кв.м.). Витринное остекление. Реклама на фасаде. Все помещения с ремонтом Парковка перед помещением бесплатная, что очень удобно для клиентов арендаторов. Удобная локация, выгодное торговое окружение, очень активный пешеходный и автомобильный трафик Объект юридически чистый и готов к продаже

Читать полностью
    Позвонить Написать
    153 000 000 Р1 955 900 $ или 1 661 300
    Агент
    +7 (910) 484-72-17
    Начать чат с агентом
    Похожие предложения
    Торговая площадь в Москва Ленинский просп., 38 (90 м) - Фото 1
    Торговая площадь в Москва Ленинский просп., 38 (90 м) - Фото 2
    Ритейл на первой линии Ленинского проспекта. Продается торговое помещение, с отдельным входом на 1 этаже, в новом жилом доме класса А в составе проекта LUNAR, который будет расположен всего в 10-ми минутах пешком от метро Ленинский проспект/МЦК Площадь...
    • 1/6 эт.
    153 680 000 Р
    Агент
    +7 (915) Показать номер
    Посмотреть контакты
    Торговая площадь в Москва, Москва, Зеленоград ул. Андреевка, 1с2 (1400 ... - Фото 1
    Торговая площадь в Москва, Москва, Зеленоград ул. Андреевка, 1с2 (1400 ... - Фото 2
    908228 . Предлагаем торговое помещение с арендатором Детский мир в торговом центре в г. Зеленоград, площадью 1400 кв. м, расположенное на первом этаже 2-этажного административного здания. Без комиссии для покупателя.Преимущества объекта:-первая линия...
    • 1/2 эт.
    140 000 000 Р
    Агент
    +7 (938) Показать номер
    Посмотреть контакты
    Торговая площадь в Москва Новослободская ул., 19С1 (381 м) - Фото 1
    Торговая площадь в Москва Новослободская ул., 19С1 (381 м) - Фото 2
    884911 . Предлагаем помещение свободного назначения с арендатором DUKH , площадью 380.5 кв. м, расположенное на -1-ом и 1-ом этажах 6-этажного административного здания. Без комиссии для покупателя.Преимущества объекта:-первая линия ул. Новослободская;-в...
    • 1/3 эт.
    145 000 000 Р
    Агент
    +7 (938) Показать номер
    Посмотреть контакты
    Торговая площадь в Москва 1-я Пугачевская ул., 25С1 (1226 м) - Фото 1
    Торговая площадь в Москва 1-я Пугачевская ул., 25С1 (1226 м) - Фото 2
    744169 . Предлагаем отдельно стоящее административное здание с якорным арендатором Хостел 1 с номерным фондом в 32 номера (занимает всё здание), площадью 1226.1 кв. м. Без комиссии для покупателя.Преимущества объекта:-первая линия ул. 1-я Пугачёвская;-шаговая...
    • 1/7 эт.
    150 000 000 Р
    Агент
    +7 (938) Показать номер
    Посмотреть контакты
    Торговая площадь в Москва, Москва, Щербинка ш. Симферопольское, 1Ас1 ... - Фото 1
    Торговая площадь в Москва, Москва, Щербинка ш. Симферопольское, 1Ас1 ... - Фото 2
    643256 . Предлагаем торговое помещение в отдельно стоящем двухэтажном здании с сетевым арендатором Светофор, площадью 1 773 кв. м. 1 этаж и подвал. Без комиссии для покупателя.Преимущества объекта:-пешая доступность от станции МЦД-2 Щербинка (17 минут...
    • 1/2 эт.
    150 000 000 Р
    Агент
    +7 (938) Показать номер
    Посмотреть контакты

    Не нашли подходящего объявления?

    Оставьте заявку, и наши риэлторы подберут торговое помещение в районе Москвы

    (0)