47 978 719 Р 620 900 $ или 525 500

Информация об помещении

1
Этаж

Состояние и оснащение

Количество этажей
1
Развернуть
Агент
+7 (989) 407-39-26
Начать чат с агентом

Торговая площадь в Москва Лобненская ул., 14 (135 м)

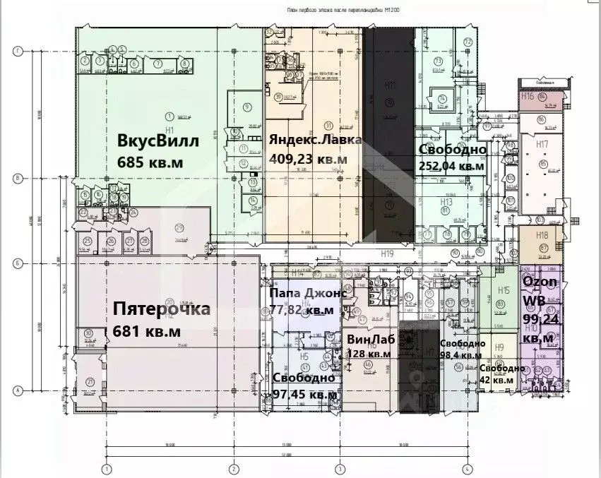
Предложение на продажу 62088.Продается готовый арендный бизнес с федеральным сетевым арендатором ВинЛаб на долгосрочном договоре аренды, с ежегодной безусловной индексацией, не более чем на 5 . . ОСЗ Отдельно стоящее здание на ул. Лобненской, д. 14 в САО/Дмитровский. . Характеристики объекта:. Площадь 135.4 (1 этаж, без подвала ) . На плане помещение Н6. Высота потолков 6 м. Свободная планировка. Витринное остекление по периметру отличная видимость и презентабельный фасад. Отдельный вход + дебаркадер. Каждое помещение. Торговый блок в жилом массиве, с сетевым арендатором. Большой паркинг рядом с помещением, круглосуточный доступ. Большие витрины и место для вывески. Круглосуточная работа и отсутствие ограничений по сферам деятельности (нежилое торговое здание). . Инженерные коммуникации:. Электрическая мощность 70 кВт. Центральное отопление, водоснабжение, канализация. Парковка по периметру здания. . Дополнительные преимущества:. Готовый арендный бизнес с надежным арендатором. МАП 444 247. ГАБ. Прямая купля-продажа, без обременений. Высокая ликвидность и доходность. С арендатором заключен долгосрочный договор аренды на 5 лет от 14.05.2025. Помещение имеет отдельный кадастр. . Обеспечен всеми коммуникациями, канализацией и электричеством.. . Сложившийся жилой массив, активный и постоянный покупательский спрос. Арендаторы в ТЦ : Пятерочка.Доставка, Яндекс.Лавка, Пиццерия Папа Джонс, Аптека Горздрав, ПВЗ OZON/Wildberries, Строительный магазин, Шиномонтаж и другие.Торговая недвижимость, Street Retail. 1 линия домов. Торговый центр. Витрины. Место для рекламы. Зона разгрузки. Проходное и проездное место.Арендный бизнес. Окупаемость c индексацией: 7 лет и 8 меc. Ежегодная индексация: 5 . По первому году: 9 лет и 1 меc. Доходность c индексацией: 13.04 . Доходность c индексацией: 13.04 . По первому году: 11.01 . Присутствует арендатор: Винный магазин Винлаб . Срок договора: 10 лет.Без комиссии.

Читать полностью
    Позвонить Написать
    47 978 719 Р620 900 $ или 525 500
    Агент
    +7 (989) 407-39-26
    Начать чат с агентом
    Похожие предложения
    Продажа торгового помещения, м. Октябрьское поле, ул. Маршала Бирюзова - Фото 1
    Продажа торгового помещения, м. Октябрьское поле, ул. Маршала Бирюзова - Фото 2
    Продажа торгового помещения, м. Октябрьское поле, ул. Маршала Бирюзова - Фото 3
    Продажа торгового помещения, м. Октябрьское поле, ул. Маршала Бирюзова - Фото 4
    Продажа торгового помещения, м. Октябрьское поле, ул. Маршала Бирюзова - Фото 5
    Продажа торгового помещения, м. Октябрьское поле, ул. Маршала Бирюзова - Фото 6
    Продажа торгового помещения, м. Октябрьское поле, ул. Маршала Бирюзова - Фото 7
    общая площадь 17.6м², реализуемая площадь 17.6м²

    Продажа торгового помещения на выходе из метро Октябрьское Поле. 210 метров, прямая видимость Площадь - 17,6 м2, отдельный вход с улицы, открытая планировка, городские коммуникации, высота потолка - 2,8 м. Ограничений по использованию нет. Размещение...
    • 17.6 м²
    • 1/1 эт.
    48 840 000 Р
    Агент
    +7 (903) Показать номер
    Посмотреть контакты
    Продажа торгового помещения, м. Зюзино, ул. Каховка - Фото 1
    Продажа торгового помещения, м. Зюзино, ул. Каховка - Фото 2
    Продажа торгового помещения, м. Зюзино, ул. Каховка - Фото 3
    Продажа торгового помещения, м. Зюзино, ул. Каховка - Фото 4
    Продажа торгового помещения, м. Зюзино, ул. Каховка - Фото 5
    общая площадь 112м², реализуемая площадь 112м²

    Продажа торгового помещения! 250 метров от станции метро Зюзино. ЮЗАО. Площадь - 112 м2, 1 этаж 19-ти этажного монолитного жилого дома 2021 года постройки. Отдельный вход с улицы, витрины, городские коммуникации, электрическая мощность 22 кВт. Планировка...
    • 112 м²
    • 1/19 эт.
    49 000 000 Р
    Агент
    +7 (903) Показать номер
    Посмотреть контакты
    Продажа торгового помещения, м. Баррикадная, Большая Грузинская ул - Фото 1
    Продажа торгового помещения, м. Баррикадная, Большая Грузинская ул - Фото 2
    Продажа торгового помещения, м. Баррикадная, Большая Грузинская ул - Фото 3
    Продажа торгового помещения, м. Баррикадная, Большая Грузинская ул - Фото 4
    общая площадь 90.7м², реализуемая площадь 90.7м²

    ЦАО, Красная Пресня! Помещение свободного назначения, 300 метров от ст. м. Краснопресненская (м. Баррикадная). Продажа помещения общей площадью 90,7 кв.м, расположенного на 1-м этаже жилого дома, отдельный вход с фасада и запасной - со двора, потолки...
    • 90.7 м²
    • 1/8 эт.
    48 000 000 Р
    Агент
    +7 (903) Показать номер
    Посмотреть контакты
    Продажа торгового помещения, м. Саларьево, Трехполье - Фото 1
    Продажа торгового помещения, м. Саларьево, Трехполье - Фото 2
    Продажа торгового помещения, м. Саларьево, Трехполье - Фото 3
    общая площадь 103.7м², реализуемая площадь 103.7м²

    Продается действующий арендный бизнес с сетевым ПВЗ Озон. Помещение расположено 1-м этаже 10-ти этажного жилого дома 2024 года постройки. Площадь 103,7 кв.м, потолки 3 м, открытая планировка, мокрая точка, городские коммуникации (вода, отопление). Отдельный...
    • 103.7 м²
    • 1/10 эт.
    48 000 000 Р
    Агент
    +7 (903) Показать номер
    Посмотреть контакты
    Продажа торгового помещения, м. Планерная, ул. Планерная - Фото 1
    Продажа торгового помещения, м. Планерная, ул. Планерная - Фото 2
    Продажа торгового помещения, м. Планерная, ул. Планерная - Фото 3
    Продажа торгового помещения, м. Планерная, ул. Планерная - Фото 4
    Продажа торгового помещения, м. Планерная, ул. Планерная - Фото 5
    Продажа торгового помещения, м. Планерная, ул. Планерная - Фото 6
    общая площадь 20.8м², реализуемая площадь 20.8м²

    1 минута от метро. Продажа торгового помещения с арендатором в шаговой доступности от станции метро "Планерная". СЗАО, район Северное Тушино. Площадь помещения - 20,8 м2 (на плане блок № 8), первый этаж, отдельный вход с первой линии Планерной улицы,...
    • 20.8 м²
    • 1/9 эт.
    48 300 000 Р
    Агент
    +7 (903) Показать номер
    Посмотреть контакты

    Не нашли подходящего объявления?

    Оставьте заявку, и наши риэлторы подберут торговое помещение в районе Москвы

    (0)