Россия, Москва, Трехполье, 6 к1
м. Саларьево, 5 мин. пешком
48 000 000 Р 617 000 $ или 529 000

Информация об помещении

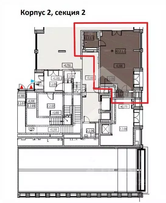
103.7 м2
Площадь
1
Этаж

Состояние и оснащение

Количество этажей
10
Развернуть
Агент
Наталья
+7 (903) 170-45-54
Начать чат с агентом

Продажа торгового помещения, м. Саларьево, Трехполье

Продается действующий арендный бизнес с сетевым ПВЗ Озон. Помещение расположено 1-м этаже 10-ти этажного жилого дома 2024 года постройки. Площадь 103,7 кв.м, потолки 3 м, открытая планировка, мокрая точка, городские коммуникации (вода, отопление). Отдельный вход с фасада. Арендатор: ПВЗ Озон. МАП: 3-8 мес -, 9 мес -, 11 мес -, 17 мес -, 21 мес -, 25 мес - ГАП -. Срок договора: 5 лет. Окупаемость: 11,7 лет. Объект № 550780Номер объекта: 5/550780/310

Читать полностью

    Для того, чтобы купить торговое помещение площадью 103 кв. метра по адресу: м. Саларьево, Трехполье, 6 к1, позвоните по телефону +7 (903) 170-45-54. Торопитесь! Объявление №800822860 о продаже торгового помещения площадью 103 кв. метра опубликовано Вчера.

    Позвонить Написать
    48 000 000 Р617 000 $ или 529 000
    Агент
    Наталья
    +7 (903) 170-45-54
    Начать чат с агентом
    Похожие предложения
    Торговая площадь в Москва Тушинская ул., 24С15 (59 м) - Фото 1
    Торговая площадь в Москва Тушинская ул., 24С15 (59 м) - Фото 2
    Арт.Предлагается помещение свободного назначения около метро Тушинская.О помещении:общая площадь 58,6 м2отдельная входная группа с фасадавсе городские инженерные коммуникациибольшие окна2 отдельных входаО локации:Крупный жилой районРазвитая инфраструктура1...
    • 1/2 эт.
    48 600 000 Р
    Агент
    +7 (989) Показать номер
    Посмотреть контакты
    Торговая площадь в Москва Тушинская ул., 24 (59 м) - Фото 1
    Торговая площадь в Москва Тушинская ул., 24 (59 м) - Фото 2
    Продажа псн 58.6 м2 (1 этаж) по адресу: Тушинская ул., 24с15Продажа Street Retail помещения торгового или свободного назначения (ПСН) площадью 58,6 кв.м на 1 этаже ОСЗ. Планировка — открытая (свободная). Отлично подойдёт под любой вид деятельности: торговое...
    • 1/2 эт.
    48 600 000 Р
    Агент
    +7 (910) Показать номер
    Посмотреть контакты
    Продажа торгового помещения, м. Октябрьское поле, ул. Маршала Бирюзова - Фото 1
    Продажа торгового помещения, м. Октябрьское поле, ул. Маршала Бирюзова - Фото 2
    Продажа торгового помещения, м. Октябрьское поле, ул. Маршала Бирюзова - Фото 3
    Продажа торгового помещения, м. Октябрьское поле, ул. Маршала Бирюзова - Фото 4
    Продажа торгового помещения, м. Октябрьское поле, ул. Маршала Бирюзова - Фото 5
    Продажа торгового помещения, м. Октябрьское поле, ул. Маршала Бирюзова - Фото 6
    Продажа торгового помещения, м. Октябрьское поле, ул. Маршала Бирюзова - Фото 7
    общая площадь 17.6м², реализуемая площадь 17.6м²

    Продажа торгового помещения на выходе из метро Октябрьское Поле. 210 метров, прямая видимость Площадь - 17,6 м2, отдельный вход с улицы, открытая планировка, городские коммуникации, высота потолка - 2,8 м. Ограничений по использованию нет. Размещение...
    • 17.6 м²
    • 1/1 эт.
    48 840 000 Р
    Агент
    +7 (903) Показать номер
    Посмотреть контакты
    Продажа торгового помещения, м. Зюзино, ул. Каховка - Фото 1
    Продажа торгового помещения, м. Зюзино, ул. Каховка - Фото 2
    Продажа торгового помещения, м. Зюзино, ул. Каховка - Фото 3
    Продажа торгового помещения, м. Зюзино, ул. Каховка - Фото 4
    Продажа торгового помещения, м. Зюзино, ул. Каховка - Фото 5
    общая площадь 112м², реализуемая площадь 112м²

    Продажа торгового помещения! 250 метров от станции метро Зюзино. ЮЗАО. Площадь - 112 м2, 1 этаж 19-ти этажного монолитного жилого дома 2021 года постройки. Отдельный вход с улицы, витрины, городские коммуникации, электрическая мощность 22 кВт. Планировка...
    • 112 м²
    • 1/19 эт.
    49 000 000 Р
    Агент
    +7 (903) Показать номер
    Посмотреть контакты
    Продажа торгового помещения, м. Баррикадная, Большая Грузинская ул - Фото 1
    Продажа торгового помещения, м. Баррикадная, Большая Грузинская ул - Фото 2
    Продажа торгового помещения, м. Баррикадная, Большая Грузинская ул - Фото 3
    Продажа торгового помещения, м. Баррикадная, Большая Грузинская ул - Фото 4
    общая площадь 90.7м², реализуемая площадь 90.7м²

    ЦАО, Красная Пресня! Помещение свободного назначения, 300 метров от ст. м. Краснопресненская (м. Баррикадная). Продажа помещения общей площадью 90,7 кв.м, расположенного на 1-м этаже жилого дома, отдельный вход с фасада и запасной - со двора, потолки...
    • 90.7 м²
    • 1/8 эт.
    48 000 000 Р
    Агент
    +7 (903) Показать номер
    Посмотреть контакты

    Не нашли подходящего объявления?

    Оставьте заявку, и наши риэлторы подберут торговое помещение в районе Москвы

    (0)