199 000 000 Р 2 452 400 $ или 2 130 100

Информация об помещении

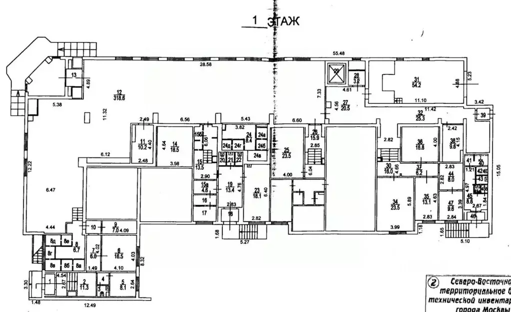
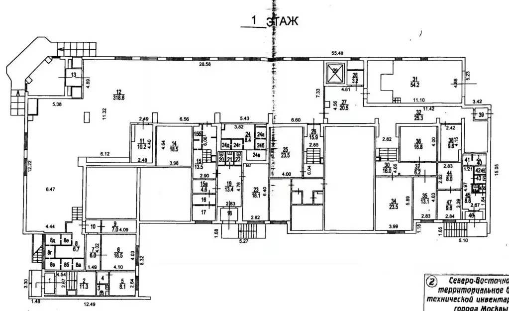
1539.8 м2
Площадь
1
Этаж

Состояние и оснащение

Общая площадь складского комплекса, м2
1539.8
Развернуть
Агент
Наталья
+7 (903) 170-18-68
Начать чат с агентом

Продажа ПСН, ул. Вольная

Продажа нежилого 3-х этажного отдельно стоящего здания (ОСЗ) в стиле лофт, общей площадью 1539,8 м2. ОСЗ расположено на закрытой территории производственно-складского комплекса. Здание кирпичное, без подвала. В 2022 году был выполнен капитальный ремонт с заменой окон, коммуникаций, мест общего пользования. Большое количество окон, новое остекление. Высота потолков от 3 до 8 метров. Выделенная мощность на здание 149 кВт. Ремонт внутренних помещений выполнен в стиле «лофт». Все инженерные коммуникации (вода, электричество, магистральный газ, канализация). Планировка помещений – свободная, блоки первого этажа – с отдельными входами с улицы.
Въезд - со стороны улицы Вольная, в том числе для большегрузного транспорта.
Земельный участок 9909 м2, в аренде до 2061 г. Назначение земли – для размещения производственных и административных зданий.
Вся площадь здания сдана в аренду по краткосрочным договорам. Суммарный месячный доход составляет. Годовой арендный поток Окупаемость 7,7 лет. Арендаторы: студия воздушной акробатики, компания по продаже детской одежды на маркетплейсах ОЗОН и Вайлдберрис, студия батутной аэробики, производство и разработка картонной упаковки, секция самбо, , «Ф-секьюрити» - пожарная безопасность.
Объект № 549098Номер объекта: 5/549098/310

Читать полностью

    Для того, чтобы купить ПСН площадью 1539 кв. метров по адресу: ВАО, Соколиная Гора, ул. Вольная, 35 с 8, позвоните по телефону +7 (903) 170-18-68. Торопитесь! Объявление №901065965 о продаже ПСН площадью 1539 кв. метров опубликовано Сегодня.

    Позвонить Написать
    199 000 000 Р2 452 400 $ или 2 130 100
    Агент
    Наталья
    +7 (903) 170-18-68
    Начать чат с агентом
    Похожие предложения
    Помещение свободного назначения в Москва Салтыковская ул., 37К2 (28 м) - Фото 1
    Помещение свободного назначения в Москва Салтыковская ул., 37К2 (28 м) - Фото 2
    Продается нежилое помещение ул. Салтыковская д. 37, к. 2, 1-я линия домов. 10 минут пешком до м. Новокосино, 1-я линия домов. Хороший пешеходный трафик. В нежилом помещении есть мокрая точка, электричество, заключены договора с ресурсоснабжающими организациями....
    • 1/14 эт.
    202 210 000 Р
    Агент
    +7 (939) Показать номер
    Посмотреть контакты
    Помещение свободного назначения в Москва Вольная ул., 35С8 (1214 м) - Фото 1
    Помещение свободного назначения в Москва Вольная ул., 35С8 (1214 м) - Фото 2
    808688. Предлагаем к приобретению отдельно стоящее здание, площадью 1 539,8 кв. м., расположенное в районе Соколиная Гора на закрытой территории производственно-складского комплекса. 3 этажа. Без комиссии для покупателя. Преимущества объекта: -15 минут...
    • 3/3 эт.
    205 000 000 Р
    Агент
    +7 (938) Показать номер
    Посмотреть контакты
    Помещение свободного назначения в Москва Вольная ул., 35С8 (1214 м) - Фото 1
    Помещение свободного назначения в Москва Вольная ул., 35С8 (1214 м) - Фото 2
    808688. Предлагаем к приобретению отдельно стоящее здание, площадью 1 539,8 кв. м., расположенное в районе Соколиная Гора на закрытой территории производственно-складского комплекса. 3 этажа. Без комиссии для покупателя. Преимущества объекта: -15 минут...
    • 3/3 эт.
    205 000 000 Р
    Агент
    +7 (938) Показать номер
    Посмотреть контакты
    Продажа ПСН, м. Лихоборы, Черепановых проезд - Фото 1
    Продажа ПСН, м. Лихоборы, Черепановых проезд - Фото 2
    Продажа ПСН, м. Лихоборы, Черепановых проезд - Фото 3
    Продажа ПСН, м. Лихоборы, Черепановых проезд - Фото 4
    Продажа ПСН, м. Лихоборы, Черепановых проезд - Фото 5
    Продажа ПСН, м. Лихоборы, Черепановых проезд - Фото 6
    Продажа ПСН, м. Лихоборы, Черепановых проезд - Фото 7
    Продажа ПСН, м. Лихоборы, Черепановых проезд - Фото 8
    Продажа ПСН, м. Лихоборы, Черепановых проезд - Фото 9
    Продажа ПСН, м. Лихоборы, Черепановых проезд - Фото 10
    Продажа ПСН, м. Лихоборы, Черепановых проезд - Фото 11
    общая площадь 1848.8м², полезная площадь 1848.8м²

    От собственника. Арендный бизнес. Продажа административного здания, расположенного в САО, Головинский район, на проезде Черепановых, в 4-х минутах пешком от МЦК «Лихоборы» и «Окружная». Здание отдельностоящее (ОСЗ) 1981 года постройки, общая площадь 1848,8...
    • 1 848.8 м²
    • 1-й эт.
    203 368 000 Р
    Агент
    +7 (903) Показать номер
    Посмотреть контакты
    Продажа ПСН, м. Тульская, Холодильный пер. - Фото 1
    Продажа ПСН, м. Тульская, Холодильный пер. - Фото 2
    Продажа ПСН, м. Тульская, Холодильный пер. - Фото 3
    Продажа ПСН, м. Тульская, Холодильный пер. - Фото 4
    Продажа ПСН, м. Тульская, Холодильный пер. - Фото 5
    Продажа ПСН, м. Тульская, Холодильный пер. - Фото 6
    Продажа ПСН, м. Тульская, Холодильный пер. - Фото 7
    Продажа ПСН, м. Тульская, Холодильный пер. - Фото 8
    Продажа ПСН, м. Тульская, Холодильный пер. - Фото 9
    Продажа ПСН, м. Тульская, Холодильный пер. - Фото 10
    Продажа ПСН, м. Тульская, Холодильный пер. - Фото 11
    общая площадь 415.4м², полезная площадь 415.4м²

    ПСН площадью 415,4 масположено в ЛОФТ- квартале Товарищество Рябовской Мануфактуры, в 100 метрах от метро Тульская. Помещение на 1-м этаже в 2-х этажном здании (корпус 1 строение 3), с высокими потолками, большими арочными окнами и всеми центральными...
    • 415.4 м²
    • 1-й эт.
    191 084 000 Р
    Агент
    +7 (903) Показать номер
    Посмотреть контакты

    Не нашли подходящего объявления?

    Оставьте заявку, и наши риэлторы подберут псн в районе Москвы

    (0)