205 000 000 Р 2 496 000 $ или 2 157 800

Информация об помещении

3
Этаж

Состояние и оснащение

Количество этажей
3
Развернуть
Агент
+7 (938) 656-74-88
Начать чат с агентом

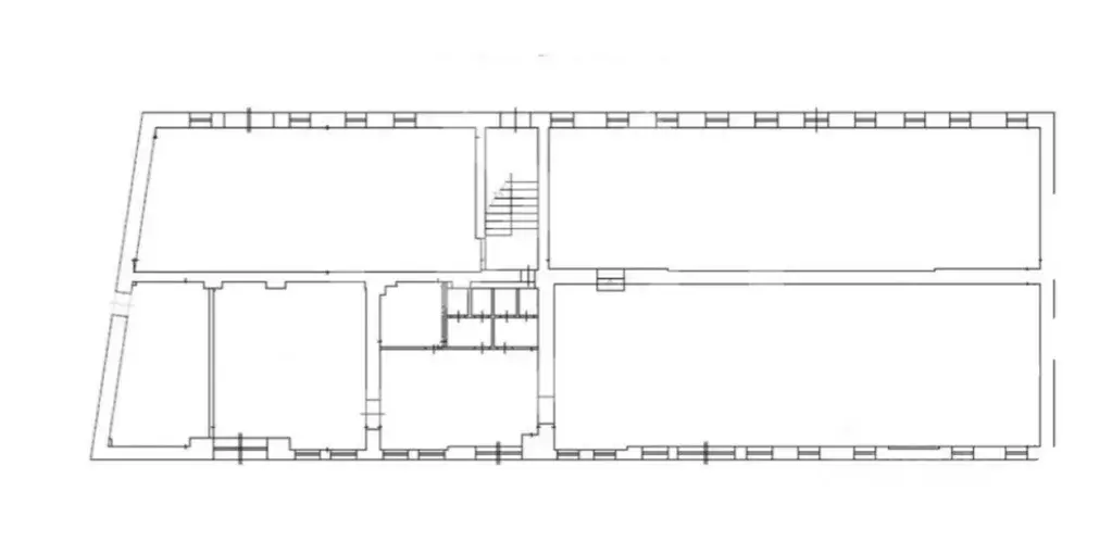
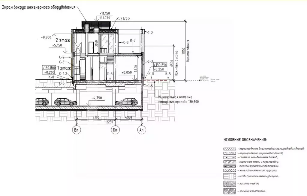
Помещение свободного назначения в Москва Вольная ул., 35С8 (1214 м)

808688. Предлагаем к приобретению отдельно стоящее здание, площадью 1 539,8 кв. м., расположенное в районе Соколиная Гора на закрытой территории производственно-складского комплекса. 3 этажа. Без комиссии для покупателя. Преимущества объекта: -15 минут пешком от станции метро Соколиная гора;-развитая инфраструктура в окружении;-въезд со стороны улицы Вольная, в том числе и для большегрузного транспорта;-большое количество окон, новое остекление;-все коммуникации в здании новые;-капитальный ремонт выполнен в 2022 г.;-назначение земли - для размещения производственных и административных зданий;-земельный участок (9 909 кв. м.) в аренде дo 2061 г.;-рядом парковка и остановка общественного транспорта. Технические параметры объекта:-несколько входных групп;-электрическая мощность: 149 кВт;-высота потолков: от 3 до 8 м. Свяжитесь с нами для получения дополнительной информации

Читать полностью
    Позвонить Написать
    205 000 000 Р2 496 000 $ или 2 157 800
    Агент
    +7 (938) 656-74-88
    Начать чат с агентом
    Похожие предложения
    Помещение свободного назначения в Москва Вольная ул., 35С8 (1214 м) - Фото 1
    Помещение свободного назначения в Москва Вольная ул., 35С8 (1214 м) - Фото 2
    808688. Предлагаем к приобретению отдельно стоящее здание, площадью 1 539,8 кв. м., расположенное в районе Соколиная Гора на закрытой территории производственно-складского комплекса. 3 этажа. Без комиссии для покупателя. Преимущества объекта: -15 минут...
    • 3/3 эт.
    205 000 000 Р
    Агент
    +7 (938) Показать номер
    Посмотреть контакты
    Помещение свободного назначения в Москва Салтыковская ул., 37К2 (28 м) - Фото 1
    Помещение свободного назначения в Москва Салтыковская ул., 37К2 (28 м) - Фото 2
    Продается нежилое помещение ул. Салтыковская д. 37, к. 2, 1-я линия домов. 10 минут пешком до м. Новокосино, 1-я линия домов. Хороший пешеходный трафик. В нежилом помещении есть мокрая точка, электричество, заключены договора с ресурсоснабжающими организациями....
    • 1/14 эт.
    202 210 000 Р
    Агент
    +7 (939) Показать номер
    Посмотреть контакты
    Помещение свободного назначения в Москва Вольная ул., 35С8 (1214 м) - Фото 1
    Помещение свободного назначения в Москва Вольная ул., 35С8 (1214 м) - Фото 2
    Предлагается на продажу помещение свободного назначения в нежилом, отдельно стоящем здании, расположенном в районе Соколина гора (ВАО) в шаговой доступности от станций метро Семеновская и Партизанская. Вторая линия домов.Фактическая площадь : 1540 мЗарегистрированная...
    • 1/3 эт.
    205 000 000 Р
    Агент
    +7 (985) Показать номер
    Посмотреть контакты
    Помещение свободного назначения в Москва Пестовский пер., 16С1 (838 м) - Фото 1
    Помещение свободного назначения в Москва Пестовский пер., 16С1 (838 м) - Фото 2
    815968. Предлагаем к приобретению особняк, площадью 838 кв. м., расположенный на Таганке в центре Москвы. Без комиссии для покупателя.Преимущества объекта:-первая линия домов Пестовского переулка;-пешая доступность от станций метро Таганская и Марксистская...
    • 4/4 эт.
    200 000 000 Р
    Агент
    +7 (938) Показать номер
    Посмотреть контакты
    Помещение свободного назначения в Москва бул. Чкаловский, 6к1 (365 м) - Фото 1
    Помещение свободного назначения в Москва бул. Чкаловский, 6к1 (365 м) - Фото 2
    804069. Предлагаем к приобретению коммерческое помещение под общепит, площадью 364,8 кв. м., расположенное на 1 и 2 этажах и открытой террасе в жилом комплексе Клубный город на реке Primavera . Без комиссии для покупателя.Преимущества объекта:-первая...
    • 1/2 эт.
    218 880 000 Р
    Агент
    +7 (938) Показать номер
    Посмотреть контакты

    Не нашли подходящего объявления?

    Оставьте заявку, и наши риэлторы подберут псн в районе Москвы

    (0)